Old Sackett Road, Rock Hill, NY, 12775 | $1,850,000

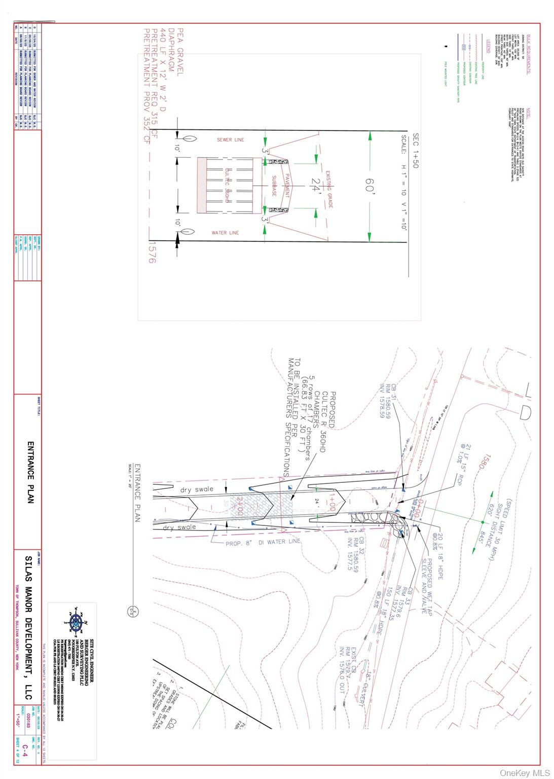
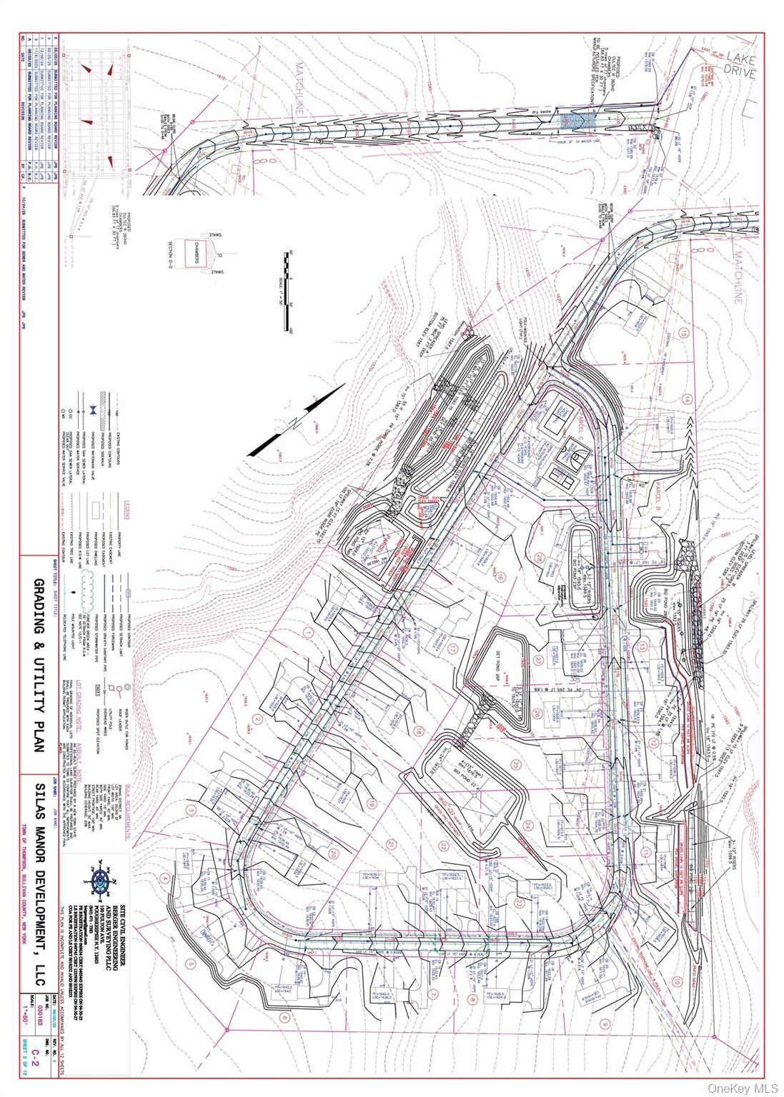
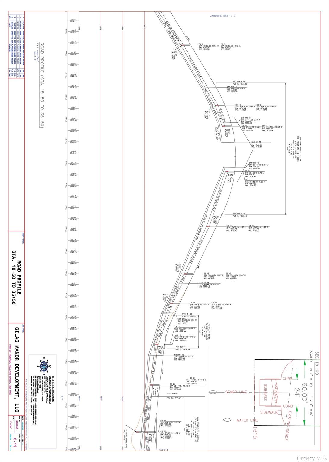
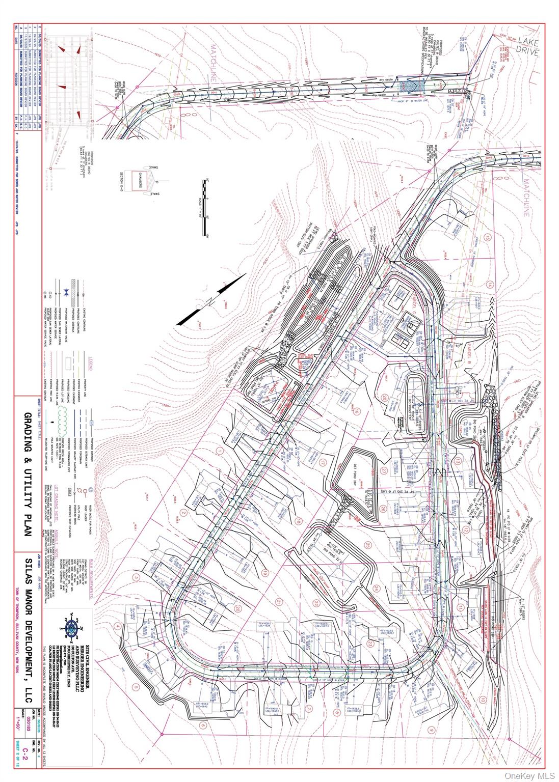
Fully Entitled / Conditional Final Approval Granted by Town of Thompson! Silas Manor represents a rare and distinguished opportunity to acquire a fully entitled, high-end residential subdivision located in the heart of the Catskills’ most desirable growth corridor — Rock Hill, New York. Spanning 29 gently rolling acres, this meticulously designed community is planned for 28 luxury single-family homes, each envisioned at approximately 3, 200+ square feet, offering the perfect balance between modern sophistication and the tranquility of rural living. ??The development offers generous homesites averaging 0. 70 acres each, providing an ideal blend of privacy, space, and community connection. The subdivision plan has been engineered, reviewed, and conditionally approved by the Town of Thompson Planning Board, with all supporting technical approvals and utility coordination fully secured. The project’s infrastructure design includes municipal water and sewer services, paved private roadways, and a dedicated site for a private clubhouse and recreational facilities, envisioned to feature a pool, fitness area, and event space — creating a true community experience for future homeowners. Community Design & Lifestyle Vision The Silas Manor community has been carefully conceived to embrace the natural landscape while providing a refined and active living experience. Generous lot sizes, preserved wooded buffers, and integrated walking trails give homeowners privacy, beauty, and connectivity. ??Architectural guidelines envision custom-built, craftsman-inspired homes with open-concept layouts, high ceilings, energy-efficient systems, and upscale finishes such as hardwood flooring, quartz countertops, and designer lighting. The subdivision design incorporates landscaped entryways, internal sidewalks, green open space, and a private clubhouse with recreational amenities, ideal for families, retirees, and second-home buyers seeking a serene yet sophisticated escape just 90 minutes from Manhattan. Strategic Location Situated in the established Rock Hill community, Silas Manor offers close proximity to all local conveniences — including fine dining, shopping, medical facilities, and year-round entertainment. Residents will enjoy easy access to: ?- Resorts World Catskills Casino & Hotel (15 minutes)?- Kartrite Indoor Waterpark Resort (15 minutes)?- Monticello Motor Club & Raceway (15 minutes)

Features

  • Elem. School: Emma C Chase School
  • Middle School: Robert J Kaiser Middle School
  • High School: Monticello High School
  • School District: Monticello
  • MLS#: 934169
  • Days on Market: 74 days
  • Website: https://www.raveis.com
    /prop/934169/oldsackettroad_rockhill_ny?source=qrflyer
Listing information has been assembled from various sources of varying degrees of reliability. Any information critical to the buying decision should be independently verified.Listing courtesy of HomeSmart Homes & Estates   Phone: 845-547-0005

William Raveis Family of Services

Our family of companies partner in delivering quality services in a one-stop-shopping environment. Together, we integrate the most comprehensive real estate, mortgage and insurance services available to fulfill your specific real estate needs.

Customer Service

888.699.8876

Contact@raveis.com

Our family of companies offer our clients a new level of full-service real estate. We shall:

  • Market your home to realize a quick sale at the best possible price
  • Place up to 20+ photos of your home on our website, raveis.com
  • Provide frequent communication and tracking reports showing the Internet views your home received on raveis.com
  • Showcase your home on raveis.com with a larger and more prominent format
  • Give you the full resources and strength of William Raveis Real Estate, Mortgage & Insurance and our cutting-edge technology

To learn more about our credentials, visit raveis.com today.

Frank KolbSenior Vice President - Coaching & Strategic, William Raveis Mortgage, LLC

NMLS Mortgage Loan Originator ID 81725

203.980.8025

Frank.Kolb@raveis.com

Our Executive Mortgage Banker:

  • Is available to meet with you in our office, your home or office, evenings or weekends
  • Offers you pre-approval in minutes!
  • Provides a guaranteed closing date that meets your needs
  • Has access to hundreds of loan programs, all at competitive rates
  • Is in constant contact with a full processing, underwriting, and closing staff to ensure an efficient transaction

Ryan FortierInsurance Sales Director, William Raveis Insurance

516.739.7731

Ryan.Fortier@raveis.com

Our Insurance Division:

  • Will Provide a home insurance quote within 24 hours
  • Offers full-service coverage such as Homeowner's, Auto, Life, Renter's, Flood and Valuable Items
  • Partners with major insurance companies including Chubb, Kemper Unitrin, The Hartford, Progressive,
    Encompass, Travelers, Fireman's Fund, Middleoak Mutual, One Beacon and American Reliable

Old Sackett Road, Rock Hill, NY, 12775

$1,850,000

Customer Service

William Raveis Real Estate

Phone: 888.699.8876

Contact@raveis.com

Frank Kolb

Senior Vice President - Coaching & Strategic

William Raveis Mortgage, LLC

Phone: 203.980.8025

Frank.Kolb@raveis.com

NMLS Mortgage Loan Originator ID 81725

5/6 (30 Yr)
Adjustable Rate Jumbo*
30 Year
Fixed-Rate Jumbo
15 Year
Fixed-Rate Jumbo
Loan Amount $1,480,000 $1,480,000 $1,480,000
Term 360 months 360 months 180 months
Initial Interest Rate** 5.000% 5.750% 5.500%
Interest Rate based on Index + Margin 8.125%
Annual Percentage Rate 5.973% 5.858% 5.681%
Monthly Tax Payment N/A N/A N/A
H/O Insurance Payment $125 $125 $125
Initial Principal & Interest Pmt $7,945 $8,637 $12,093
Total Monthly Payment $8,070 $8,762 $12,218

* The Initial Interest Rate and Initial Principal & Interest Payment are fixed for the first and adjust every six months thereafter for the remainder of the loan term. The Interest Rate and annual percentage rate may increase after consummation. The Index for this product is the SOFR. The margin for this adjustable rate mortgage may vary with your unique credit history, and terms of your loan.

** Mortgage Rates are subject to change, loan amount and product restrictions and may not be available for your specific transaction at commitment or closing. Rates, and the margin for adjustable rate mortgages [if applicable], are subject to change without prior notice.

The rates and Annual Percentage Rate (APR) cited above may be only samples for the purpose of calculating payments and are based upon the following assumptions: minimum credit score of 740, 20% down payment (e.g. $20,000 down on a $100,000 purchase price), $1,950 in finance charges, and 30 days prepaid interest, 1 point, 30 day rate lock. The rates and APR will vary depending upon your unique credit history and the terms of your loan, e.g. the actual down payment percentages, points and fees for your transaction. Property taxes and homeowner's insurance are estimates and subject to change.