34-10 94th Street, #3D, Jackson Heights, NY, 11372 | $345,000

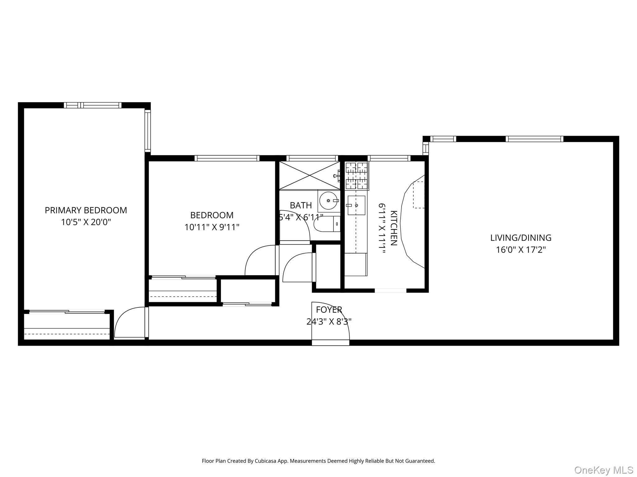
Upon entry, you’re greeted by a welcoming console table and a gallery-style hallway that leads effortlessly to the living areas or the sleeping quarters. The gracious living room features four oversized windows with south, west, and north exposures, bathing the home in natural light throughout the day. The flexible layout easily accommodates a full dining suite for eight while still leaving ample space for relaxation or entertaining. The windowed eat-in kitchen, a dream for any avid chef, showcases raised-panel walnut cabinetry with oil-brushed bronze hardware, granite countertops, and pantry-style cabinetry on both sides, providing exceptional storage and prep space. A cleverly placed breakfast bar comfortably seats two, making it an ideal spot for casual dining or morning coffee. The bathroom features a glass-enclosed walk-in shower, ceramic-tiled floors, and a modern vanity with additional storage. The primary bedroom, the largest in the complex, features a ten-foot, floor-to-ceiling closet, while the second bedroom is equally spacious and includes a double closet, all of which have been customized. There are two additional closets, one double-wide and the other sizable. Further highlights include low monthly maintenance of $1, 022. 07, inclusive of all utilities, a designated storage unit, complimentary bike storage, and access to a full gym for just $10/month. The cooperative also offers beautifully landscaped gardens, three private courtyards with seating and play areas, and a party room available for private events at a nominal fee. There is also a wait-listed indoor garage. Small pets are permitted. Subletting is not allowed. 20% down payment and board approval are required.

Features

  • Parking: Garage
  • Heating: Hot Water, Natural Gas, Steam
  • Cooling: Wall/Window Unit(s)
  • Levels: 6
  • Rooms: 4
  • Bedrooms: 2
  • Baths: 1 full
  • Laundry: Common Area
  • Complex: The Brulene
  • Year Built: 1954
  • Approx Sq. Feet: 925
  • View: Neighborhood
  • Elem. School: Ps 2 Alfred Zimberg
  • Middle School: Is 227 Louis Armstrong
  • High School: Newtown High School
  • School District: Queens24
  • Pet Policy: Cats OK, Dogs OK, Size Limit
  • Appliances: Dishwasher, Gas Oven, Gas Range, Refrigerator
  • MLS#: 931451
  • Days on Market: 93 days
  • Website: https://www.raveis.com
    /prop/931451/341094thstreet_jacksonheights_ny?source=qrflyer
Listing information has been assembled from various sources of varying degrees of reliability. Any information critical to the buying decision should be independently verified.Listing courtesy of Compass Greater NY LLC   Phone: 212-913-9058

William Raveis Family of Services

Our family of companies partner in delivering quality services in a one-stop-shopping environment. Together, we integrate the most comprehensive real estate, mortgage and insurance services available to fulfill your specific real estate needs.

Customer Service

888.699.8876

Contact@raveis.com

Our family of companies offer our clients a new level of full-service real estate. We shall:

  • Market your home to realize a quick sale at the best possible price
  • Place up to 20+ photos of your home on our website, raveis.com
  • Provide frequent communication and tracking reports showing the Internet views your home received on raveis.com
  • Showcase your home on raveis.com with a larger and more prominent format
  • Give you the full resources and strength of William Raveis Real Estate, Mortgage & Insurance and our cutting-edge technology

To learn more about our credentials, visit raveis.com today.

Frank KolbSenior Vice President - Coaching & Strategic, William Raveis Mortgage, LLC

NMLS Mortgage Loan Originator ID 81725

203.980.8025

Frank.Kolb@raveis.com

Our Executive Mortgage Banker:

  • Is available to meet with you in our office, your home or office, evenings or weekends
  • Offers you pre-approval in minutes!
  • Provides a guaranteed closing date that meets your needs
  • Has access to hundreds of loan programs, all at competitive rates
  • Is in constant contact with a full processing, underwriting, and closing staff to ensure an efficient transaction

Ryan FortierInsurance Sales Director, William Raveis Insurance

516.739.7731

Ryan.Fortier@raveis.com

Our Insurance Division:

  • Will Provide a home insurance quote within 24 hours
  • Offers full-service coverage such as Homeowner's, Auto, Life, Renter's, Flood and Valuable Items
  • Partners with major insurance companies including Chubb, Kemper Unitrin, The Hartford, Progressive,
    Encompass, Travelers, Fireman's Fund, Middleoak Mutual, One Beacon and American Reliable

34-10 94th Street, #3D, Jackson Heights, NY, 11372

$345,000

Customer Service

William Raveis Real Estate

Phone: 888.699.8876

Contact@raveis.com

Frank Kolb

Senior Vice President - Coaching & Strategic

William Raveis Mortgage, LLC

Phone: 203.980.8025

Frank.Kolb@raveis.com

NMLS Mortgage Loan Originator ID 81725

5/6 (30 Yr)
Adjustable Rate Conforming*
30 Year
Fixed-Rate Conforming
15 Year
Fixed-Rate Conforming
Loan Amount $276,000 $276,000 $276,000
Term 360 months 360 months 180 months
Initial Interest Rate** 5.375% 5.990% 5.125%
Interest Rate based on Index + Margin 8.125%
Annual Percentage Rate 6.137% 6.132% 5.396%
Monthly Tax Payment N/A N/A N/A
H/O Insurance Payment $75 $75 $75
Initial Principal & Interest Pmt $1,546 $1,653 $2,201
Total Monthly Payment $1,621 $1,728 $2,276

* The Initial Interest Rate and Initial Principal & Interest Payment are fixed for the first and adjust every six months thereafter for the remainder of the loan term. The Interest Rate and annual percentage rate may increase after consummation. The Index for this product is the SOFR. The margin for this adjustable rate mortgage may vary with your unique credit history, and terms of your loan.

** Mortgage Rates are subject to change, loan amount and product restrictions and may not be available for your specific transaction at commitment or closing. Rates, and the margin for adjustable rate mortgages [if applicable], are subject to change without prior notice.

The rates and Annual Percentage Rate (APR) cited above may be only samples for the purpose of calculating payments and are based upon the following assumptions: minimum credit score of 740, 20% down payment (e.g. $20,000 down on a $100,000 purchase price), $1,950 in finance charges, and 30 days prepaid interest, 1 point, 30 day rate lock. The rates and APR will vary depending upon your unique credit history and the terms of your loan, e.g. the actual down payment percentages, points and fees for your transaction. Property taxes and homeowner's insurance are estimates and subject to change.