20 Heathcote Road, Carmel, NY, 10512 | $415,000

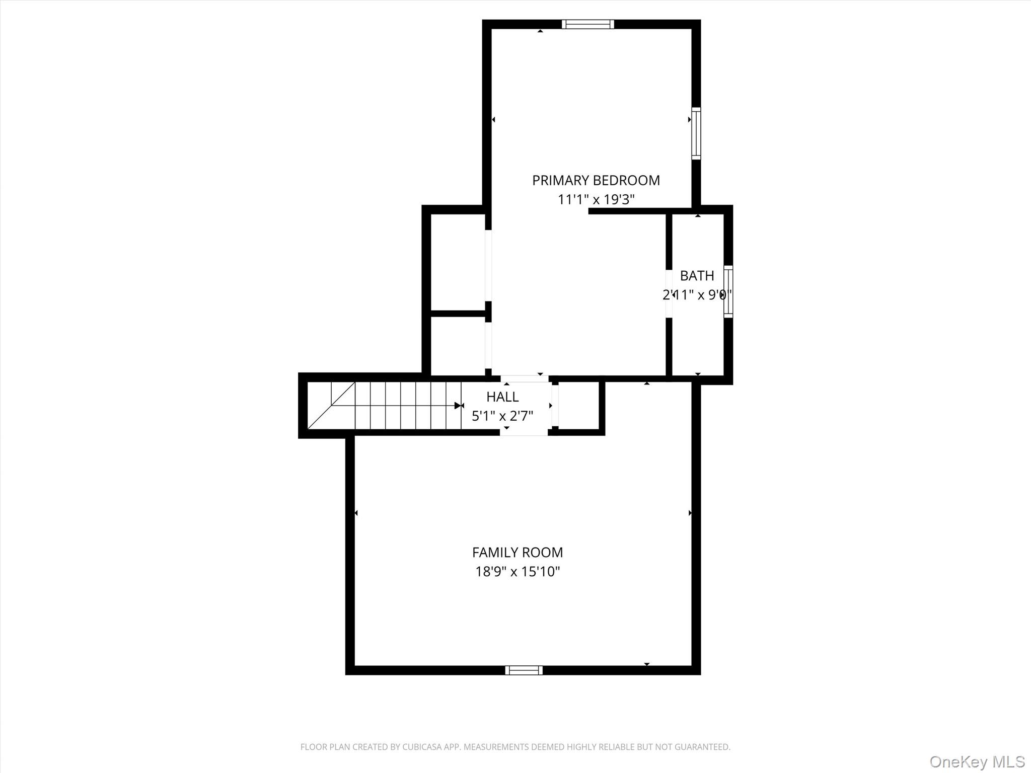
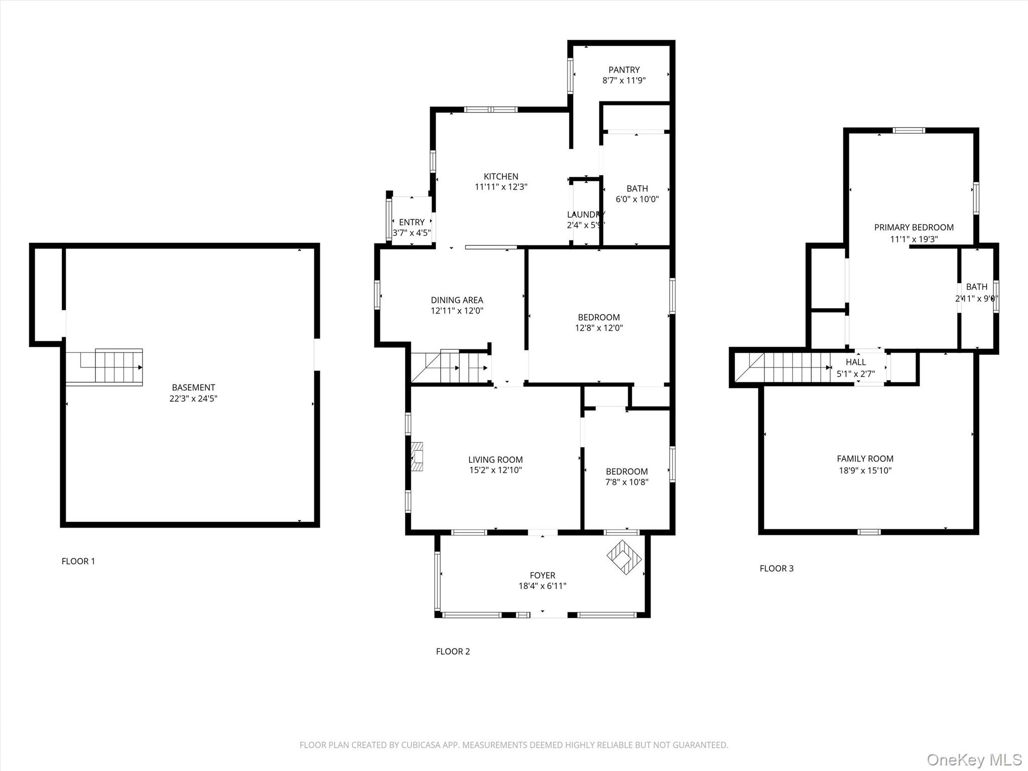
Price Improvement! Priced to Sell!! Welcome to 20 Heathcote Road – a CHARMING 3-bedroom with den/office, 1. 5 baths w/detached one-car garage & workshop. Relax on your front porch overlooking the fenced yard adorned w/cherry, magnolia, maple, and peach trees. The main level features a large sunroom/entryway, a cozy living room w/pellet stove (perfect for the winter months), primary bedroom, second bedroom, updated bath, kitchen, dining area, laundry area and pantry! The kitchen provides easy access from the flat driveway (convenient for bringing in the groceries), new butcher block countertops, new backsplash & large walk-in pantry closet w/radiant floor heating & shelving. The renovated bath also features radiant floor heating for added comfort, while the main-level laundry area enhances the home’s overall convenience. The second floor features a nice-sized bedroom w/half bath and additional den/office, w/great POTENTIAL to tailor the space to your needs. New flooring extends through the kitchen, pantry, dining area, sunroom, and entire second level! Some additional features include NEWLY black topped driveway, NEW back steps/railing, NEWER roof on main home/garage, NEWER ABG oil tank, boiler, electric panel, well pump, septic lid. Refrigerator & dryer approx. 2 years old (other appliances approx. 4 years old). Home has whole house water filter, generator hook-up, outside cameras w/flood lights & motion/sound detection, many windows on main level w/in 10 years. With a few more updates you will be calling this "home sweet home" for years to come. CLOSE distance to Lake Carmel to enjoy 7 beaches, fishing, non-motorized boating, playground, basketball, swimming. Close to parks, schools, library, shopping, golf, skiing. Quick access to Metro-North, I-84, and convenient routes to Danbury, White Plains, and NYC.

Features

  • Rooms: 7
  • Bedrooms: 3
  • Baths: 1 full / 1 half
  • Laundry: In Kitchen
  • Style: Cottage
  • Year Built: 1938
  • Garage: 1-car
  • Heating: Baseboard, Oil, Radiant, Radiant Floor
  • Cooling: Wall/Window Unit(s)
  • Basement: Partial, Unfinished
  • Approx Sq. Feet: 1,496
  • Acreage: 0.18
  • Est. Taxes: $8,427
  • Lot Desc: Back Yard, Front Yard, Level, Near Golf Course, Near Public Transit, Near School, Near Shops, See Remarks
  • Water Front: Yes
  • Elem. School: Matthew Paterson Elementary School
  • Middle School: George Fischer Middle School
  • High School: Carmel High School
  • School District: Carmel
  • Appliances: Dishwasher, Dryer, Oven, Refrigerator, Stainless Steel Appliance(s), Washer
  • MLS#: 929734
  • Days on Market: 28 days
  • Website: https://www.raveis.com
    /prop/929734/20heathcoteroad_carmel_ny?source=qrflyer
Listing information has been assembled from various sources of varying degrees of reliability. Any information critical to the buying decision should be independently verified.Listing courtesy of Briante Realty Group, LLC   Phone: 845-225-2020

William Raveis Family of Services

Our family of companies partner in delivering quality services in a one-stop-shopping environment. Together, we integrate the most comprehensive real estate, mortgage and insurance services available to fulfill your specific real estate needs.

Customer Service

888.699.8876

Contact@raveis.com

Our family of companies offer our clients a new level of full-service real estate. We shall:

  • Market your home to realize a quick sale at the best possible price
  • Place up to 20+ photos of your home on our website, raveis.com
  • Provide frequent communication and tracking reports showing the Internet views your home received on raveis.com
  • Showcase your home on raveis.com with a larger and more prominent format
  • Give you the full resources and strength of William Raveis Real Estate, Mortgage & Insurance and our cutting-edge technology

To learn more about our credentials, visit raveis.com today.

Sarah DeFlorioVP, Mortgage Banker, William Raveis Mortgage, LLC

NMLS Mortgage Loan Originator ID 1880936

347.223.0992

Sarah.DeFlorio@Raveis.com

Our Executive Mortgage Banker:

  • Is available to meet with you in our office, your home or office, evenings or weekends
  • Offers you pre-approval in minutes!
  • Provides a guaranteed closing date that meets your needs
  • Has access to hundreds of loan programs, all at competitive rates
  • Is in constant contact with a full processing, underwriting, and closing staff to ensure an efficient transaction

Ryan FortierInsurance Sales Director, William Raveis Insurance

516.739.7731

Ryan.Fortier@raveis.com

Our Insurance Division:

  • Will Provide a home insurance quote within 24 hours
  • Offers full-service coverage such as Homeowner's, Auto, Life, Renter's, Flood and Valuable Items
  • Partners with major insurance companies including Chubb, Kemper Unitrin, The Hartford, Progressive,
    Encompass, Travelers, Fireman's Fund, Middleoak Mutual, One Beacon and American Reliable

20 Heathcote Road, Carmel, NY, 10512

$415,000

Customer Service

William Raveis Real Estate

Phone: 888.699.8876

Contact@raveis.com

Sarah DeFlorio

VP, Mortgage Banker

William Raveis Mortgage, LLC

Phone: 347.223.0992

Sarah.DeFlorio@Raveis.com

NMLS Mortgage Loan Originator ID 1880936

5/6 (30 Yr)
Adjustable Rate Conforming*
30 Year
Fixed-Rate Conforming
15 Year
Fixed-Rate Conforming
Loan Amount $332,000 $332,000 $332,000
Term 360 months 360 months 180 months
Initial Interest Rate** 5.750% 6.125% 5.375%
Interest Rate based on Index + Margin 8.125%
Annual Percentage Rate 6.521% 6.304% 5.648%
Monthly Tax Payment $702 $702 $702
H/O Insurance Payment $75 $75 $75
Initial Principal & Interest Pmt $1,937 $2,017 $2,691
Total Monthly Payment $2,714 $2,794 $3,468

* The Initial Interest Rate and Initial Principal & Interest Payment are fixed for the first and adjust every six months thereafter for the remainder of the loan term. The Interest Rate and annual percentage rate may increase after consummation. The Index for this product is the SOFR. The margin for this adjustable rate mortgage may vary with your unique credit history, and terms of your loan.

** Mortgage Rates are subject to change, loan amount and product restrictions and may not be available for your specific transaction at commitment or closing. Rates, and the margin for adjustable rate mortgages [if applicable], are subject to change without prior notice.

The rates and Annual Percentage Rate (APR) cited above may be only samples for the purpose of calculating payments and are based upon the following assumptions: minimum credit score of 740, 20% down payment (e.g. $20,000 down on a $100,000 purchase price), $1,950 in finance charges, and 30 days prepaid interest, 1 point, 30 day rate lock. The rates and APR will vary depending upon your unique credit history and the terms of your loan, e.g. the actual down payment percentages, points and fees for your transaction. Property taxes and homeowner's insurance are estimates and subject to change.