1010 Sherman Avenue, #5B, Bronx, NY, 10456 | $200,000

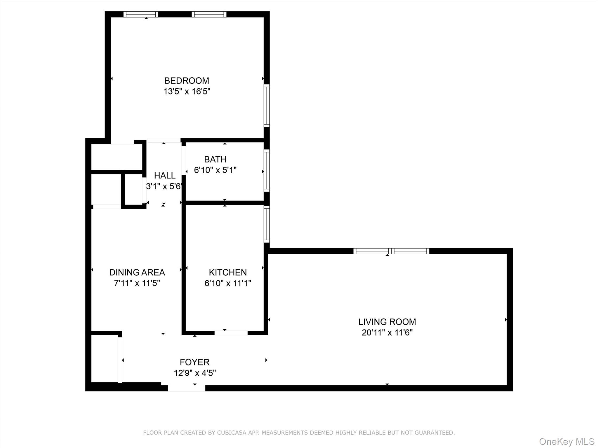
Welcome to 1010 Sherman Avenue, a beautifully maintained co-op building located in the vibrant Lower Grand Concourse area of the Bronx. This updated and spacious 1-bedroom apartment offers the perfect balance of comfort, convenience, and city access—all at an excellent value. Step inside to find a thoughtfully designed layout with generous living space, gleaming hardwood floors, and plenty of natural light. The apartment features an updated kitchen and bath, giving it a fresh and modern feel that’s ready for you to move right in. The building is packed with amenities that make everyday living easy and secure. Enjoy the convenience of on-site laundry, an on-site superintendent, and a modern security surveillance system. There’s even on-site parking and private storage available with a short waiting list—a rare and valuable find in this part of the city! Location is everything, and this apartment delivers. You're just a short distance to Yankee Stadium, local shops, restaurants, parks, and the Bronx courthouse. Whether you're commuting to work or heading out for fun, you'll appreciate being just 15 minutes from Midtown Manhattan via nearby subway lines. If you drive, access to I-87 is just minutes away, making it easy to get around the city and beyond. This is a fantastic opportunity for first-time buyers, commuters, or anyone looking to enjoy city living without sacrificing space or convenience. With everything this home and neighborhood have to offer, it’s easy to see why this area continues to grow in popularity. Don’t miss out—schedule your private showing today and discover why 1010 Sherman Avenue could be your perfect next move!

Features

  • Heating: Oil, Other
  • Cooling: Wall/Window Unit(s)
  • Levels: 6
  • Amenities: Elevator(s)
  • Rooms: 4
  • Bedrooms: 1
  • Baths: 1 full
  • Laundry: Common Area
  • Year Built: 1950
  • Approx Sq. Feet: 850
  • Lot Desc: Near Public Transit, Near School, Near Shops
  • Elem. School: Contact Agent
  • High School: Contact Agent
  • School District: Contact Agent
  • Pet Policy: Dogs OK
  • Appliances: Microwave, Oven, Range, Refrigerator
  • MLS#: 929087
  • Days on Market: 14 days
  • Website: https://www.raveis.com
    /prop/929087/1010shermanavenue_bronx_ny?source=qrflyer
Listing information has been assembled from various sources of varying degrees of reliability. Any information critical to the buying decision should be independently verified.Listing courtesy of Keller Williams NY Realty   Phone: 914-437-6100

William Raveis Family of Services

Our family of companies partner in delivering quality services in a one-stop-shopping environment. Together, we integrate the most comprehensive real estate, mortgage and insurance services available to fulfill your specific real estate needs.

Customer Service

888.699.8876

Contact@raveis.com

Our family of companies offer our clients a new level of full-service real estate. We shall:

  • Market your home to realize a quick sale at the best possible price
  • Place up to 20+ photos of your home on our website, raveis.com
  • Provide frequent communication and tracking reports showing the Internet views your home received on raveis.com
  • Showcase your home on raveis.com with a larger and more prominent format
  • Give you the full resources and strength of William Raveis Real Estate, Mortgage & Insurance and our cutting-edge technology

To learn more about our credentials, visit raveis.com today.

Frank KolbSenior Vice President - Coaching & Strategic, William Raveis Mortgage, LLC

NMLS Mortgage Loan Originator ID 81725

203.980.8025

Frank.Kolb@raveis.com

Our Executive Mortgage Banker:

  • Is available to meet with you in our office, your home or office, evenings or weekends
  • Offers you pre-approval in minutes!
  • Provides a guaranteed closing date that meets your needs
  • Has access to hundreds of loan programs, all at competitive rates
  • Is in constant contact with a full processing, underwriting, and closing staff to ensure an efficient transaction

Ryan FortierInsurance Sales Director, William Raveis Insurance

516.739.7731

Ryan.Fortier@raveis.com

Our Insurance Division:

  • Will Provide a home insurance quote within 24 hours
  • Offers full-service coverage such as Homeowner's, Auto, Life, Renter's, Flood and Valuable Items
  • Partners with major insurance companies including Chubb, Kemper Unitrin, The Hartford, Progressive,
    Encompass, Travelers, Fireman's Fund, Middleoak Mutual, One Beacon and American Reliable

1010 Sherman Avenue, #5B, Bronx, NY, 10456

$200,000

Customer Service

William Raveis Real Estate

Phone: 888.699.8876

Contact@raveis.com

Frank Kolb

Senior Vice President - Coaching & Strategic

William Raveis Mortgage, LLC

Phone: 203.980.8025

Frank.Kolb@raveis.com

NMLS Mortgage Loan Originator ID 81725

5/6 (30 Yr)
Adjustable Rate Conforming*
30 Year
Fixed-Rate Conforming
15 Year
Fixed-Rate Conforming
Loan Amount $160,000 $160,000 $160,000
Term 360 months 360 months 180 months
Initial Interest Rate** 5.500% 6.000% 5.250%
Interest Rate based on Index + Margin 8.125%
Annual Percentage Rate 6.209% 6.178% 5.541%
Monthly Tax Payment N/A N/A N/A
H/O Insurance Payment $75 $75 $75
Initial Principal & Interest Pmt $908 $959 $1,286
Total Monthly Payment $983 $1,034 $1,361

* The Initial Interest Rate and Initial Principal & Interest Payment are fixed for the first and adjust every six months thereafter for the remainder of the loan term. The Interest Rate and annual percentage rate may increase after consummation. The Index for this product is the SOFR. The margin for this adjustable rate mortgage may vary with your unique credit history, and terms of your loan.

** Mortgage Rates are subject to change, loan amount and product restrictions and may not be available for your specific transaction at commitment or closing. Rates, and the margin for adjustable rate mortgages [if applicable], are subject to change without prior notice.

The rates and Annual Percentage Rate (APR) cited above may be only samples for the purpose of calculating payments and are based upon the following assumptions: minimum credit score of 740, 20% down payment (e.g. $20,000 down on a $100,000 purchase price), $1,950 in finance charges, and 30 days prepaid interest, 1 point, 30 day rate lock. The rates and APR will vary depending upon your unique credit history and the terms of your loan, e.g. the actual down payment percentages, points and fees for your transaction. Property taxes and homeowner's insurance are estimates and subject to change.