124 Old Mount Kisco Road, Armonk, NY, 10504 | $849,000

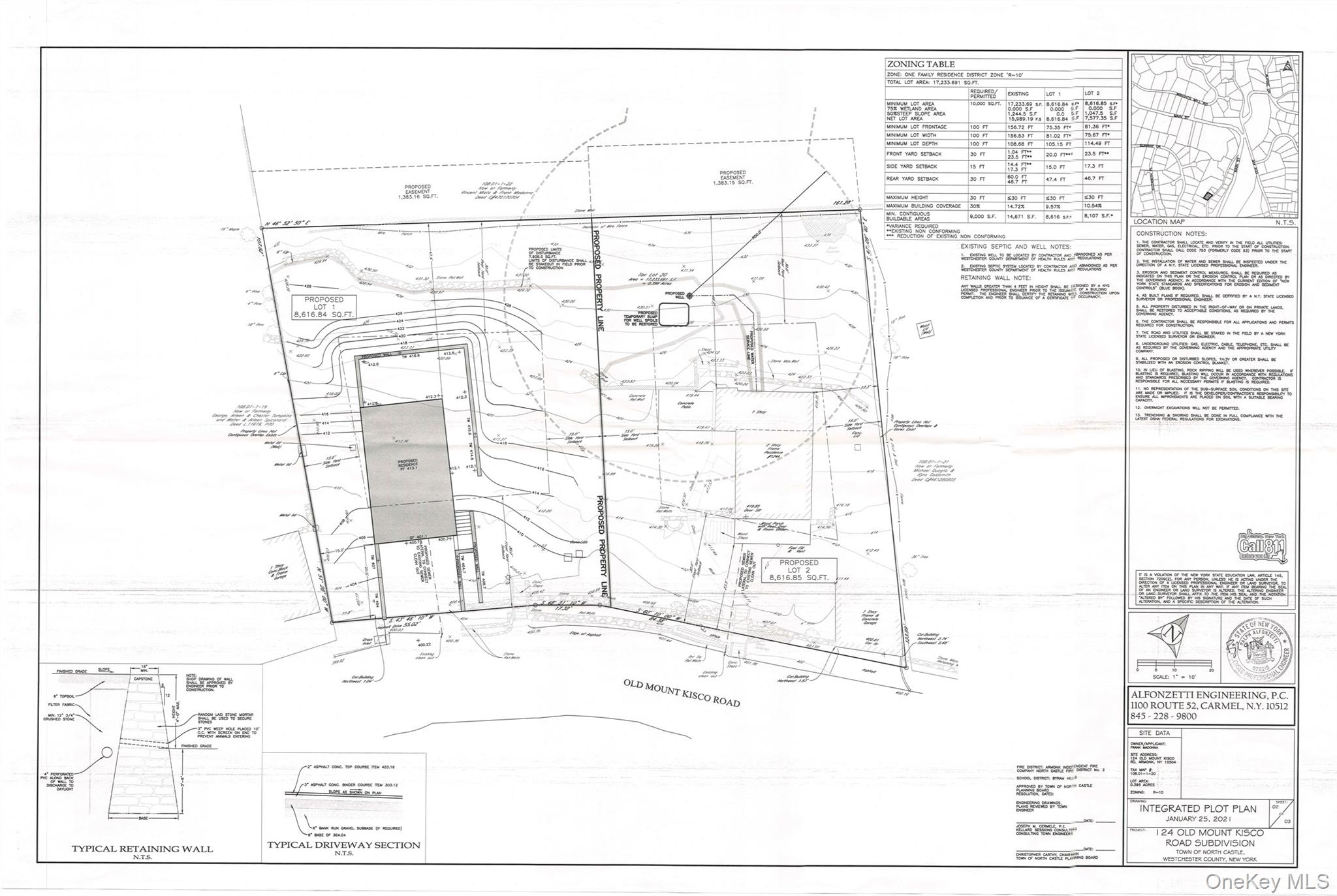
Subdivision approval pending - will deliver 2 approved building lots. Available to purchase both for $849, 000 or each lot for $450, 000. Sewers available on the street. Opportunity for investors to build 2 homes in the sought-after Byram Hills school district.

Features

  • Elem. School: Coman Hill
  • Middle School: H C Crittenden Middle School
  • High School: Byram Hills High School
  • School District: Byram Hills
  • MLS#: 926553
  • Days on Market: 162 days
  • Website: https://www.raveis.com
    /prop/926553/124oldmountkiscoroad_armonk_ny?source=qrflyer
Listing information has been assembled from various sources of varying degrees of reliability. Any information critical to the buying decision should be independently verified.

William Raveis Family of Services

Our family of companies partner in delivering quality services in a one-stop-shopping environment. Together, we integrate the most comprehensive real estate, mortgage and insurance services available to fulfill your specific real estate needs.

Anne PapastathisSales Vice President

203.856.6285

Anne.Papastathis@raveis.com

Our family of companies offer our clients a new level of full-service real estate. We shall:

  • Market your home to realize a quick sale at the best possible price
  • Place up to 20+ photos of your home on our website, raveis.com
  • Provide frequent communication and tracking reports showing the Internet views your home received on raveis.com
  • Showcase your home on raveis.com with a larger and more prominent format
  • Give you the full resources and strength of William Raveis Real Estate, Mortgage & Insurance and our cutting-edge technology

To learn more about our credentials, visit raveis.com today.

Francine SilbermanVP, Mortgage Banker, William Raveis Mortgage, LLC

NMLS Mortgage Loan Originator ID 69244

914.260.2006

Francine.Silberman@raveis.com

Our Executive Mortgage Banker:

  • Is available to meet with you in our office, your home or office, evenings or weekends
  • Offers you pre-approval in minutes!
  • Provides a guaranteed closing date that meets your needs
  • Has access to hundreds of loan programs, all at competitive rates
  • Is in constant contact with a full processing, underwriting, and closing staff to ensure an efficient transaction

Mace L. RattetVP, Mortgage Banker, William Raveis Mortgage, LLC

NMLS Mortgage Loan Originator ID 69957

914.260.5535

Mace.Rattet@raveis.com

Our Executive Mortgage Banker:

  • Is available to meet with you in our office, your home or office, evenings or weekends
  • Offers you pre-approval in minutes!
  • Provides a guaranteed closing date that meets your needs
  • Has access to hundreds of loan programs, all at competitive rates
  • Is in constant contact with a full processing, underwriting, and closing staff to ensure an efficient transaction

Gene RahillyInsurance Sales Director, William Raveis Insurance

917.494.9386

Gene.Rahilly@raveis.com

Our Insurance Division:

  • Will Provide a home insurance quote within 24 hours
  • Offers full-service coverage such as Homeowner's, Auto, Life, Renter's, Flood and Valuable Items
  • Partners with major insurance companies including Chubb, Kemper Unitrin, The Hartford, Progressive,
    Encompass, Travelers, Fireman's Fund, Middleoak Mutual, One Beacon and American Reliable

124 Old Mount Kisco Road, Armonk, NY, 10504

$849,000

Anne Papastathis

Sales Vice President

William Raveis Real Estate

Phone: 203.856.6285

Anne.Papastathis@raveis.com

Francine Silberman

VP, Mortgage Banker

William Raveis Mortgage, LLC

Phone: 914.260.2006

Francine.Silberman@raveis.com

NMLS Mortgage Loan Originator ID 69244

Mace L. Rattet

VP, Mortgage Banker

William Raveis Mortgage, LLC

Phone: 914.260.5535

Mace.Rattet@raveis.com

NMLS Mortgage Loan Originator ID 69957

5/6 (30 Yr)
Adjustable Rate Jumbo*
30 Year
Fixed-Rate Jumbo
15 Year
Fixed-Rate Jumbo
Loan Amount $679,200 $679,200 $679,200
Term 360 months 360 months 180 months
Initial Interest Rate** 5.500% 6.250% 6.000%
Interest Rate based on Index + Margin 8.125%
Annual Percentage Rate 6.165% 6.349% 6.183%
Monthly Tax Payment N/A N/A N/A
H/O Insurance Payment $92 $92 $92
Initial Principal & Interest Pmt $3,856 $4,182 $5,731
Total Monthly Payment $3,948 $4,274 $5,823

* The Initial Interest Rate and Initial Principal & Interest Payment are fixed for the first and adjust every six months thereafter for the remainder of the loan term. The Interest Rate and annual percentage rate may increase after consummation. The Index for this product is the SOFR. The margin for this adjustable rate mortgage may vary with your unique credit history, and terms of your loan.

** Mortgage Rates are subject to change, loan amount and product restrictions and may not be available for your specific transaction at commitment or closing. Rates, and the margin for adjustable rate mortgages [if applicable], are subject to change without prior notice.

The rates and Annual Percentage Rate (APR) cited above may be only samples for the purpose of calculating payments and are based upon the following assumptions: minimum credit score of 740, 20% down payment (e.g. $20,000 down on a $100,000 purchase price), $1,950 in finance charges, and 30 days prepaid interest, 1 point, 30 day rate lock. The rates and APR will vary depending upon your unique credit history and the terms of your loan, e.g. the actual down payment percentages, points and fees for your transaction. Property taxes and homeowner's insurance are estimates and subject to change.