110 N State Rd 19, Palatka, FL, 32177 | $3,000,000

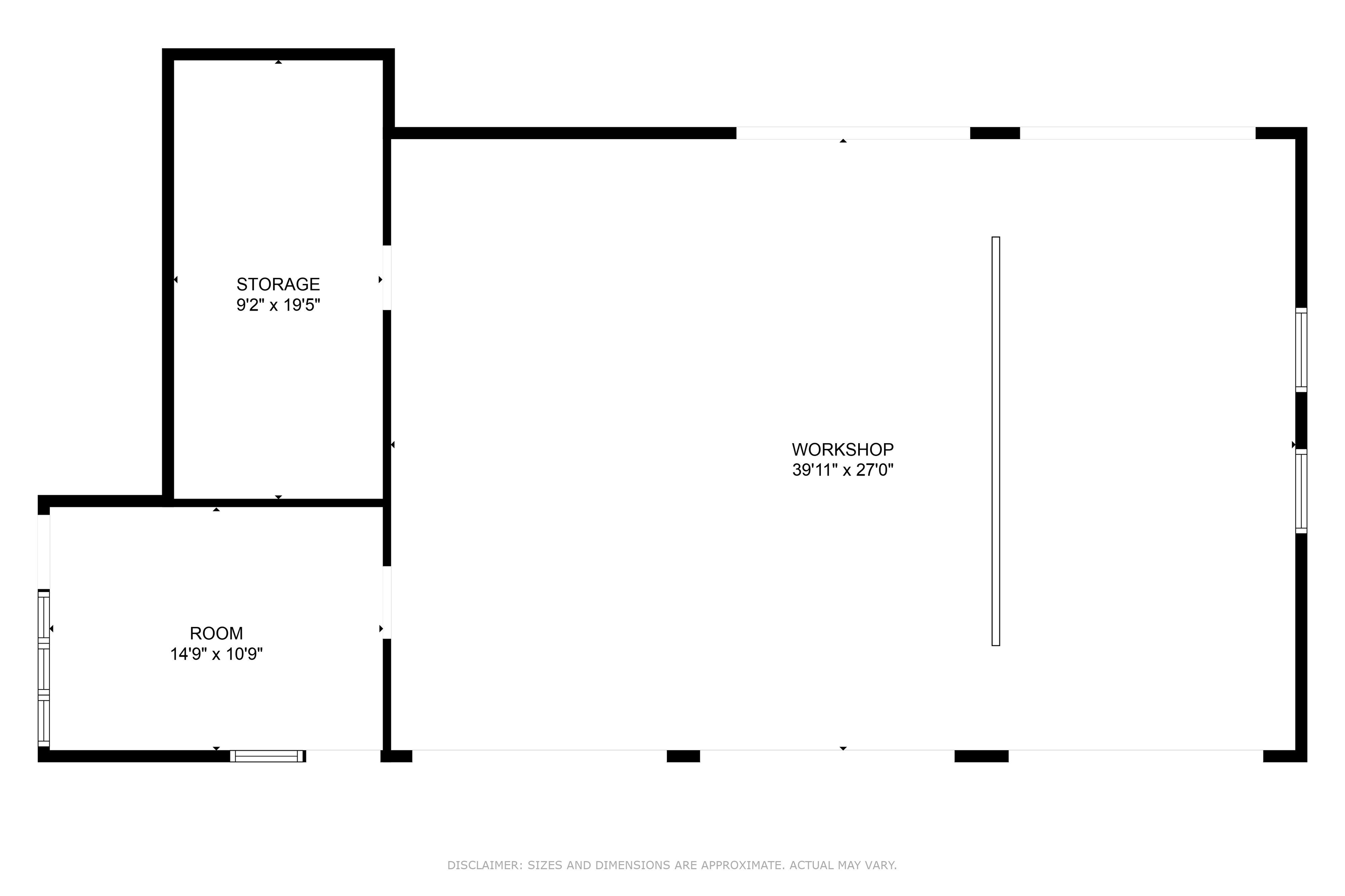
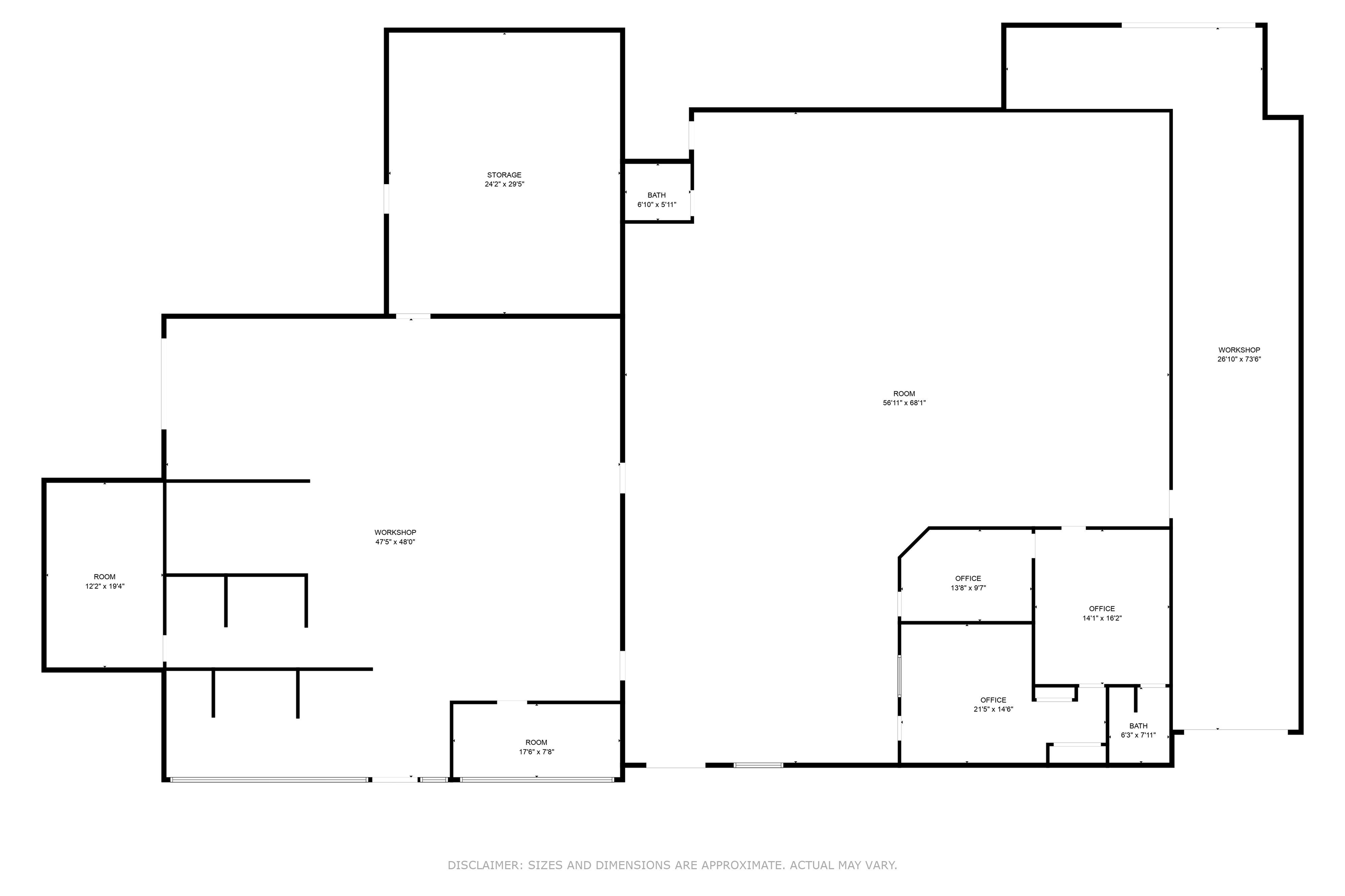
High-Visibility Redevelopment Opportunity – 1. 61 Acres in Growing Palatka Market Presenting a premier commercial offering in Palatka, Florida—spanning 1. 61 acres across three contiguous parcels. Strategically positioned at the high-traffic intersection of State Road 19 and St. Johns Avenue, this property boasts exceptional visibility and significant redevelopment potential in one of Putnam County’s fastest-growing areas. Parcel 1 features a 0. 93-acre lot improved, zoned C-4 Commercial Intensive, with a 7, 918 sq ft retail building operating as a plumbing and electrical supply business. The structure includes a large reception area, three offices, two bathrooms, a spacious workshop, and ample storage—ideal for retail or showroom use. The lot has a fenced area at the rear housing an additional 2, 592 sq ft warehouse with a 420 sq ft canopy. Parcel 2, located at the rear of Parcel 1, is a 0. 18-acre vacant lot with no street frontage. This space adds depth and flexibility to the overall site layout, providing further room for outdoor storage, expansion, or potential redevelopment. Parcel 3, at 108 N State Road 19, spans 0. 5 acres and includes a former filling station zoned C-2 (Commercial, General Light). This 1, 664 sq ft building features large roll-up glass doors, prominent front-facing windows, and a 600 sq ft canopy—ideal for automotive, retail, or service-oriented business uses. The entire offering presents abundant paved parking, prominent street exposure, and is strategically positioned in one of Palatka’s busiest commercial corridors. The parcels may be purchased together for $3, 000, 000 or separately, with Parcel 3 offered at $1, 250, 000 and Parcels 1 & 2 combined at $1, 750, 000. If re-parceling is desired to achieve a specific size or frontage, the seller will consider with a reasonable offer. The sale includes real estate only; no business, assets, or equipment will convey. The existing business will vacate upon sale. Owner financing may be considered with a minimum 20% down payment. This is a rare investment opportunity to acquire a highly visible, versatile commercial property with significant existing infrastructure and substantial upside for redevelopment, expansion, or repurposing.

Features

  • Zoning: C-4 C
  • Lot Size: 40511
  • MLS#: 255854
  • Days on Market: 138 days
  • Website: https://www.raveis.com
    /prop/255854/110nstaterd19_palatka_fl?source=qrflyer
This information is deemed reliable, but not guaranteed. The data relating to real estate displayed on this Site comes in part from the IDX Program of St Augustine & St. Johns County Board of REALTORS. The information being provided is for consumers' personal, non-commercial use and may not be used for any purpose other than to identify prospective properties consumers may be interested in purchasing.

William Raveis Family of Services

Our family of companies partner in delivering quality services in a one-stop-shopping environment. Together, we integrate the most comprehensive real estate, mortgage and insurance services available to fulfill your specific real estate needs.

The Stacy Book TeamSales Associates

203.858.6309

BookTeam@raveis.com

Our family of companies offer our clients a new level of full-service real estate. We shall:

  • Market your home to realize a quick sale at the best possible price
  • Place up to 20+ photos of your home on our website, raveis.com
  • Provide frequent communication and tracking reports showing the Internet views your home received on raveis.com
  • Showcase your home on raveis.com with a larger and more prominent format
  • Give you the full resources and strength of William Raveis Real Estate, Mortgage & Insurance and our cutting-edge technology

To learn more about our credentials, visit raveis.com today.

Mace L. RattetVP, Mortgage Banker, William Raveis Mortgage, LLC

NMLS Mortgage Loan Originator ID 69957

914.260.5535

Mace.Rattet@raveis.com

Our Executive Mortgage Banker:

  • Is available to meet with you in our office, your home or office, evenings or weekends
  • Offers you pre-approval in minutes!
  • Provides a guaranteed closing date that meets your needs
  • Has access to hundreds of loan programs, all at competitive rates
  • Is in constant contact with a full processing, underwriting, and closing staff to ensure an efficient transaction

Francine SilbermanVP, Mortgage Banker, William Raveis Mortgage, LLC

NMLS Mortgage Loan Originator ID 69244

914.260.2006

Francine.Silberman@raveis.com

Our Executive Mortgage Banker:

  • Is available to meet with you in our office, your home or office, evenings or weekends
  • Offers you pre-approval in minutes!
  • Provides a guaranteed closing date that meets your needs
  • Has access to hundreds of loan programs, all at competitive rates
  • Is in constant contact with a full processing, underwriting, and closing staff to ensure an efficient transaction

Alex FerroInsurance Sales Director, William Raveis Insurance

203.610.1536

Alex.Ferro@raveis.com

Our Insurance Division:

  • Will Provide a home insurance quote within 24 hours
  • Offers full-service coverage such as Homeowner's, Auto, Life, Renter's, Flood and Valuable Items
  • Partners with major insurance companies including Chubb, Kemper Unitrin, The Hartford, Progressive,
    Encompass, Travelers, Fireman's Fund, Middleoak Mutual, One Beacon and American Reliable

110 N State Rd 19, Palatka, FL, 32177

$3,000,000

The Stacy Book Team

Sales Associates

William Raveis Real Estate

Phone: 203.858.6309

BookTeam@raveis.com

Mace L. Rattet

VP, Mortgage Banker

William Raveis Mortgage, LLC

Phone: 914.260.5535

Mace.Rattet@raveis.com

NMLS Mortgage Loan Originator ID 69957

Francine Silberman

VP, Mortgage Banker

William Raveis Mortgage, LLC

Phone: 914.260.2006

Francine.Silberman@raveis.com

NMLS Mortgage Loan Originator ID 69244

5/6 (30 Yr)
Adjustable Rate Jumbo*
30 Year
Fixed-Rate Jumbo
15 Year
Fixed-Rate Jumbo
Loan Amount $2,400,000 $2,400,000 $2,400,000
Term 360 months 360 months 180 months
Initial Interest Rate** 5.500% 5.875% 5.750%
Interest Rate based on Index + Margin 8.125%
Annual Percentage Rate 6.130% 5.984% 5.912%
Monthly Tax Payment N/A N/A N/A
H/O Insurance Payment $125 $125 $125
Initial Principal & Interest Pmt $13,627 $14,197 $19,930
Total Monthly Payment $13,752 $14,322 $20,055

* The Initial Interest Rate and Initial Principal & Interest Payment are fixed for the first and adjust every six months thereafter for the remainder of the loan term. The Interest Rate and annual percentage rate may increase after consummation. The Index for this product is the SOFR. The margin for this adjustable rate mortgage may vary with your unique credit history, and terms of your loan.

** Mortgage Rates are subject to change, loan amount and product restrictions and may not be available for your specific transaction at commitment or closing. Rates, and the margin for adjustable rate mortgages [if applicable], are subject to change without prior notice.

The rates and Annual Percentage Rate (APR) cited above may be only samples for the purpose of calculating payments and are based upon the following assumptions: minimum credit score of 740, 20% down payment (e.g. $20,000 down on a $100,000 purchase price), $1,950 in finance charges, and 30 days prepaid interest, 1 point, 30 day rate lock. The rates and APR will vary depending upon your unique credit history and the terms of your loan, e.g. the actual down payment percentages, points and fees for your transaction. Property taxes and homeowner's insurance are estimates and subject to change.