1 Hoyt Road, Wingdale, NY, 12594 | $425,000

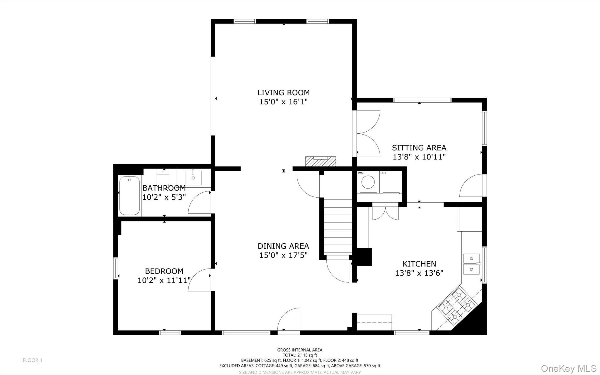
A rare two-building property, 1 Hoyt Road pairs a classic farmhouse with a newer studio-style structure built in 2008, featuring a fireplace, full bath, and two-car garage. Set among the rolling hills of Wingdale, New York, near the Sherman, Connecticut border, 1 Hoyt Road offers the quiet beauty of country living and the artistry of a thoughtfully built home. Morning light filters through tall windows, gliding across hardwood floors on the main level and the wide-plank flooring above. Each window frames views of trees and sky, blending the indoors with the surrounding landscape. The farmhouse combines timeless warmth with subtle sophistication. A brick entryway sets the tone for craftsmanship that continues throughout. The kitchen pairs rustic charm with everyday function, featuring exposed brick accents, built-in cabinetry, and a butcher block island that invites gathering and morning coffee. A first-floor bedroom and full bath offer convenience, while the upper bedroom and bath provide a private retreat beneath gentle eaves. Across the lawn, a detached two-car garage leads to a stunning great room, originally designed as an artist’s studio. Sunlight pours through three walls of windows, highlighting cathedral ceilings with exposed beams, a brick fireplace framed in detailed millwork, and granite tile floors that shimmer in the changing light. Built-in bookcases define the entryway with quiet elegance, while a full bath designed for accessibility adds comfort and versatility. Above the garage lies a loft-like open area, unfinished yet full of character, ready to serve as generous storage or a blank canvas for the imagination. The property sits essentially on the Wingdale, NY/Sherman, CT border, an area known for its sweeping natural beauty and multiple protected lands. To the east lies the newly established Grape Hollow State Forest, preserving hundreds of acres of wilderness and ensuring that the surrounding landscape remains untouched. The Appalachian Trail winds nearby, and favorite local destinations such as Bulls Bridge, Candlewood Lake, and Squantz Pond offer endless opportunities for hiking, kayaking, and peaceful weekends by the water. Less than two hours from New York City and close to Metro-North, this home welcomes both full-time residents and weekend retreat seekers who value beauty, privacy, and connection to nature. 1 Hoyt Road is more than a home. It is a composition of light, craftsmanship, and calm, surrounded by land that will remain beautifully still.

Features

  • Rooms: 7
  • Bedrooms: 2
  • Baths: 3 full
  • Style: Farmhouse
  • Year Built: 1900
  • Garage: 2-car
  • Heating: Oil
  • Cooling: Wall/Window Unit(s)
  • Basement: Partial, Unfinished
  • Approx Sq. Feet: 1,939
  • Acreage: 2.39
  • Est. Taxes: $7,597
  • Elem. School: Wingdale Elementary School
  • Middle School: Dover Middle School
  • High School: Dover High School
  • School District: Dover
  • Appliances: Dishwasher, Dryer, Gas Range, Microwave, Refrigerator, Washer, Water Softener Owned
  • MLS#: 923870
  • Days on Market: 96 days
  • Website: https://www.raveis.com
    /prop/923870/1hoytroad_wingdale_ny?source=qrflyer
Listing information has been assembled from various sources of varying degrees of reliability. Any information critical to the buying decision should be independently verified.Listing courtesy of RE/MAX Classic Realty   Phone: 914-243-5200

William Raveis Family of Services

Our family of companies partner in delivering quality services in a one-stop-shopping environment. Together, we integrate the most comprehensive real estate, mortgage and insurance services available to fulfill your specific real estate needs.

Customer Service

888.699.8876

Contact@raveis.com

Our family of companies offer our clients a new level of full-service real estate. We shall:

  • Market your home to realize a quick sale at the best possible price
  • Place up to 20+ photos of your home on our website, raveis.com
  • Provide frequent communication and tracking reports showing the Internet views your home received on raveis.com
  • Showcase your home on raveis.com with a larger and more prominent format
  • Give you the full resources and strength of William Raveis Real Estate, Mortgage & Insurance and our cutting-edge technology

To learn more about our credentials, visit raveis.com today.

Frank KolbSenior Vice President - Coaching & Strategic, William Raveis Mortgage, LLC

NMLS Mortgage Loan Originator ID 81725

203.980.8025

Frank.Kolb@raveis.com

Our Executive Mortgage Banker:

  • Is available to meet with you in our office, your home or office, evenings or weekends
  • Offers you pre-approval in minutes!
  • Provides a guaranteed closing date that meets your needs
  • Has access to hundreds of loan programs, all at competitive rates
  • Is in constant contact with a full processing, underwriting, and closing staff to ensure an efficient transaction

Ryan FortierInsurance Sales Director, William Raveis Insurance

516.739.7731

Ryan.Fortier@raveis.com

Our Insurance Division:

  • Will Provide a home insurance quote within 24 hours
  • Offers full-service coverage such as Homeowner's, Auto, Life, Renter's, Flood and Valuable Items
  • Partners with major insurance companies including Chubb, Kemper Unitrin, The Hartford, Progressive,
    Encompass, Travelers, Fireman's Fund, Middleoak Mutual, One Beacon and American Reliable

1 Hoyt Road, Wingdale, NY, 12594

$425,000

Customer Service

William Raveis Real Estate

Phone: 888.699.8876

Contact@raveis.com

Frank Kolb

Senior Vice President - Coaching & Strategic

William Raveis Mortgage, LLC

Phone: 203.980.8025

Frank.Kolb@raveis.com

NMLS Mortgage Loan Originator ID 81725

5/6 (30 Yr)
Adjustable Rate Conforming*
30 Year
Fixed-Rate Conforming
15 Year
Fixed-Rate Conforming
Loan Amount $340,000 $340,000 $340,000
Term 360 months 360 months 180 months
Initial Interest Rate** 5.375% 6.125% 5.375%
Interest Rate based on Index + Margin 8.125%
Annual Percentage Rate 6.161% 6.292% 5.609%
Monthly Tax Payment $633 $633 $633
H/O Insurance Payment $75 $75 $75
Initial Principal & Interest Pmt $1,904 $2,066 $2,756
Total Monthly Payment $2,612 $2,774 $3,464

* The Initial Interest Rate and Initial Principal & Interest Payment are fixed for the first and adjust every six months thereafter for the remainder of the loan term. The Interest Rate and annual percentage rate may increase after consummation. The Index for this product is the SOFR. The margin for this adjustable rate mortgage may vary with your unique credit history, and terms of your loan.

** Mortgage Rates are subject to change, loan amount and product restrictions and may not be available for your specific transaction at commitment or closing. Rates, and the margin for adjustable rate mortgages [if applicable], are subject to change without prior notice.

The rates and Annual Percentage Rate (APR) cited above may be only samples for the purpose of calculating payments and are based upon the following assumptions: minimum credit score of 740, 20% down payment (e.g. $20,000 down on a $100,000 purchase price), $1,950 in finance charges, and 30 days prepaid interest, 1 point, 30 day rate lock. The rates and APR will vary depending upon your unique credit history and the terms of your loan, e.g. the actual down payment percentages, points and fees for your transaction. Property taxes and homeowner's insurance are estimates and subject to change.