27 Maltese Drive, Middletown, NY, 10940 | $1,799,999

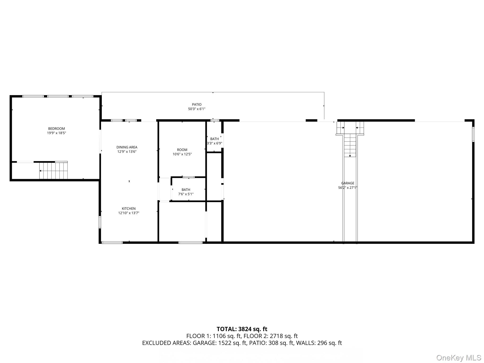
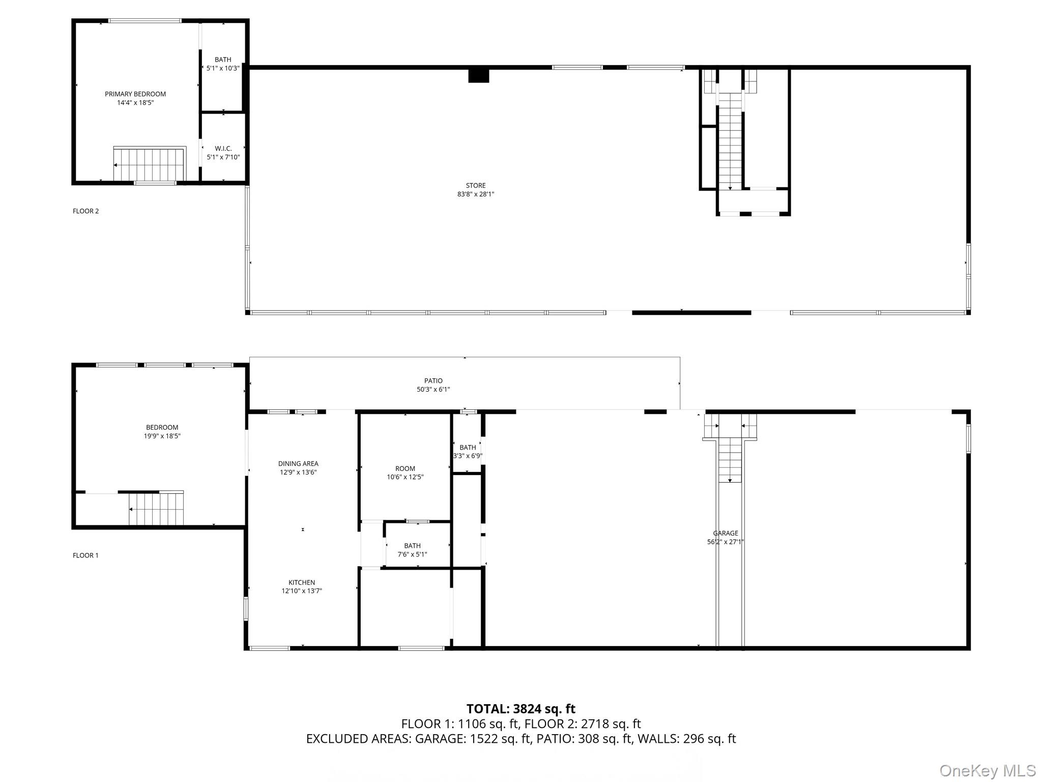
What an opportunity to OWN over 6, 000± sqft of mix use space of retail, warehouse space and grandfathered in residential space right on the Miracle Mile of Route 211! Exceptional visibility, easy access, and incredible potential for an owner-user, investor, or redevelopment play. (Legal address: 27 Maltese Drive, the road behind the building. ) This property includes a fully rented 3-bedroom apartment providing immediate income, plus a lower-level 2, 000± SF warehouse ideal for storage, trades, or service operations. Town approvals are in, and renovations have already begun! The current owner is moving forward with the construction of three individual storefronts, each with its own private bathroom. The project will also deliver brand-new flooring and modernized glass display windows for all retail units—perfect for professional services, boutique retail, or showroom concepts. Bring your vision and work directly with the owner during construction to tailor the spaces to your business or investment goals. Keep a storefront for your own operation and lease the others, or fully lease all units for a strong cash-flow investment on one of the most recognized commercial corridors in Orange County.

Features

  • Property Type: Mixed Use
  • Construction: Frame
  • Utilities: Cable Connected, Electricity Connected, Natural Gas Connected, Water Connected
  • Heating: Forced Air, Natural Gas
  • Cooling: Wall/Window Unit(s)
  • Acreage: 0.58
  • Est. Taxes: $12,626
  • MLS#: 924493
  • Days on Market: 125 days
  • Website: https://www.raveis.com
    /prop/924493/27maltesedrive_middletown_ny?source=qrflyer
Listing information has been assembled from various sources of varying degrees of reliability. Any information critical to the buying decision should be independently verified.

William Raveis Family of Services

Our family of companies partner in delivering quality services in a one-stop-shopping environment. Together, we integrate the most comprehensive real estate, mortgage and insurance services available to fulfill your specific real estate needs.

Team ResultsSales Associates

347.697.9990

TeamResults@raveis.com

Our family of companies offer our clients a new level of full-service real estate. We shall:

  • Market your home to realize a quick sale at the best possible price
  • Place up to 20+ photos of your home on our website, raveis.com
  • Provide frequent communication and tracking reports showing the Internet views your home received on raveis.com
  • Showcase your home on raveis.com with a larger and more prominent format
  • Give you the full resources and strength of William Raveis Real Estate, Mortgage & Insurance and our cutting-edge technology

To learn more about our credentials, visit raveis.com today.

Vincent DiMellaVP, Mortgage Banker, William Raveis Mortgage, LLC

NMLS Mortgage Loan Originator ID 24240

914.494.1459

Vincent.DiMella@raveis.com

Our Executive Mortgage Banker:

  • Is available to meet with you in our office, your home or office, evenings or weekends
  • Offers you pre-approval in minutes!
  • Provides a guaranteed closing date that meets your needs
  • Has access to hundreds of loan programs, all at competitive rates
  • Is in constant contact with a full processing, underwriting, and closing staff to ensure an efficient transaction

Ryan FortierInsurance Sales Director, William Raveis Insurance

516.739.7731

Ryan.Fortier@raveis.com

Our Insurance Division:

  • Will Provide a home insurance quote within 24 hours
  • Offers full-service coverage such as Homeowner's, Auto, Life, Renter's, Flood and Valuable Items
  • Partners with major insurance companies including Chubb, Kemper Unitrin, The Hartford, Progressive,
    Encompass, Travelers, Fireman's Fund, Middleoak Mutual, One Beacon and American Reliable

27 Maltese Drive, Middletown, NY, 10940

$1,799,999

Team Results

Sales Associates

William Raveis Real Estate

Phone: 347.697.9990

TeamResults@raveis.com

Vincent DiMella

VP, Mortgage Banker

William Raveis Mortgage, LLC

Phone: 914.494.1459

Vincent.DiMella@raveis.com

NMLS Mortgage Loan Originator ID 24240

5/6 (30 Yr)
Adjustable Rate Jumbo*
30 Year
Fixed-Rate Jumbo
15 Year
Fixed-Rate Jumbo
Loan Amount $1,439,999 $1,439,999 $1,439,999
Term 360 months 360 months 180 months
Initial Interest Rate** 4.750% 5.625% 5.375%
Interest Rate based on Index + Margin 8.125%
Annual Percentage Rate 5.878% 5.732% 5.555%
Monthly Tax Payment $1,052 $1,052 $1,052
H/O Insurance Payment $125 $125 $125
Initial Principal & Interest Pmt $7,512 $8,289 $11,671
Total Monthly Payment $8,689 $9,466 $12,848

* The Initial Interest Rate and Initial Principal & Interest Payment are fixed for the first and adjust every six months thereafter for the remainder of the loan term. The Interest Rate and annual percentage rate may increase after consummation. The Index for this product is the SOFR. The margin for this adjustable rate mortgage may vary with your unique credit history, and terms of your loan.

** Mortgage Rates are subject to change, loan amount and product restrictions and may not be available for your specific transaction at commitment or closing. Rates, and the margin for adjustable rate mortgages [if applicable], are subject to change without prior notice.

The rates and Annual Percentage Rate (APR) cited above may be only samples for the purpose of calculating payments and are based upon the following assumptions: minimum credit score of 740, 20% down payment (e.g. $20,000 down on a $100,000 purchase price), $1,950 in finance charges, and 30 days prepaid interest, 1 point, 30 day rate lock. The rates and APR will vary depending upon your unique credit history and the terms of your loan, e.g. the actual down payment percentages, points and fees for your transaction. Property taxes and homeowner's insurance are estimates and subject to change.