26 Sunset Avenue, E. Quogue (East Quogue), NY, 11942 | $5,750,000

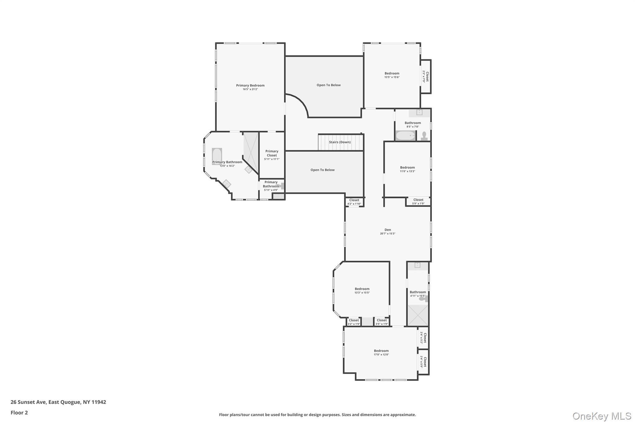
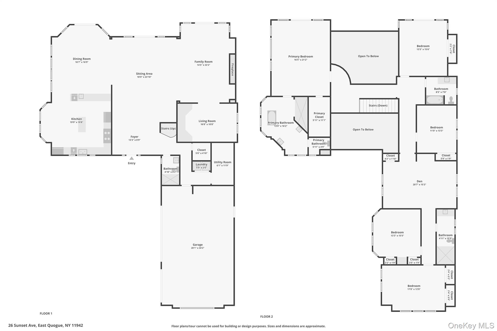
Set along East Quogue’s highly sought-after Sunset Avenue, this 1. 4-acre waterfront estate offers a rare combination of privacy, scale, and direct access to open water. Tucked deep off the road and framed by manicured hedges, a long private drive leads to the residence, creating a grand sense of arrival. With 100 feet of water frontage on Phillips Creek and views extending toward Shinnecock Bay, the property includes a deep-water dock designed to accommodate larger boats or multiple watercraft—ideal for those who love to spend their days on the water. Custom built in 2000, the home blends timeless Hamptons character with modern comfort. Wrapped in classic cedar siding with a brand-new cedar roof, it sits beautifully within its natural surroundings. Outdoors, the grounds are designed for recreation and relaxation alike—featuring a pristine bulkhead, heated gunite pool with spa, putting green, basketball court, outdoor grill, and a gas fireplace for year-round enjoyment. The western-facing backyard captures unforgettable sunsets over the bay, creating a perfect setting for gatherings. Inside, over 4, 000 square feet of thoughtfully designed living space unfolds through a double-height foyer with coffered ceiling and floor-to-ceiling windows that frame panoramic water views. The open layout includes a spacious great room with a gas fireplace, formal and casual dining spaces, and a chef’s kitchen equipped with Viking and Sub-Zero appliances, dual dishwashers, double sinks, and counter seating for easy entertaining. Upstairs, the primary suite serves as a private retreat with a balcony overlooking the bay, a walk-in closet, and a spa-like ensuite with a soaking tub and dual shower. Every bedroom in the home enjoys water views, including a second bedroom with its own private balcony. Two additional bedrooms are set within a separate wing with an adjoining den—ideal for guests, family, or office use. A fifth bedroom completes the level, offering flexibility and comfort for all. Additional highlights include custom trim throughout, a full-house generator, three-zone climate control, custom blinds, and a three-car garage. From its deep-water dock to its sunset views, this estate delivers the essence of Hamptons waterfront living—whether as a summer escape or year-round home.

Features

  • Town: E. Quogue
  • Rooms: 12
  • Bedrooms: 5
  • Baths: 4 full
  • Laundry: Laundry Room
  • Style: Traditional
  • Year Built: 2000
  • Garage: 3-car
  • Heating: Ducts, Forced Air, Oil
  • Cooling: Central Air
  • Basement: Crawl Space
  • Approx Sq. Feet: 4,100
  • Acreage: 1.4
  • Est. Taxes: $26,056
  • Lot Desc: Back Yard, Front Yard, Landscaped, Sprinklers In Front, Sprinklers In Rear, Stone/Brick Wall, Views, Waterfront
  • View: Water
  • Water Front: Yes
  • Elem. School: East Quogue School
  • Middle School: Westhampton Middle School
  • High School: Westhampton Beach Senior High Sch
  • School District: Westhampton Beach
  • Pool: Diving Board, Fenced, In Ground, Outdoor Pool, Pool Cover, Pool/Spa Combo, Salt Water
  • Appliances: Dishwasher, Dryer, Exhaust Fan, Freezer, Gas Cooktop, Gas Oven, Gas Range, Microwave, Refrigerator, Stainless Steel Appliance(s), Trash Compactor, Washer
  • MLS#: 918599
  • Days on Market: 174 days
  • Website: https://www.raveis.com
    /eprop/918599/26sunsetavenue_equogue_ny?source=qrflyer
Listing information has been assembled from various sources of varying degrees of reliability. Any information critical to the buying decision should be independently verified.Listing courtesy of Daniel Gale Sothebys Intl Rlty   Phone: 631-288-1050

William Raveis Family of Services

Our family of companies partner in delivering quality services in a one-stop-shopping environment. Together, we integrate the most comprehensive real estate, mortgage and insurance services available to fulfill your specific real estate needs.

Customer Service

888.699.8876

Contact@raveis.com

Our family of companies offer our clients a new level of full-service real estate. We shall:

  • Market your home to realize a quick sale at the best possible price
  • Place up to 20+ photos of your home on our website, raveis.com
  • Provide frequent communication and tracking reports showing the Internet views your home received on raveis.com
  • Showcase your home on raveis.com with a larger and more prominent format
  • Give you the full resources and strength of William Raveis Real Estate, Mortgage & Insurance and our cutting-edge technology

To learn more about our credentials, visit raveis.com today.

Frank KolbSenior Vice President - Coaching & Strategic, William Raveis Mortgage, LLC

NMLS Mortgage Loan Originator ID 81725

203.980.8025

Frank.Kolb@raveis.com

Our Executive Mortgage Banker:

  • Is available to meet with you in our office, your home or office, evenings or weekends
  • Offers you pre-approval in minutes!
  • Provides a guaranteed closing date that meets your needs
  • Has access to hundreds of loan programs, all at competitive rates
  • Is in constant contact with a full processing, underwriting, and closing staff to ensure an efficient transaction

Ryan FortierInsurance Sales Director, William Raveis Insurance

516.739.7731

Ryan.Fortier@raveis.com

Our Insurance Division:

  • Will Provide a home insurance quote within 24 hours
  • Offers full-service coverage such as Homeowner's, Auto, Life, Renter's, Flood and Valuable Items
  • Partners with major insurance companies including Chubb, Kemper Unitrin, The Hartford, Progressive,
    Encompass, Travelers, Fireman's Fund, Middleoak Mutual, One Beacon and American Reliable

26 Sunset Avenue, E. Quogue (East Quogue), NY, 11942

$5,750,000

Customer Service

William Raveis Real Estate

Phone: 888.699.8876

Contact@raveis.com

Frank Kolb

Senior Vice President - Coaching & Strategic

William Raveis Mortgage, LLC

Phone: 203.980.8025

Frank.Kolb@raveis.com

NMLS Mortgage Loan Originator ID 81725

5/6 (30 Yr)
Adjustable Rate Jumbo*
30 Year
Fixed-Rate Jumbo
15 Year
Fixed-Rate Jumbo
Loan Amount $4,600,000 $4,600,000 $4,600,000
Term 360 months 360 months 180 months
Initial Interest Rate** 5.375% 6.000% 5.750%
Interest Rate based on Index + Margin 8.125%
Annual Percentage Rate 6.117% 6.110% 5.932%
Monthly Tax Payment $2,171 $2,171 $2,171
H/O Insurance Payment $125 $125 $125
Initial Principal & Interest Pmt $25,759 $27,579 $38,199
Total Monthly Payment $28,055 $29,875 $40,495

* The Initial Interest Rate and Initial Principal & Interest Payment are fixed for the first and adjust every six months thereafter for the remainder of the loan term. The Interest Rate and annual percentage rate may increase after consummation. The Index for this product is the SOFR. The margin for this adjustable rate mortgage may vary with your unique credit history, and terms of your loan.

** Mortgage Rates are subject to change, loan amount and product restrictions and may not be available for your specific transaction at commitment or closing. Rates, and the margin for adjustable rate mortgages [if applicable], are subject to change without prior notice.

The rates and Annual Percentage Rate (APR) cited above may be only samples for the purpose of calculating payments and are based upon the following assumptions: minimum credit score of 740, 20% down payment (e.g. $20,000 down on a $100,000 purchase price), $1,950 in finance charges, and 30 days prepaid interest, 1 point, 30 day rate lock. The rates and APR will vary depending upon your unique credit history and the terms of your loan, e.g. the actual down payment percentages, points and fees for your transaction. Property taxes and homeowner's insurance are estimates and subject to change.