11000 Carrara CT, Bonita Springs, FL, 34135 | $769,000

Premier Golf Community Living with Elevator Convenience!
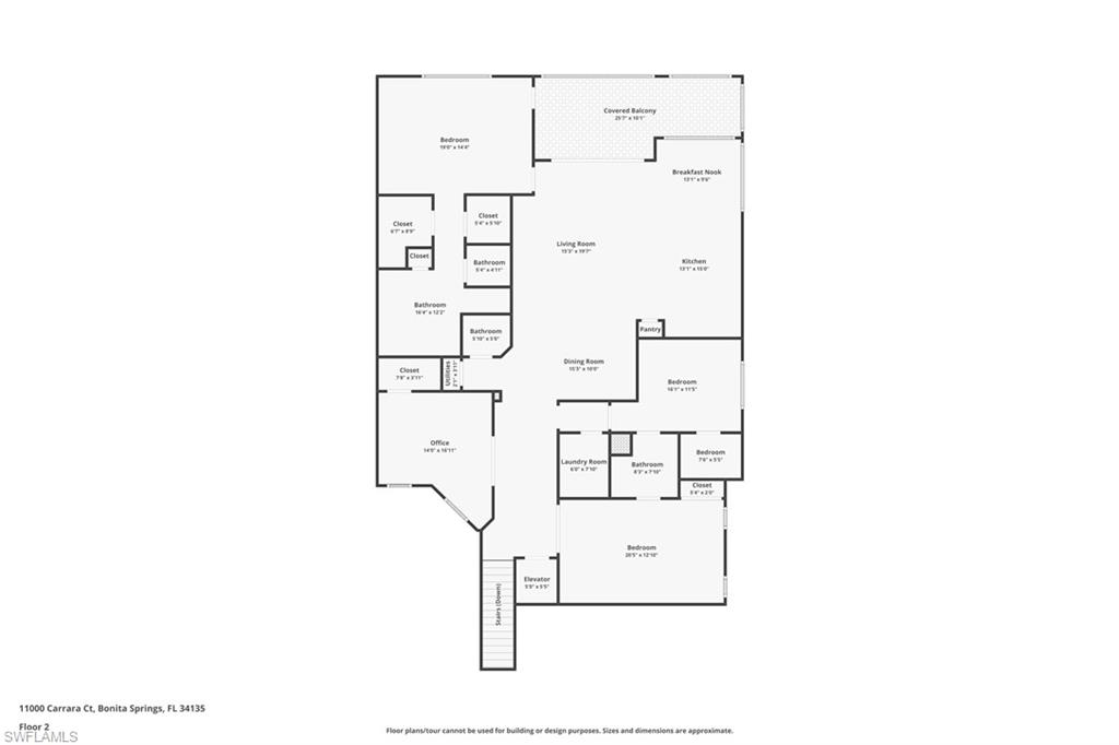
Welcome to Vasari Country Club, where immediate and included golf membership accompanies this spacious Ferrara-floorplan coach home. A private elevator adds ease of access to the 2nd-floor residence, which offers lush, secluded views of landscaped woodlands from the screened lanai—perfect for sunny mornings and comfortably shaded afternoons.
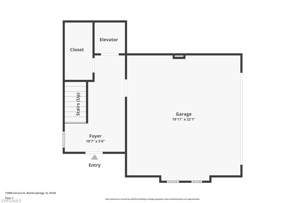
Step inside from the ground-level foyer or the attached two-car garage to discover a thoughtfully designed layout with 3 bedrooms plus a den. The split-bedroom plan ensures maximum privacy, while the primary suite features his-and-her walk-in closets and a spa-inspired bath with oversized soaking tub, dual vanities, and a separate shower. There’s plenty of storage throughout, including a walk-in closet in the guest room.
The kitchen’s seating bar flows effortlessly into the main living area, creating a warm, open setting that makes entertaining family and friends a delight. A charming breakfast nook is ideal for casual dining or game night, and the den with French doors provides excellent flex space for an office or fourth bedroom.
Residents of Vasari enjoy an amenity-rich bundled golf lifestyle: an 18-hole championship course, lighted Har-Tru tennis courts, pro shop, bocce, resort-style pool and spa, clubhouse with dining and social spaces, and a full calendar of events. Vasari is also celebrated for its beautifully maintained landscaping and a neighborly, welcoming community spirit. Centrally located near pristine Gulf beaches, downtown Naples, RSW and Naples airports, as well as exceptional shopping, dining, arts, and nature trails—this home truly offers the best of Southwest Florida living.

Features

  • Building Design: Low Rise (1-3)
  • Parking: Driveway Paved
  • Heating: Central Electric
  • Cooling: Central Electric
  • Levels: 2
  • Amenities: BBQ - Picnic,Bike And Jog Path,Bocce Court,Clubhouse,Community Pool,Community Room,Community Spa/Hot tub,Exercise Room,Golf Course,Internet Access,Private Membership,Putting Green,Restaurant,Sidewalk,Streetlight,Tennis Court,Underground Utility
  • Bedrooms: 3
  • Baths: 2 full / 1 half
  • Complex: CASSIA
  • Development: VASARI
  • Year Built: 2006
  • Approx Sq. Feet: 2,716
  • Est. Taxes: $10,588
  • Condo Fee: $1,900 Quarterly
  • Master HOA Fee: $13,343
  • Lot Desc: Corner,Other
  • View: Landscaped Area,Wooded Area
  • Community Type: Gated,Golf Course,Tennis
  • Pet Policy: Limits
  • MLS#: 225071454
  • Website: https://www.raveis.com
    /raveis/225071454/11000carraract_bonitasprings_fl?source=qrflyer
Courtesy of

William Raveis Family of Services

Our family of companies partner in delivering quality services in a one-stop-shopping environment. Together, we integrate the most comprehensive real estate, mortgage and insurance services available to fulfill your specific real estate needs.

Julie MansLuxury Properties Specialist

239.317.5051

Julie.Mans@raveis.com

Our family of companies offer our clients a new level of full-service real estate. We shall:

  • Market your home to realize a quick sale at the best possible price
  • Place up to 20+ photos of your home on our website, raveis.com
  • Provide frequent communication and tracking reports showing the Internet views your home received on raveis.com
  • Showcase your home on raveis.com with a larger and more prominent format
  • Give you the full resources and strength of William Raveis Real Estate, Mortgage & Insurance and our cutting-edge technology

To learn more about our credentials, visit raveis.com today.

Melissa CohnRVP, Mortgage Banker, William Raveis Mortgage, LLC

NMLS Mortgage Loan Originator ID 16953

917.838.7300

Melissa.Cohn@raveis.com

Our Executive Mortgage Banker:

  • Is available to meet with you in our office, your home or office, evenings or weekends
  • Offers you pre-approval in minutes!
  • Provides a guaranteed closing date that meets your needs
  • Has access to hundreds of loan programs, all at competitive rates
  • Is in constant contact with a full processing, underwriting, and closing staff to ensure an efficient transaction

Pedro DelgadilloInsurance Sales Director, William Raveis Insurance

305.922.5393

Pedro.Delgadillo@raveis.com

Our Insurance Division:

  • Will Provide a home insurance quote within 24 hours
  • Offers full-service coverage such as Homeowner's, Auto, Life, Renter's, Flood and Valuable Items
  • Partners with major insurance companies including Chubb, Kemper Unitrin, The Hartford, Progressive,
    Encompass, Travelers, Fireman's Fund, Middleoak Mutual, One Beacon and American Reliable

11000 Carrara CT, Bonita Springs, FL, 34135

$769,000

Julie Mans

Luxury Properties Specialist

William Raveis Real Estate

Phone: 239.317.5051

Julie.Mans@raveis.com

Melissa Cohn

RVP, Mortgage Banker

William Raveis Mortgage, LLC

Phone: 917.838.7300

Melissa.Cohn@raveis.com

NMLS Mortgage Loan Originator ID 16953

5/6 (30 Yr)
Adjustable Rate Conforming*
30 Year
Fixed-Rate Conforming
15 Year
Fixed-Rate Conforming
Loan Amount $615,200 $615,200 $615,200
Term 360 months 360 months 180 months
Initial Interest Rate** 5.625% 5.990% 5.250%
Interest Rate based on Index + Margin 8.125%
Annual Percentage Rate 6.258% 6.168% 5.561%
Monthly Tax Payment $882 $882 $882
H/O Insurance Payment $92 $92 $92
Initial Principal & Interest Pmt $3,541 $3,684 $4,945
Total Monthly Payment $4,515 $4,658 $5,919

* The Initial Interest Rate and Initial Principal & Interest Payment are fixed for the first and adjust every six months thereafter for the remainder of the loan term. The Interest Rate and annual percentage rate may increase after consummation. The Index for this product is the SOFR. The margin for this adjustable rate mortgage may vary with your unique credit history, and terms of your loan.

** Mortgage Rates are subject to change, loan amount and product restrictions and may not be available for your specific transaction at commitment or closing. Rates, and the margin for adjustable rate mortgages [if applicable], are subject to change without prior notice.

The rates and Annual Percentage Rate (APR) cited above may be only samples for the purpose of calculating payments and are based upon the following assumptions: minimum credit score of 740, 20% down payment (e.g. $20,000 down on a $100,000 purchase price), $1,950 in finance charges, and 30 days prepaid interest, 1 point, 30 day rate lock. The rates and APR will vary depending upon your unique credit history and the terms of your loan, e.g. the actual down payment percentages, points and fees for your transaction. Property taxes and homeowner's insurance are estimates and subject to change.  The Total Monthly Payment does not include the estimated HOA/Common Charge payment.