36 Cross Patch Road, Woodstock (Willow), NY, 12495 | $625,000

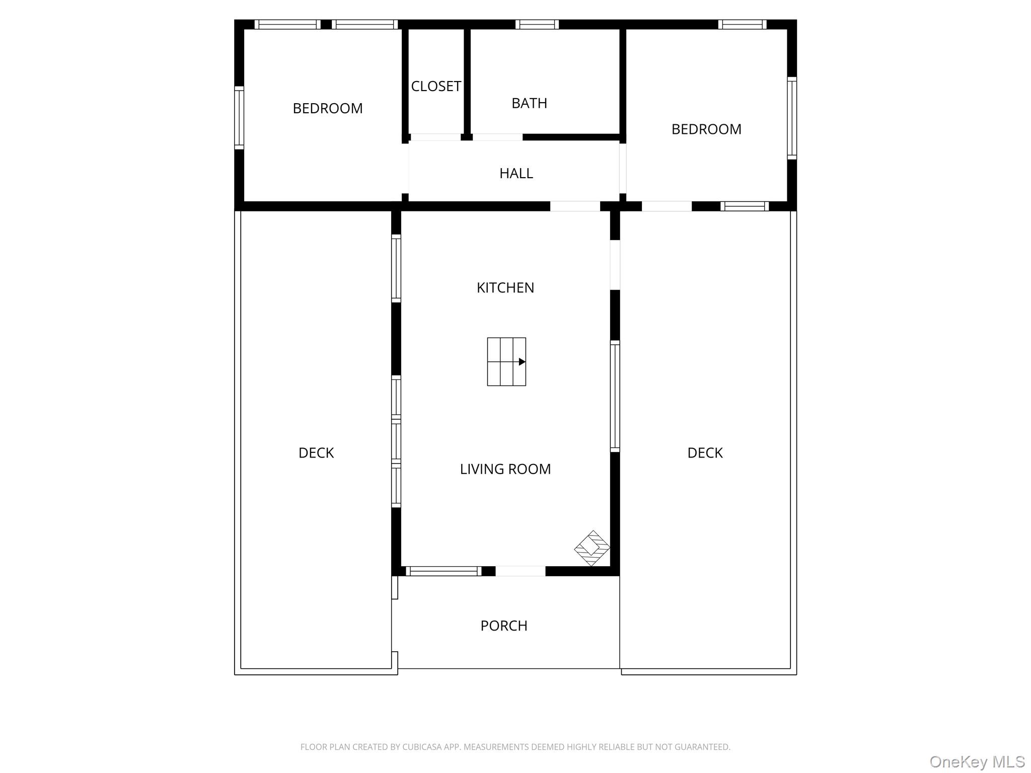
This sale includes not only the fully restored Cross Patch Cabin but also a separate nearly two-acre stream-front buildable lot combined with over 400 feet of frontage - an opportunity rarely found at this price point. Together, the two wooded parcels total almost four acres and offer privacy, flexibility, and investment potential: keep the existing cabin as your hideaway and build a second home on the adjoining lot, or use it for future expansion. Deep in the quiet woods of Willow, where trout streams wind and songbirds keep watch, sits a hand-built home that feels lifted from a storybook. Originally constructed in 1977 and fully restored with additions in 2020, Cross Patch Cabin blends rustic character with modern comforts. The cottage has been reimagined with intention: a wraparound porch that frames the forest, a warm living area with a wood-burning stove, and two bedrooms with a new full bath. The lower level provides storage and laundry, while modern infrastructure including all new artesian well, septic, insulation, roof, all-new plumbing and electric, on-demand hot water, and a full-house generator ensures effortless living. Outdoors, an open-air shower, fenced yard, and seasonal mountain views complement the wooded setting. Just minutes from Woodstock’s center and Catskills trailheads, Cross Patch Cabin offers quiet privacy with modern convenience ideal as a full-time residence or weekend retreat.

Features

  • Town: Woodstock
  • Rooms: 5
  • Bedrooms: 2
  • Baths: 1 full
  • Laundry: In Basement, Laundry Room
  • Style: Cabin
  • Year Built: 1977
  • Heating: Baseboard, Steam, Wood
  • Cooling: None
  • Basement: Partial, Storage Space, Walk-Out Access
  • Approx Sq. Feet: 602
  • Acreage: 3.86
  • Est. Taxes: $6,159
  • Lot Desc: Back Yard, Front Yard, Level, Private, Waterfront, Wooded
  • View: Trees/Woods
  • Water Front: Yes
  • Elem. School: Woodstock Elementary School
  • Middle School: Onteora Middle School
  • High School: Onteora High School
  • School District: Onteora
  • Appliances: Dryer, Gas Range, Refrigerator, Washer
  • MLS#: 917797
  • Days on Market: 58 days
  • Website: https://www.raveis.com
    /prop/917797/36crosspatchroad_woodstock_ny?source=qrflyer
Listing information has been assembled from various sources of varying degrees of reliability. Any information critical to the buying decision should be independently verified.

William Raveis Family of Services

Our family of companies partner in delivering quality services in a one-stop-shopping environment. Together, we integrate the most comprehensive real estate, mortgage and insurance services available to fulfill your specific real estate needs.

Collin SullivanLuxury Properties Specialist

617.529.6622

Collin.Sullivan@raveis.com

Our family of companies offer our clients a new level of full-service real estate. We shall:

  • Market your home to realize a quick sale at the best possible price
  • Place up to 20+ photos of your home on our website, raveis.com
  • Provide frequent communication and tracking reports showing the Internet views your home received on raveis.com
  • Showcase your home on raveis.com with a larger and more prominent format
  • Give you the full resources and strength of William Raveis Real Estate, Mortgage & Insurance and our cutting-edge technology

To learn more about our credentials, visit raveis.com today.

Kate RockettRVP, Mortgage Banker, William Raveis Mortgage, LLC

NMLS Mortgage Loan Originator ID 1500191

617.281.4872

Kate.Rockett@raveis.com

Our Executive Mortgage Banker:

  • Is available to meet with you in our office, your home or office, evenings or weekends
  • Offers you pre-approval in minutes!
  • Provides a guaranteed closing date that meets your needs
  • Has access to hundreds of loan programs, all at competitive rates
  • Is in constant contact with a full processing, underwriting, and closing staff to ensure an efficient transaction

Joel FanjoyRegional SVP Insurance Sales, William Raveis Insurance

617.320.5687

Joel.Fanjoy@raveis.com

Our Insurance Division:

  • Will Provide a home insurance quote within 24 hours
  • Offers full-service coverage such as Homeowner's, Auto, Life, Renter's, Flood and Valuable Items
  • Partners with major insurance companies including Chubb, Kemper Unitrin, The Hartford, Progressive,
    Encompass, Travelers, Fireman's Fund, Middleoak Mutual, One Beacon and American Reliable

36 Cross Patch Road, Woodstock (Willow), NY, 12495

$625,000

Collin Sullivan

Luxury Properties Specialist

William Raveis Real Estate

Phone: 617.529.6622

Collin.Sullivan@raveis.com

Kate Rockett

RVP, Mortgage Banker

William Raveis Mortgage, LLC

Phone: 617.281.4872

Kate.Rockett@raveis.com

NMLS Mortgage Loan Originator ID 1500191

5/6 (30 Yr)
Adjustable Rate Conforming*
30 Year
Fixed-Rate Conforming
15 Year
Fixed-Rate Conforming
Loan Amount $500,000 $500,000 $500,000
Term 360 months 360 months 180 months
Initial Interest Rate** 5.500% 5.990% 5.250%
Interest Rate based on Index + Margin 8.125%
Annual Percentage Rate 6.209% 6.168% 5.541%
Monthly Tax Payment $513 $513 $513
H/O Insurance Payment $92 $92 $92
Initial Principal & Interest Pmt $2,839 $2,995 $4,019
Total Monthly Payment $3,444 $3,600 $4,624

* The Initial Interest Rate and Initial Principal & Interest Payment are fixed for the first and adjust every six months thereafter for the remainder of the loan term. The Interest Rate and annual percentage rate may increase after consummation. The Index for this product is the SOFR. The margin for this adjustable rate mortgage may vary with your unique credit history, and terms of your loan.

** Mortgage Rates are subject to change, loan amount and product restrictions and may not be available for your specific transaction at commitment or closing. Rates, and the margin for adjustable rate mortgages [if applicable], are subject to change without prior notice.

The rates and Annual Percentage Rate (APR) cited above may be only samples for the purpose of calculating payments and are based upon the following assumptions: minimum credit score of 740, 20% down payment (e.g. $20,000 down on a $100,000 purchase price), $1,950 in finance charges, and 30 days prepaid interest, 1 point, 30 day rate lock. The rates and APR will vary depending upon your unique credit history and the terms of your loan, e.g. the actual down payment percentages, points and fees for your transaction. Property taxes and homeowner's insurance are estimates and subject to change.