4 Deer Run Trail, Fort Montgomery, NY, 10922 | $925,000

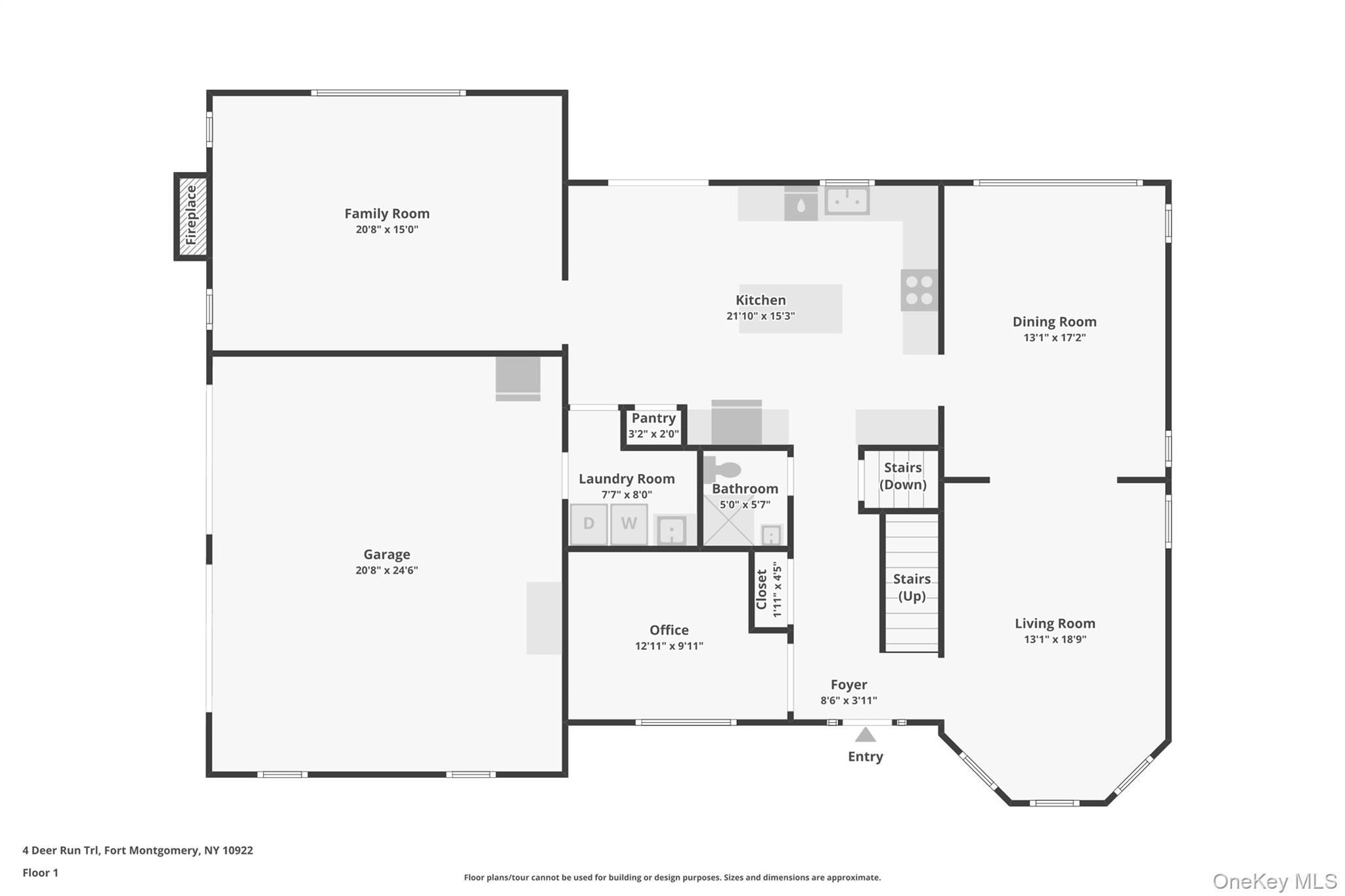
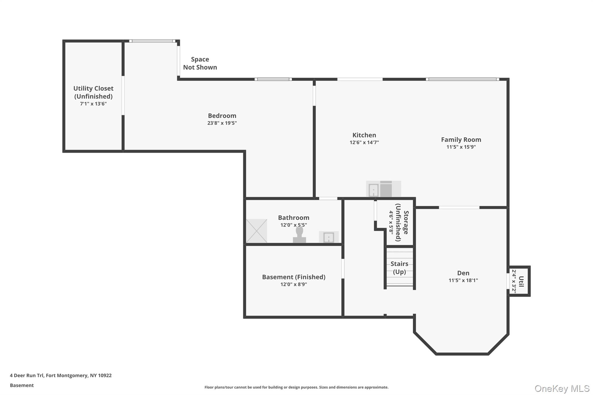
Welcome to 4 Deer Run Trail, a meticulously maintained home located in the scenic hills of Fort Montgomery, offering space, comfort, and stunning mountain views. This expansive residence features 4 bedrooms, 4 full bathrooms, a dedicated home office, and an additional recreation room. With a full finished basement that includes a kitchenette, full bathroom, space for a bedroom, and a private entrance, the home offers excellent mother-daughter flexibility and income potential, as it is currently rented as a successful Airbnb. The main level showcases elegant crown molding and an abundance of natural light. The spacious eat-in kitchen features ample cabinetry and flows into a formal dining room, perfect for gatherings and entertaining. Just off the kitchen, a large deck with a retractable awning offers a great space for outdoor dining or relaxing while enjoying the peaceful surroundings. The inviting family room centered around a gas fireplace with vaulted ceilings creates a warm and welcoming atmosphere. Upstairs, the primary suite serves as a luxurious retreat, complete with tray ceilings, its own gas fireplace, and a spa-inspired ensuite featuring double sinks, a walk-in shower, and a jet tub. A walk-in closet in the primary suite and ample closet space throughout the home adds to its functionality. The home is also equipped with a central vacuum system and a 10 zone sprinkler system for added convenience and ease of maintenance. Ideally located within 5 miles of the prestigious West Point Military Academy, granting walking privileges. This home is also just 10 minutes from the Garrison Train Station, 5 minutes to the Westchester border, and 45 minutes to the George Washington Bridge, offering both tranquility and commuter convenience. Whether you’re looking for a full-time residence, a multi-generational setup, or a property with rental income potential, this home checks every box.

Features

  • Rooms: 13
  • Bedrooms: 4
  • Baths: 4 full
  • Laundry: In Hall, Inside
  • Style: Colonial
  • Year Built: 2003
  • Garage: 2-car
  • Heating: Baseboard, Oil
  • Cooling: Central Air, Wall/Window Unit(s)
  • Basement: Finished, Full, Walk-Out Access
  • Approx Sq. Feet: 4,573
  • Acreage: 0.69
  • Est. Taxes: $18,000
  • Lot Desc: Back Yard, Cul-De-Sac, Views
  • View: Mountain(s), River
  • Elem. School: Fort Montgomery Elementary School
  • Middle School: Highland Falls Intermediate School
  • High School: James I O'Neill High School
  • School District: Highland Falls
  • Appliances: Dishwasher, Dryer, Electric Range, Microwave, Oven, Refrigerator, Stainless Steel Appliance(s), Washer, Solar Hot Water
  • MLS#: 886898
  • Days on Market: 92 days
  • Website: https://www.raveis.com
    /prop/886898/4deerruntrail_fortmontgomery_ny?source=qrflyer
Listing information has been assembled from various sources of varying degrees of reliability. Any information critical to the buying decision should be independently verified.Listing courtesy of Howard Hanna Rand Realty   Phone: 845-928-9691

William Raveis Family of Services

Our family of companies partner in delivering quality services in a one-stop-shopping environment. Together, we integrate the most comprehensive real estate, mortgage and insurance services available to fulfill your specific real estate needs.

Customer Service

888.699.8876

Contact@raveis.com

Our family of companies offer our clients a new level of full-service real estate. We shall:

  • Market your home to realize a quick sale at the best possible price
  • Place up to 20+ photos of your home on our website, raveis.com
  • Provide frequent communication and tracking reports showing the Internet views your home received on raveis.com
  • Showcase your home on raveis.com with a larger and more prominent format
  • Give you the full resources and strength of William Raveis Real Estate, Mortgage & Insurance and our cutting-edge technology

To learn more about our credentials, visit raveis.com today.

Sarah DeFlorioVP, Mortgage Banker, William Raveis Mortgage, LLC

NMLS Mortgage Loan Originator ID 1880936

347.223.0992

Sarah.DeFlorio@Raveis.com

Our Executive Mortgage Banker:

  • Is available to meet with you in our office, your home or office, evenings or weekends
  • Offers you pre-approval in minutes!
  • Provides a guaranteed closing date that meets your needs
  • Has access to hundreds of loan programs, all at competitive rates
  • Is in constant contact with a full processing, underwriting, and closing staff to ensure an efficient transaction

Ryan FortierInsurance Sales Director, William Raveis Insurance

516.739.7731

Ryan.Fortier@raveis.com

Our Insurance Division:

  • Will Provide a home insurance quote within 24 hours
  • Offers full-service coverage such as Homeowner's, Auto, Life, Renter's, Flood and Valuable Items
  • Partners with major insurance companies including Chubb, Kemper Unitrin, The Hartford, Progressive,
    Encompass, Travelers, Fireman's Fund, Middleoak Mutual, One Beacon and American Reliable

4 Deer Run Trail, Fort Montgomery, NY, 10922

$925,000

Customer Service

William Raveis Real Estate

Phone: 888.699.8876

Contact@raveis.com

Sarah DeFlorio

VP, Mortgage Banker

William Raveis Mortgage, LLC

Phone: 347.223.0992

Sarah.DeFlorio@Raveis.com

NMLS Mortgage Loan Originator ID 1880936

5/6 (30 Yr)
Adjustable Rate Jumbo*
30 Year
Fixed-Rate Jumbo
15 Year
Fixed-Rate Jumbo
Loan Amount $740,000 $740,000 $740,000
Term 360 months 360 months 180 months
Initial Interest Rate** 5.125% 6.000% 5.750%
Interest Rate based on Index + Margin 8.125%
Annual Percentage Rate 6.246% 6.110% 5.932%
Monthly Tax Payment $1,500 $1,500 $1,500
H/O Insurance Payment $92 $92 $92
Initial Principal & Interest Pmt $4,029 $4,437 $6,145
Total Monthly Payment $5,621 $6,029 $7,737

* The Initial Interest Rate and Initial Principal & Interest Payment are fixed for the first and adjust every six months thereafter for the remainder of the loan term. The Interest Rate and annual percentage rate may increase after consummation. The Index for this product is the SOFR. The margin for this adjustable rate mortgage may vary with your unique credit history, and terms of your loan.

** Mortgage Rates are subject to change, loan amount and product restrictions and may not be available for your specific transaction at commitment or closing. Rates, and the margin for adjustable rate mortgages [if applicable], are subject to change without prior notice.

The rates and Annual Percentage Rate (APR) cited above may be only samples for the purpose of calculating payments and are based upon the following assumptions: minimum credit score of 740, 20% down payment (e.g. $20,000 down on a $100,000 purchase price), $1,950 in finance charges, and 30 days prepaid interest, 1 point, 30 day rate lock. The rates and APR will vary depending upon your unique credit history and the terms of your loan, e.g. the actual down payment percentages, points and fees for your transaction. Property taxes and homeowner's insurance are estimates and subject to change.