2 Sunset Drive, Head Of Harbor, NY, 11780 | $20,000

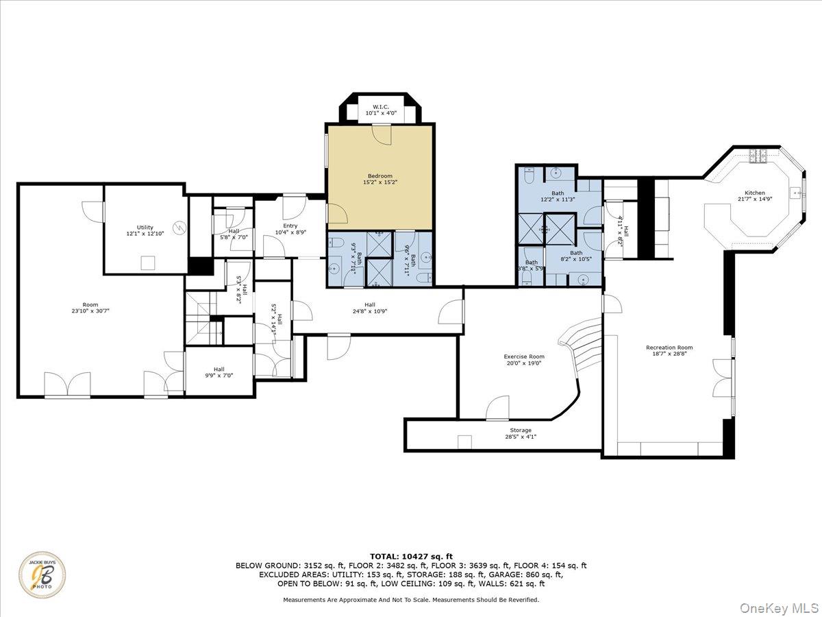
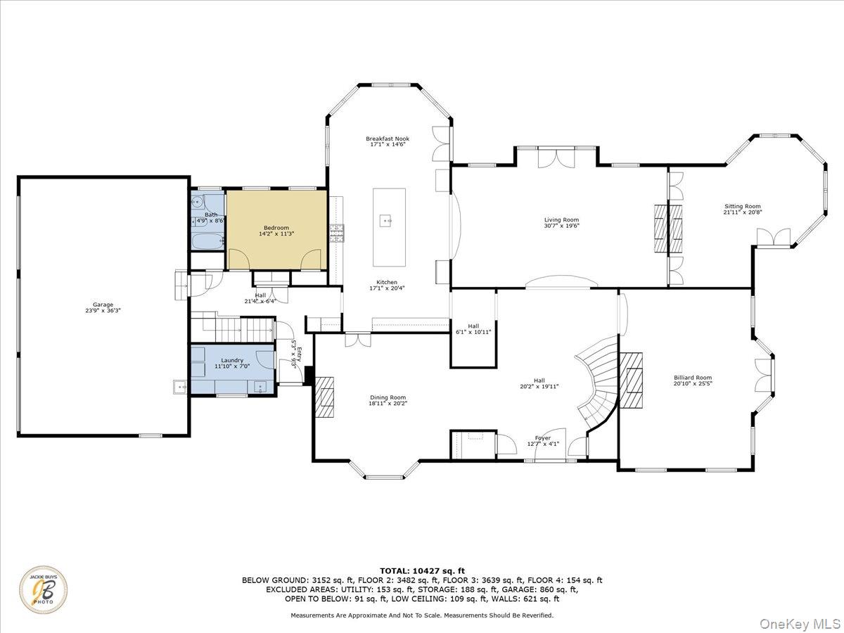
Welcome to 2 Sunset Lane – a stunning 6-bedroom, 10-bath estate set on 3. 9 beautifully landscaped acres, complete with a private tennis court and herb garden. Main Floor - Step into a grand foyer featuring a sweeping staircase and chandelier. The main level offers a formal dining room, a spacious open kitchen with breakfast nook, large island, and top-of-the-line Wolf range with double ovens—perfect for hosting and entertaining. The formal living room showcases oversized windows that flood the space with natural light and a double-sided gas fireplace shared with the adjoining poker room. For additional leisure, a billiard room with a dramatic stone fireplace and balcony overlooks water views. This floor also includes a bedroom with ensuite bath, laundry room with sink, and a half bath. Second Floor - The primary suite is a true retreat, complete with a private balcony, his-and-hers walk-in closets, and a spa-like ensuite bath featuring a soaking tub, double sinks, radiant heated floors, and separate shower. An office space and spiral staircase lead to an observation tower with sweeping harbor views. Three additional bedrooms each offer ensuite baths, walk-in closets, and private balconies. This floor also includes a children’s playroom and a second laundry room for convenience. Lower Level - The fully finished basement is designed for entertainment and relaxation. The “Tennis Lounge” welcomes guests after a match, with dual locker-room style baths, a full kitchen, and a large lounge area with flat-screen TV. This level also features an additional bedroom with ensuite bath, a half bath, and a large storage room. Outdoor Living & Amenities - Enjoy ultimate privacy with 24-hour gated security and guard house. Whether unwinding on the balconies, hosting in the gardens, or playing tennis, this home offers both luxury and comfort in every detail. Don’t miss the opportunity to live in this private, resort-style residence—perfect for anyone seeking space, luxury, and the good life.

Features

  • Type: Single Family
  • Rooms: 22
  • Bedrooms: 6
  • Baths: 9 full / 1 half
  • Laundry: In Unit, Laundry Room, Multiple Locations
  • Style: Colonial
  • Year Built: 2006
  • Garage: 3-car
  • Heating: Natural Gas, Radiant Floor
  • Cooling: Central Air
  • Basement: Finished
  • Approx Sq. Feet: 6,500
  • Acreage: 3.9
  • Lot Desc: Back Yard, Private, Secluded, Sprinklers In Front, Sprinklers In Rear, Views
  • View: Water
  • Elem. School: Setauket Elementary School
  • Middle School: Paul J Gelinas Junior High School
  • High School: Ward Melville Senior High School
  • School District: Three Village
  • Pet Policy: Call
  • Appliances: Dishwasher, Dryer, Exhaust Fan, Freezer, Gas Oven, Gas Range, Microwave, Refrigerator, Stainless Steel Appliance(s), Washer, Gas Water Heater, Wine Refrigerator
  • Lease Term Type: 12 Months
  • MLS#: 902186
  • Days on Market: 1 day
  • Website: https://www.raveis.com
    /prop/902186/2sunsetdrive_headofharbor_ny?source=qrflyer
Listing information has been assembled from various sources of varying degrees of reliability. Any information critical to the buying decision should be independently verified.Listing courtesy of Long Island Homes & Horse Prop   Phone: 631-979-2965

William Raveis Family of Services

Our family of companies partner in delivering quality services in a one-stop-shopping environment. Together, we integrate the most comprehensive real estate, mortgage and insurance services available to fulfill your specific real estate needs.

Customer Service

888.699.8876

Contact@raveis.com

Our family of companies offer our clients a new level of full-service real estate. We shall:

  • Market your home to realize a quick sale at the best possible price
  • Place up to 20+ photos of your home on our website, raveis.com
  • Provide frequent communication and tracking reports showing the Internet views your home received on raveis.com
  • Showcase your home on raveis.com with a larger and more prominent format
  • Give you the full resources and strength of William Raveis Real Estate, Mortgage & Insurance and our cutting-edge technology

To learn more about our credentials, visit raveis.com today.

Frank KolbSenior Vice President - Coaching & Strategic, William Raveis Mortgage, LLC

NMLS Mortgage Loan Originator ID 81725

203.980.8025

Frank.Kolb@raveis.com

Our Executive Mortgage Banker:

  • Is available to meet with you in our office, your home or office, evenings or weekends
  • Offers you pre-approval in minutes!
  • Provides a guaranteed closing date that meets your needs
  • Has access to hundreds of loan programs, all at competitive rates
  • Is in constant contact with a full processing, underwriting, and closing staff to ensure an efficient transaction

Ryan FortierInsurance Sales Director, William Raveis Insurance

516.739.7731

Ryan.Fortier@raveis.com

Our Insurance Division:

  • Will Provide a home insurance quote within 24 hours
  • Offers full-service coverage such as Homeowner's, Auto, Life, Renter's, Flood and Valuable Items
  • Partners with major insurance companies including Chubb, Kemper Unitrin, The Hartford, Progressive,
    Encompass, Travelers, Fireman's Fund, Middleoak Mutual, One Beacon and American Reliable

2 Sunset Drive, Head Of Harbor, NY, 11780

$20,000

Customer Service

William Raveis Real Estate

Phone: 888.699.8876

Contact@raveis.com

Frank Kolb

Senior Vice President - Coaching & Strategic

William Raveis Mortgage, LLC

Phone: 203.980.8025

Frank.Kolb@raveis.com

NMLS Mortgage Loan Originator ID 81725

5/6 (30 Yr)
Adjustable Rate Conforming*
30 Year
Fixed-Rate Conforming
15 Year
Fixed-Rate Conforming
Loan Amount $16,000 $16,000 $16,000
Term 360 months 360 months 180 months
Initial Interest Rate** 5.500% 5.990% 5.125%
Interest Rate based on Index + Margin 8.125%
Annual Percentage Rate 6.285% 6.132% 5.415%
Monthly Tax Payment N/A N/A N/A
H/O Insurance Payment $75 $75 $75
Initial Principal & Interest Pmt $91 $96 $128
Total Monthly Payment $166 $171 $203

* The Initial Interest Rate and Initial Principal & Interest Payment are fixed for the first and adjust every six months thereafter for the remainder of the loan term. The Interest Rate and annual percentage rate may increase after consummation. The Index for this product is the SOFR. The margin for this adjustable rate mortgage may vary with your unique credit history, and terms of your loan.

** Mortgage Rates are subject to change, loan amount and product restrictions and may not be available for your specific transaction at commitment or closing. Rates, and the margin for adjustable rate mortgages [if applicable], are subject to change without prior notice.

The rates and Annual Percentage Rate (APR) cited above may be only samples for the purpose of calculating payments and are based upon the following assumptions: minimum credit score of 740, 20% down payment (e.g. $20,000 down on a $100,000 purchase price), $1,950 in finance charges, and 30 days prepaid interest, 1 point, 30 day rate lock. The rates and APR will vary depending upon your unique credit history and the terms of your loan, e.g. the actual down payment percentages, points and fees for your transaction. Property taxes and homeowner's insurance are estimates and subject to change.