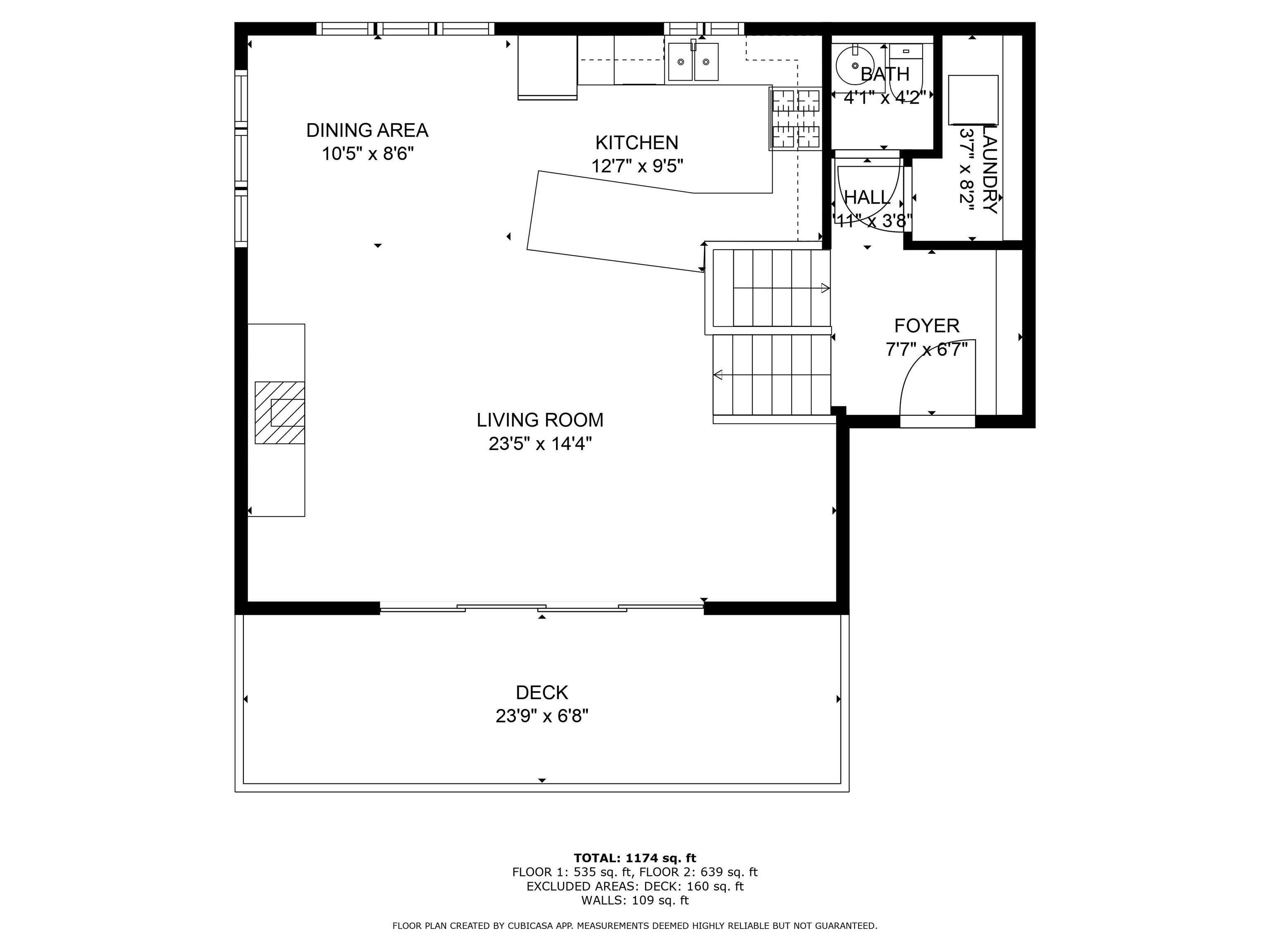
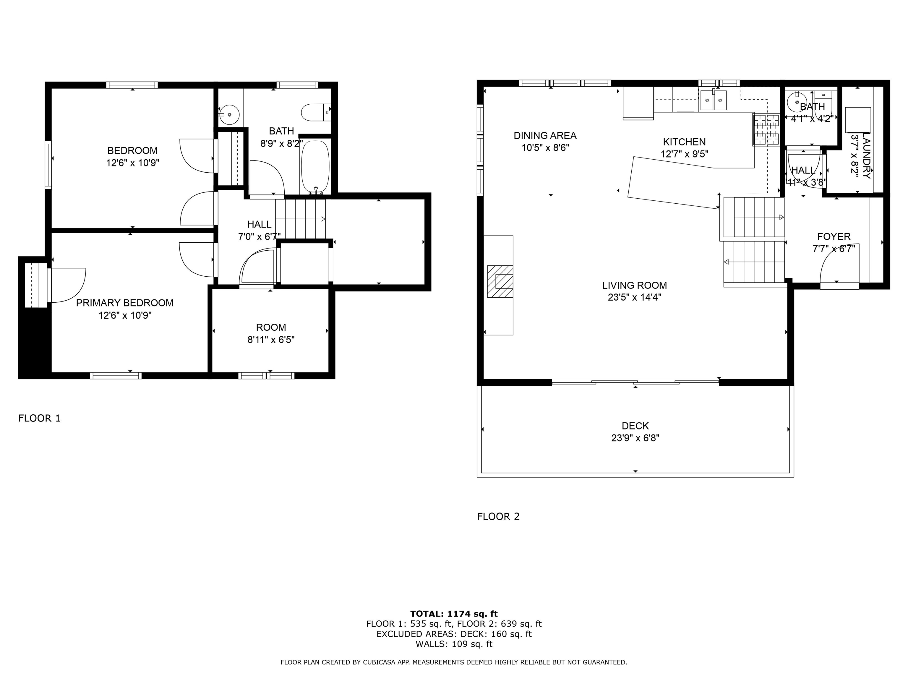
25 Linderhof Strauss Road, Bartlett, NH, 03812 | $475,000

Linderhof Chalet is the perfect four-season retreat! This charming 3 bedroom, 1. 5 bath chalet features a spacious open concept living area, ideal for gathering with family and friends. Cozy up by the wood stove on snowy winter evenings or step out onto the deck to take in some fresh air year round. Recent upgrades include a new roof, leach field, and water heater, giving you peace for years to come. Perfectly situated, the chalet is just a stone's throw from Story Land and minutes to Jackson Village, Glen and top ski destinations like Attitash, Black Mountain, Wildcat and Jackson Ski Touring. Offered fully furnished and move in ready, this home invites you to enjoy the best of the Mount Washington Vally lifestyle whether as a vacation getaway, investment property, or full time residence.

Features

  • Rooms: 6
  • Bedrooms: 3
  • Baths: 1 full / 1 half
  • Style: Chalet
  • Year Built: 1982
  • Heating: Propane,Wood,Electric,Monitor Type
  • Cooling: None
  • Basement: Finished,Full
  • Approx Sq. Feet: 1,288
  • Acreage: 0.5
  • Est. Taxes: $2,127
  • Lot Desc: Sloping,View,Wooded,Mountain,Near Shopping,Near Skiing
  • Elem. School: Josiah Bartlett Elem
  • Middle School: Josiah Bartlett School
  • High School: A. Crosby Kennett Sr. High
  • MLS#: 5059737
  • Website: https://www.raveis.com
    /prop/5059737/25linderhofstraussroad_bartlett_nh?source=qrflyer
©2025 New England Real Estate Network, Inc. All rights reserved.This information is deemed reliable, but not guaranteed. The data relating to real estate displayed on this Site comes in part from the IDX Program of PrimMLS. The information being provided is for consumers' personal, non-commercial use and may not be used for any purpose other than to identify prospective properties consumers may be interested in purchasing. Data last updated 12/7/2025
Listing courtesy of Badger Peabody & Smith Realty   Phone: 603-356-5757
Listing Agent: Ralph Cronin

William Raveis Family of Services

Our family of companies partner in delivering quality services in a one-stop-shopping environment. Together, we integrate the most comprehensive real estate, mortgage and insurance services available to fulfill your specific real estate needs.

Customer Service

888.699.8876

Contact@raveis.com

Our family of companies offer our clients a new level of full-service real estate. We shall:

  • Market your home to realize a quick sale at the best possible price
  • Place up to 20+ photos of your home on our website, raveis.com
  • Provide frequent communication and tracking reports showing the Internet views your home received on raveis.com
  • Showcase your home on raveis.com with a larger and more prominent format
  • Give you the full resources and strength of William Raveis Real Estate, Mortgage & Insurance and our cutting-edge technology

To learn more about our credentials, visit raveis.com today.

Joel FanjoyRegional SVP Insurance Sales, William Raveis Insurance

617.320.5687

Joel.Fanjoy@raveis.com

Our Insurance Division:

  • Will Provide a home insurance quote within 24 hours
  • Offers full-service coverage such as Homeowner's, Auto, Life, Renter's, Flood and Valuable Items
  • Partners with major insurance companies including Chubb, Kemper Unitrin, The Hartford, Progressive,
    Encompass, Travelers, Fireman's Fund, Middleoak Mutual, One Beacon and American Reliable

25 Linderhof Strauss Road, Bartlett, NH, 03812

$475,000

Customer Service

William Raveis Real Estate

Phone: 888.699.8876

Contact@raveis.com

5/6 (30 Yr)
Adjustable Rate Conforming*
30 Year
Fixed-Rate Conforming
15 Year
Fixed-Rate Conforming
Loan Amount $380,000 $380,000 $380,000
Term 360 months 360 months 180 months
Initial Interest Rate** 5.750% 6.125% 5.375%
Interest Rate based on Index + Margin 8.125%
Annual Percentage Rate 6.521% 6.304% 5.648%
Monthly Tax Payment $177 $177 $177
H/O Insurance Payment $75 $75 $75
Initial Principal & Interest Pmt $2,218 $2,309 $3,080
Total Monthly Payment $2,470 $2,561 $3,332

* The Initial Interest Rate and Initial Principal & Interest Payment are fixed for the first and adjust every six months thereafter for the remainder of the loan term. The Interest Rate and annual percentage rate may increase after consummation. The Index for this product is the SOFR. The margin for this adjustable rate mortgage may vary with your unique credit history, and terms of your loan.

** Mortgage Rates are subject to change, loan amount and product restrictions and may not be available for your specific transaction at commitment or closing. Rates, and the margin for adjustable rate mortgages [if applicable], are subject to change without prior notice.

The rates and Annual Percentage Rate (APR) cited above may be only samples for the purpose of calculating payments and are based upon the following assumptions: minimum credit score of 740, 20% down payment (e.g. $20,000 down on a $100,000 purchase price), $1,950 in finance charges, and 30 days prepaid interest, 1 point, 30 day rate lock. The rates and APR will vary depending upon your unique credit history and the terms of your loan, e.g. the actual down payment percentages, points and fees for your transaction. Property taxes and homeowner's insurance are estimates and subject to change.