200 Route 9A, Ossining, NY, 10562 | $1,099,000

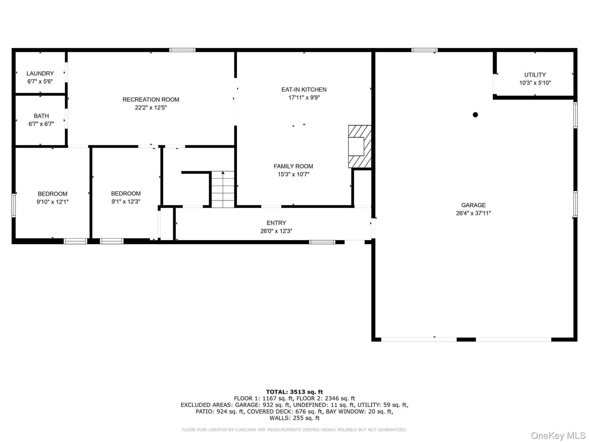
Exceptional residence featuring a fully legal accessory apartment, offering rare flexibility for multigenerational living, extended family, guests, or private professional space. The thoughtfully designed additional living area includes its own entrance, kitchen, bath, and living quarters, creating a comfortable and private environment while maintaining the character of a single-family home. Approximately 900 sq ft of finished lower-level space enhances the home’s functionality beyond the main living area reported in municipal records. Tucked away at the end of a semi-private road in a peaceful neighborhood, this property combines privacy, versatility, and elegant design. The main residence features 3 bedrooms, hardwood floors throughout the living areas, spacious living and dining rooms, and a dramatic vaulted fireplace that serves as a warm and inviting centerpiece. The chef’s kitchen boasts a Wolf range with built-in grille, double oven, and Sub-Zero freezer—ideal for both everyday living and entertaining. Step outside to the expansive Ipe Brazilian walnut deck with a large overhead awning for seasonal indoor/outdoor comfort. The resort-style backyard is a private oasis with a heated pool, Caldera spa, and lush landscaping—perfect for relaxing or entertaining. A 3-car garage with a workshop area provides ample space for vehicles, storage, and hobbies. Central air conditioning ensures year-round comfort. Located just 5 minutes from the Croton-Harmon Metro-North Station with a 40-minute express ride to NYC, this home offers the ideal balance of luxury, convenience, and tranquility in one of Ossining’s most desirable hidden neighborhoods.

Features

  • Rooms: 10
  • Bedrooms: 5
  • Baths: 3 full / 1 half
  • Laundry: Laundry Room, Multiple Locations
  • Style: Ranch
  • Year Built: 1992
  • Garage: 3-car
  • Heating: Hot Water, Oil
  • Cooling: Central Air
  • Basement: Finished
  • Approx Sq. Feet: 2,520
  • Acreage: 0.88
  • Est. Taxes: $20,976
  • Elem. School: Brookside
  • Middle School: Anne M Dorner Middle School
  • High School: Ossining High School
  • School District: Ossining
  • Pool: Outdoor Pool
  • Appliances: Dishwasher, Dryer, Oven, Range, Refrigerator, Washer
  • MLS#: 906409
  • Days on Market: 173 days
  • Website: https://www.raveis.com
    /eprop/906409/200route9a_ossining_ny?source=qrflyer
Listing information has been assembled from various sources of varying degrees of reliability. Any information critical to the buying decision should be independently verified.

William Raveis Family of Services

Our family of companies partner in delivering quality services in a one-stop-shopping environment. Together, we integrate the most comprehensive real estate, mortgage and insurance services available to fulfill your specific real estate needs.

Agota Perry HillSales Associate

505.463.2036

Agota.PerryHill@raveis.com

Our family of companies offer our clients a new level of full-service real estate. We shall:

  • Market your home to realize a quick sale at the best possible price
  • Place up to 20+ photos of your home on our website, raveis.com
  • Provide frequent communication and tracking reports showing the Internet views your home received on raveis.com
  • Showcase your home on raveis.com with a larger and more prominent format
  • Give you the full resources and strength of William Raveis Real Estate, Mortgage & Insurance and our cutting-edge technology

To learn more about our credentials, visit raveis.com today.

Kevin DeTullioVP, Mortgage Banker / Production Manager, William Raveis Mortgage, LLC

NMLS Mortgage Loan Originator ID 1724767

203.305.5736

Kevin.DeTullio@Raveis.com

Our Executive Mortgage Banker:

  • Is available to meet with you in our office, your home or office, evenings or weekends
  • Offers you pre-approval in minutes!
  • Provides a guaranteed closing date that meets your needs
  • Has access to hundreds of loan programs, all at competitive rates
  • Is in constant contact with a full processing, underwriting, and closing staff to ensure an efficient transaction

Brian SkellyVP, Mortgage Banker, William Raveis Mortgage, LLC

NMLS Mortgage Loan Originator ID 793093

203.415.2989

Brian.Skelly@raveis.com

Our Executive Mortgage Banker:

  • Is available to meet with you in our office, your home or office, evenings or weekends
  • Offers you pre-approval in minutes!
  • Provides a guaranteed closing date that meets your needs
  • Has access to hundreds of loan programs, all at competitive rates
  • Is in constant contact with a full processing, underwriting, and closing staff to ensure an efficient transaction

Diane PadelliInsurance Sales Director, William Raveis Insurance

203.444.0494

Diane.Padelli@raveis.com

Our Insurance Division:

  • Will Provide a home insurance quote within 24 hours
  • Offers full-service coverage such as Homeowner's, Auto, Life, Renter's, Flood and Valuable Items
  • Partners with major insurance companies including Chubb, Kemper Unitrin, The Hartford, Progressive,
    Encompass, Travelers, Fireman's Fund, Middleoak Mutual, One Beacon and American Reliable

200 Route 9A, Ossining, NY, 10562

$1,099,000

Agota Perry Hill

Sales Associate

William Raveis Real Estate

Phone: 505.463.2036

Agota.PerryHill@raveis.com

Kevin DeTullio

VP, Mortgage Banker / Production Manager

William Raveis Mortgage, LLC

Phone: 203.305.5736

Kevin.DeTullio@Raveis.com

NMLS Mortgage Loan Originator ID 1724767

Brian Skelly

VP, Mortgage Banker

William Raveis Mortgage, LLC

Phone: 203.415.2989

Brian.Skelly@raveis.com

NMLS Mortgage Loan Originator ID 793093

5/6 (30 Yr)
Adjustable Rate Jumbo*
30 Year
Fixed-Rate Jumbo
15 Year
Fixed-Rate Jumbo
Loan Amount $879,200 $879,200 $879,200
Term 360 months 360 months 180 months
Initial Interest Rate** 5.250% 6.000% 5.750%
Interest Rate based on Index + Margin 8.125%
Annual Percentage Rate 6.069% 6.110% 5.932%
Monthly Tax Payment $1,748 $1,748 $1,748
H/O Insurance Payment $125 $125 $125
Initial Principal & Interest Pmt $4,855 $5,271 $7,301
Total Monthly Payment $6,728 $7,144 $9,174

* The Initial Interest Rate and Initial Principal & Interest Payment are fixed for the first and adjust every six months thereafter for the remainder of the loan term. The Interest Rate and annual percentage rate may increase after consummation. The Index for this product is the SOFR. The margin for this adjustable rate mortgage may vary with your unique credit history, and terms of your loan.

** Mortgage Rates are subject to change, loan amount and product restrictions and may not be available for your specific transaction at commitment or closing. Rates, and the margin for adjustable rate mortgages [if applicable], are subject to change without prior notice.

The rates and Annual Percentage Rate (APR) cited above may be only samples for the purpose of calculating payments and are based upon the following assumptions: minimum credit score of 740, 20% down payment (e.g. $20,000 down on a $100,000 purchase price), $1,950 in finance charges, and 30 days prepaid interest, 1 point, 30 day rate lock. The rates and APR will vary depending upon your unique credit history and the terms of your loan, e.g. the actual down payment percentages, points and fees for your transaction. Property taxes and homeowner's insurance are estimates and subject to change.