247 Central Park W, New York (New York (Manhattan)), NY, 10024 | $26,995,000

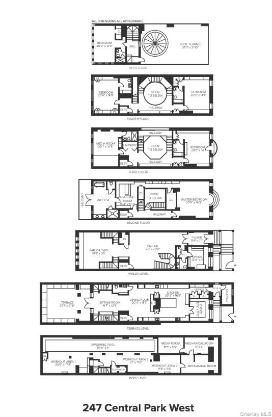
THE WILLIAM NOBLE HOUSE A Luxury Historic Landmark on Central Park West Directly overlooking Central Park, this architecturally significant residence is one of the last remaining single-family townhouses along Central Park West. Spanning over 12, 270 square feet across six levels and more than 22 feet in width, the home offers unobstructed, commanding views of the park from its elegant and symmetrical Queen Anne–style façade. Upon entry, a few steps lead to a grand foyer, followed by a luminous and expansive main living room. With soaring ceilings and remarkable volume, the space is crowned by a dramatic central light dome that floods every floor with natural light. Just below, a dining area and kitchen offer generous proportions for entertaining. A terrace on this level provides a tranquil outdoor retreat in the heart of the city. On the lower level, the residence features a nearly 60-foot indoor lap pool and a dedicated home fitness area, elevating the standard of in-home wellness amenities. A private elevator provides access to all levels, including the second floor, which hosts a spacious primary suite, a large dressing room, and a private bathroom with access to a second terrace. The third floor includes a tiered media room and an additional guest bedroom with generous proportions. The fourth floor offers two large bedrooms, both with en-suite bathrooms. The top floor features a bright and airy bedroom with wide windows offering open, unobstructed city views. A rooftop terrace crowns the property, providing panoramic vistas of Central Park. Ideally located in the heart of the Upper West Side, the property offers immediate access to Central Park, the American Museum of Natural History, and the shops, cafés, and restaurants of Columbus Avenue. With a rich history, 247 Central Park West has been home to numerous prominent figures, including celebrated artists, influential politicians, and notable families. While the interiors have evolved over time, the home’s original exterior remains remarkably preserved — a lasting testament to its architectural and historical significance. Designed in 1887 by renowned architect Edward Angell and commissioned by visionary developer William Noble (who selected the residence as his personal home), the property was completed in 1889 as part of a prestigious row of nine townhouses — of which only three remain today. This is a rare opportunity to acquire a true landmark townhouse in one of Manhattan’s most iconic and sought-after locations.

Features

  • Town: New York
  • Rooms: 11
  • Bedrooms: 5
  • Baths: 6 full / 2 half
  • Year Built: 1900
  • Heating: Other
  • Cooling: None
  • Approx Sq. Feet: 12,270
  • Acreage: 0.05
  • Est. Taxes: $82,120
  • Pool: Yes
  • Appliances: Other
  • MLS#: 903059
  • Days on Market: 15 days
  • Website: https://www.raveis.com
    /eprop/903059/247centralparkw_newyork_ny?source=qrflyer
Listing information has been assembled from various sources of varying degrees of reliability. Any information critical to the buying decision should be independently verified.Listing courtesy of Barnes New York   Phone: 646-559-2249

William Raveis Family of Services

Our family of companies partner in delivering quality services in a one-stop-shopping environment. Together, we integrate the most comprehensive real estate, mortgage and insurance services available to fulfill your specific real estate needs.

Customer Service

888.699.8876

Contact@raveis.com

Our family of companies offer our clients a new level of full-service real estate. We shall:

  • Market your home to realize a quick sale at the best possible price
  • Place up to 20+ photos of your home on our website, raveis.com
  • Provide frequent communication and tracking reports showing the Internet views your home received on raveis.com
  • Showcase your home on raveis.com with a larger and more prominent format
  • Give you the full resources and strength of William Raveis Real Estate, Mortgage & Insurance and our cutting-edge technology

To learn more about our credentials, visit raveis.com today.

Sarah DeFlorioVP, Mortgage Banker, William Raveis Mortgage, LLC

NMLS Mortgage Loan Originator ID 1880936

347.223.0992

Sarah.DeFlorio@Raveis.com

Our Executive Mortgage Banker:

  • Is available to meet with you in our office, your home or office, evenings or weekends
  • Offers you pre-approval in minutes!
  • Provides a guaranteed closing date that meets your needs
  • Has access to hundreds of loan programs, all at competitive rates
  • Is in constant contact with a full processing, underwriting, and closing staff to ensure an efficient transaction

Ryan FortierInsurance Sales Director, William Raveis Insurance

516.739.7731

Ryan.Fortier@raveis.com

Our Insurance Division:

  • Will Provide a home insurance quote within 24 hours
  • Offers full-service coverage such as Homeowner's, Auto, Life, Renter's, Flood and Valuable Items
  • Partners with major insurance companies including Chubb, Kemper Unitrin, The Hartford, Progressive,
    Encompass, Travelers, Fireman's Fund, Middleoak Mutual, One Beacon and American Reliable

247 Central Park W, New York (New York (Manhattan)), NY, 10024

$26,995,000

Customer Service

William Raveis Real Estate

Phone: 888.699.8876

Contact@raveis.com

Sarah DeFlorio

VP, Mortgage Banker

William Raveis Mortgage, LLC

Phone: 347.223.0992

Sarah.DeFlorio@Raveis.com

NMLS Mortgage Loan Originator ID 1880936

5/6 (30 Yr)
Adjustable Rate Jumbo*
30 Year
Fixed-Rate Jumbo
15 Year
Fixed-Rate Jumbo
Loan Amount $21,596,000 $21,596,000 $21,596,000
Term 360 months 360 months 180 months
Initial Interest Rate** 5.125% 6.000% 5.875%
Interest Rate based on Index + Margin 8.125%
Annual Percentage Rate 6.246% 6.133% 6.038%
Monthly Tax Payment $6,843 $6,843 $6,843
H/O Insurance Payment $125 $125 $125
Initial Principal & Interest Pmt $117,587 $129,479 $180,784
Total Monthly Payment $124,555 $136,447 $187,752

* The Initial Interest Rate and Initial Principal & Interest Payment are fixed for the first and adjust every six months thereafter for the remainder of the loan term. The Interest Rate and annual percentage rate may increase after consummation. The Index for this product is the SOFR. The margin for this adjustable rate mortgage may vary with your unique credit history, and terms of your loan.

** Mortgage Rates are subject to change, loan amount and product restrictions and may not be available for your specific transaction at commitment or closing. Rates, and the margin for adjustable rate mortgages [if applicable], are subject to change without prior notice.

The rates and Annual Percentage Rate (APR) cited above may be only samples for the purpose of calculating payments and are based upon the following assumptions: minimum credit score of 740, 20% down payment (e.g. $20,000 down on a $100,000 purchase price), $1,950 in finance charges, and 30 days prepaid interest, 1 point, 30 day rate lock. The rates and APR will vary depending upon your unique credit history and the terms of your loan, e.g. the actual down payment percentages, points and fees for your transaction. Property taxes and homeowner's insurance are estimates and subject to change.