40 Abbott, Saint Augustine, FL, 32084 | $650,000

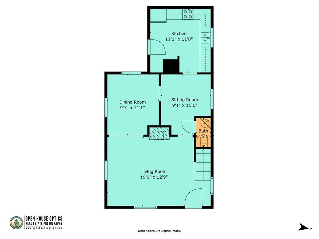
This historic victorian house gives you the unique opportunity to live in it, open a business in it, or both. CL2 zoning allows for many different options. The upper and lower porches face east toward the water which is 2 blocks away. There are both a detached garage and a carport for parking. Inside there are wood floors throughout. There is a non-working fireplace with a victorian mantel as the focal point in the living room. The kitchen has all stainless steel appliances, a laundry closet and built in pantry. Both the dining room and kitchen look out onto a bricked backyard. The upstairs hall runs the length of the house and gives access to the upper balcony. The current owner had plans drawn for an addition to the house and the plans are available to be looked at and will be given to the buyer upon request.

Features

  • Bedrooms: 2
  • Baths: 1 full / 1 half
  • Lot Size: 42 x 62
  • Year Built: 1885
  • Heating: Central,Electric
  • Approx Sq. Feet: 1,288
  • Lot Size: 42 x 62
  • Est. Taxes: $660
  • Lot Desc: City, Corner
  • MLS#: 254776
  • Days on Market: 278 days
  • Website: https://www.raveis.com
    /prop/254776/40abbott_saintaugustine_fl?source=qrflyer
This information is deemed reliable, but not guaranteed. The data relating to real estate displayed on this Site comes in part from the IDX Program of St Augustine & St. Johns County Board of REALTORS. The information being provided is for consumers' personal, non-commercial use and may not be used for any purpose other than to identify prospective properties consumers may be interested in purchasing.

William Raveis Family of Services

Our family of companies partner in delivering quality services in a one-stop-shopping environment. Together, we integrate the most comprehensive real estate, mortgage and insurance services available to fulfill your specific real estate needs.

Monte HendersonSales Associate

860.729.7874

Monte.Henderson@raveis.com

Our family of companies offer our clients a new level of full-service real estate. We shall:

  • Market your home to realize a quick sale at the best possible price
  • Place up to 20+ photos of your home on our website, raveis.com
  • Provide frequent communication and tracking reports showing the Internet views your home received on raveis.com
  • Showcase your home on raveis.com with a larger and more prominent format
  • Give you the full resources and strength of William Raveis Real Estate, Mortgage & Insurance and our cutting-edge technology

To learn more about our credentials, visit raveis.com today.

Russell BaboffVP, Mortgage Banker, William Raveis Mortgage, LLC

NMLS Mortgage Loan Originator ID 1014636

860.463.1745

Russell.Baboff@raveis.com

Our Executive Mortgage Banker:

  • Is available to meet with you in our office, your home or office, evenings or weekends
  • Offers you pre-approval in minutes!
  • Provides a guaranteed closing date that meets your needs
  • Has access to hundreds of loan programs, all at competitive rates
  • Is in constant contact with a full processing, underwriting, and closing staff to ensure an efficient transaction

John KirkutisVP, Mortgage Banker, William Raveis Mortgage, LLC

NMLS Mortgage Loan Originator ID 1424716

970.390.2521

John.Kirkutis@raveis.com

Our Executive Mortgage Banker:

  • Is available to meet with you in our office, your home or office, evenings or weekends
  • Offers you pre-approval in minutes!
  • Provides a guaranteed closing date that meets your needs
  • Has access to hundreds of loan programs, all at competitive rates
  • Is in constant contact with a full processing, underwriting, and closing staff to ensure an efficient transaction

Heidi SummaInsurance Sales Director, William Raveis Insurance

860.919.8074

Heidi.Summa@raveis.com

Our Insurance Division:

  • Will Provide a home insurance quote within 24 hours
  • Offers full-service coverage such as Homeowner's, Auto, Life, Renter's, Flood and Valuable Items
  • Partners with major insurance companies including Chubb, Kemper Unitrin, The Hartford, Progressive,
    Encompass, Travelers, Fireman's Fund, Middleoak Mutual, One Beacon and American Reliable

40 Abbott, Saint Augustine, FL, 32084

$650,000

Monte Henderson

Sales Associate

William Raveis Real Estate

Phone: 860.729.7874

Monte.Henderson@raveis.com

Russell Baboff

VP, Mortgage Banker

William Raveis Mortgage, LLC

Phone: 860.463.1745

Russell.Baboff@raveis.com

NMLS Mortgage Loan Originator ID 1014636

John Kirkutis

VP, Mortgage Banker

William Raveis Mortgage, LLC

Phone: 970.390.2521

John.Kirkutis@raveis.com

NMLS Mortgage Loan Originator ID 1424716

5/6 (30 Yr)
Adjustable Rate Conforming*
30 Year
Fixed-Rate Conforming
15 Year
Fixed-Rate Conforming
Loan Amount $520,000 $520,000 $520,000
Term 360 months 360 months 180 months
Initial Interest Rate** 6.250% 6.490% 5.750%
Interest Rate based on Index + Margin 8.125%
Annual Percentage Rate 6.474% 6.640% 5.972%
Monthly Tax Payment $55 $55 $55
H/O Insurance Payment $92 $92 $92
Initial Principal & Interest Pmt $3,202 $3,283 $4,318
Total Monthly Payment $3,349 $3,430 $4,465

* The Initial Interest Rate and Initial Principal & Interest Payment are fixed for the first and adjust every six months thereafter for the remainder of the loan term. The Interest Rate and annual percentage rate may increase after consummation. The Index for this product is the SOFR. The margin for this adjustable rate mortgage may vary with your unique credit history, and terms of your loan.

** Mortgage Rates are subject to change, loan amount and product restrictions and may not be available for your specific transaction at commitment or closing. Rates, and the margin for adjustable rate mortgages [if applicable], are subject to change without prior notice.

The rates and Annual Percentage Rate (APR) cited above may be only samples for the purpose of calculating payments and are based upon the following assumptions: minimum credit score of 740, 20% down payment (e.g. $20,000 down on a $100,000 purchase price), $1,950 in finance charges, and 30 days prepaid interest, 1 point, 30 day rate lock. The rates and APR will vary depending upon your unique credit history and the terms of your loan, e.g. the actual down payment percentages, points and fees for your transaction. Property taxes and homeowner's insurance are estimates and subject to change.