5B Fanning Avenue, Hampton Bays, NY, 11946 | $1,495,000

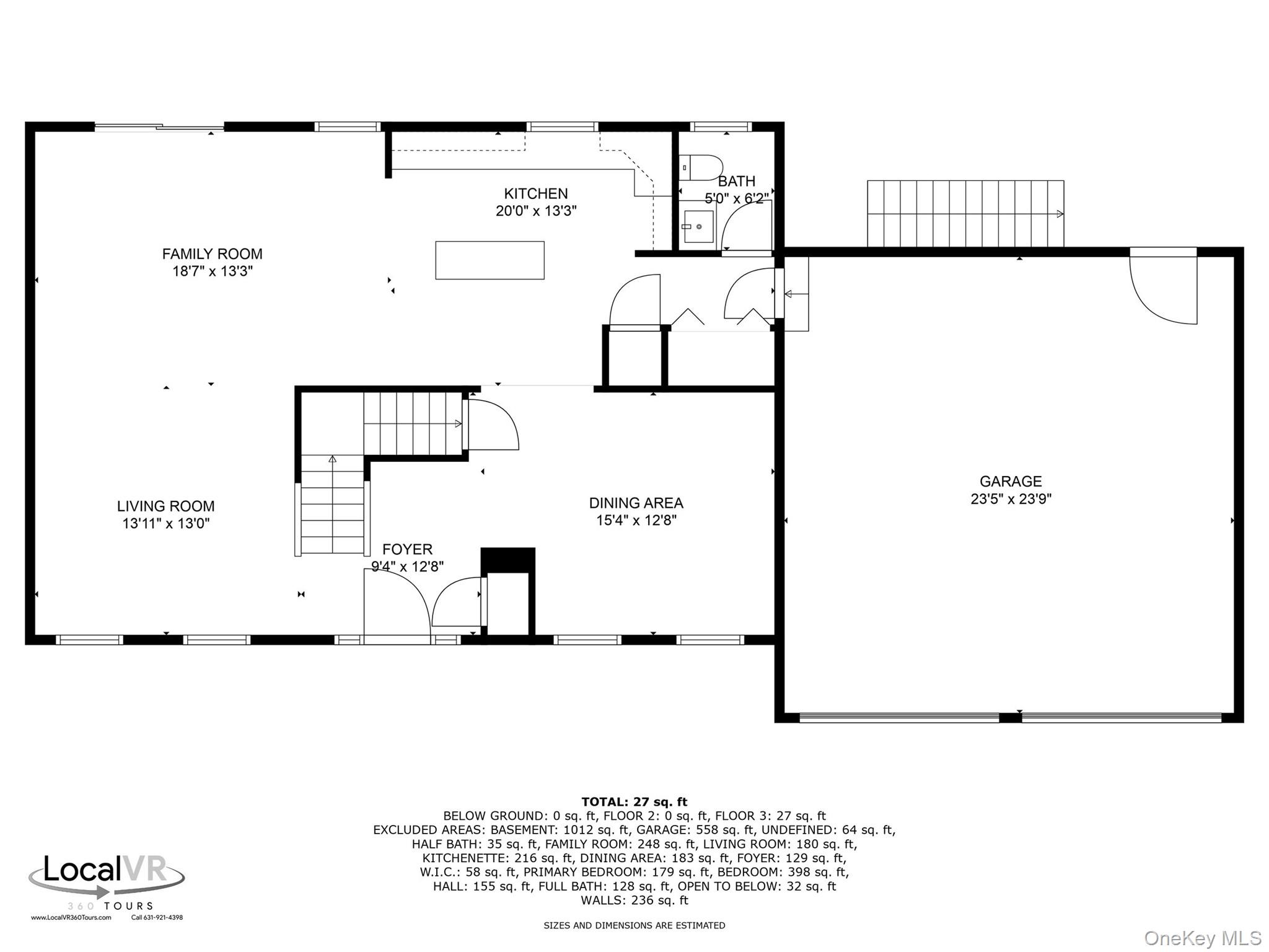
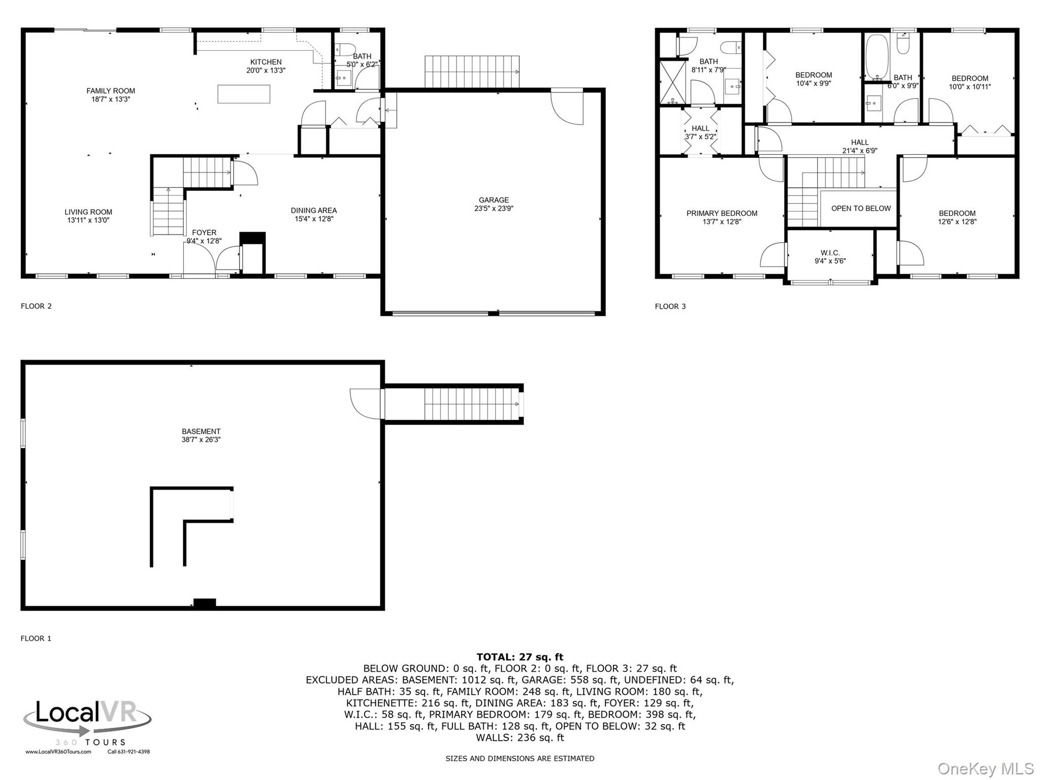
Exquisite New Construction in Hampton Bays!! Tucked away on a quiet, private drive, shared with just a few neighbors south of Montauk Highway, this Newly Built 4-bedroom, 2. 5-bath Residence blends timeless Hamptons style with exceptional craftsmanship. A covered mahogany porch leads into a dramatic grand entry with soaring 9 foot vaulted ceilings, setting the stage for light-filled, elegant interiors. Solid, wide-plank, white oak floors flow seamlessly throughout the first and second levels, paired with solid wood doors and custom-finished closets, three of which are in the Primary Suite, one being a large walk-in. The open-concept living area centers on a chef’s kitchen with quartz countertops, stainless steel appliances, and a generous center island, perfect for both casual dining and entertaining. The finished, sheetrocked, 2-car garage with 10. 5 foot ceilings and remote controlled doors, adds function and style, while the expansive lower level, with high ceilings just shy of 8. 5 feet, two egress windows, and a walk-out to the backyard, offers a large open canvas for future possibilities. Outdoors, enjoy a private backyard with mature 20 foot plus arborvitae trees, a 16 x 32 inground pool, and plenty of room to expand! Mahogany decking at the front and rear, covered in the front, creates inviting spaces to relax and entertain. This grand Residence lies just a stone’s throw away from plentiful shops, schools, transportation, world-class beaches and fishing, as well as top-rated waterfront restaurants, which Hampton Bays is renowned for!! Enjoy refined living in the heart of Hampton Bays today! Other models available as well.

Features

  • Rooms: 8
  • Bedrooms: 4
  • Baths: 2 full / 1 half
  • Style: Traditional
  • Year Built: 2025
  • Garage: 2-car
  • Heating: Forced Air, Propane
  • Cooling: Central Air
  • Basement: Full, Unfinished, Walk-Out Access
  • Approx Sq. Feet: 2,100
  • Acreage: 0.41
  • Est. Taxes: $11,000
  • Lot Desc: Back Yard, Cleared
  • Elem. School: Hampton Bays Elementary School
  • Middle School: Hampton Bays Middle School
  • High School: Hampton Bays High School
  • School District: Hampton Bays
  • Pool: In Ground
  • Appliances: Dishwasher, Dryer, Microwave, Range, Refrigerator, Stainless Steel Appliance(s), Washer
  • MLS#: 902059
  • Days on Market: 197 days
  • Website: https://www.raveis.com
    /eprop/902059/5bfanningavenue_hamptonbays_ny?source=qrflyer
Listing information has been assembled from various sources of varying degrees of reliability. Any information critical to the buying decision should be independently verified.Listing courtesy of Douglas Elliman Real Estate   Phone: 631-723-2721

William Raveis Family of Services

Our family of companies partner in delivering quality services in a one-stop-shopping environment. Together, we integrate the most comprehensive real estate, mortgage and insurance services available to fulfill your specific real estate needs.

Customer Service

888.699.8876

Contact@raveis.com

Our family of companies offer our clients a new level of full-service real estate. We shall:

  • Market your home to realize a quick sale at the best possible price
  • Place up to 20+ photos of your home on our website, raveis.com
  • Provide frequent communication and tracking reports showing the Internet views your home received on raveis.com
  • Showcase your home on raveis.com with a larger and more prominent format
  • Give you the full resources and strength of William Raveis Real Estate, Mortgage & Insurance and our cutting-edge technology

To learn more about our credentials, visit raveis.com today.

Frank KolbSenior Vice President - Coaching & Strategic, William Raveis Mortgage, LLC

NMLS Mortgage Loan Originator ID 81725

203.980.8025

Frank.Kolb@raveis.com

Our Executive Mortgage Banker:

  • Is available to meet with you in our office, your home or office, evenings or weekends
  • Offers you pre-approval in minutes!
  • Provides a guaranteed closing date that meets your needs
  • Has access to hundreds of loan programs, all at competitive rates
  • Is in constant contact with a full processing, underwriting, and closing staff to ensure an efficient transaction

Ryan FortierInsurance Sales Director, William Raveis Insurance

516.739.7731

Ryan.Fortier@raveis.com

Our Insurance Division:

  • Will Provide a home insurance quote within 24 hours
  • Offers full-service coverage such as Homeowner's, Auto, Life, Renter's, Flood and Valuable Items
  • Partners with major insurance companies including Chubb, Kemper Unitrin, The Hartford, Progressive,
    Encompass, Travelers, Fireman's Fund, Middleoak Mutual, One Beacon and American Reliable

5B Fanning Avenue, Hampton Bays, NY, 11946

$1,495,000

Customer Service

William Raveis Real Estate

Phone: 888.699.8876

Contact@raveis.com

Frank Kolb

Senior Vice President - Coaching & Strategic

William Raveis Mortgage, LLC

Phone: 203.980.8025

Frank.Kolb@raveis.com

NMLS Mortgage Loan Originator ID 81725

5/6 (30 Yr)
Adjustable Rate Jumbo*
30 Year
Fixed-Rate Jumbo
15 Year
Fixed-Rate Jumbo
Loan Amount $1,196,000 $1,196,000 $1,196,000
Term 360 months 360 months 180 months
Initial Interest Rate** 4.750% 5.625% 5.375%
Interest Rate based on Index + Margin 8.125%
Annual Percentage Rate 5.878% 5.732% 5.555%
Monthly Tax Payment $917 $917 $917
H/O Insurance Payment $125 $125 $125
Initial Principal & Interest Pmt $6,239 $6,885 $9,693
Total Monthly Payment $7,281 $7,927 $10,735

* The Initial Interest Rate and Initial Principal & Interest Payment are fixed for the first and adjust every six months thereafter for the remainder of the loan term. The Interest Rate and annual percentage rate may increase after consummation. The Index for this product is the SOFR. The margin for this adjustable rate mortgage may vary with your unique credit history, and terms of your loan.

** Mortgage Rates are subject to change, loan amount and product restrictions and may not be available for your specific transaction at commitment or closing. Rates, and the margin for adjustable rate mortgages [if applicable], are subject to change without prior notice.

The rates and Annual Percentage Rate (APR) cited above may be only samples for the purpose of calculating payments and are based upon the following assumptions: minimum credit score of 740, 20% down payment (e.g. $20,000 down on a $100,000 purchase price), $1,950 in finance charges, and 30 days prepaid interest, 1 point, 30 day rate lock. The rates and APR will vary depending upon your unique credit history and the terms of your loan, e.g. the actual down payment percentages, points and fees for your transaction. Property taxes and homeowner's insurance are estimates and subject to change.