55 Enoch Crosby Road, Brewster, NY, 10509 | $1,188,000

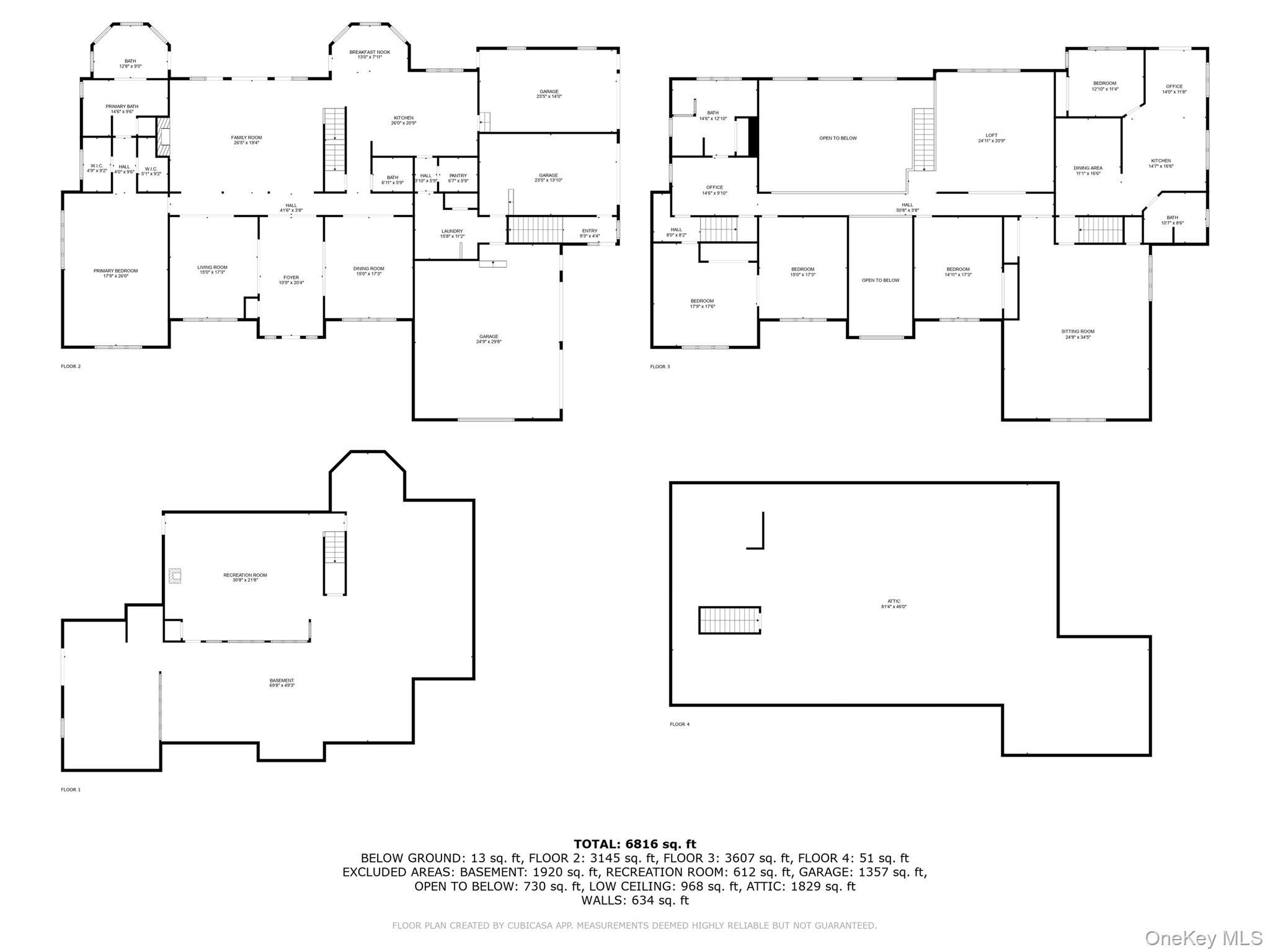
Custom-built & Quality-built home. First time on the market. Priced to Sell. 55 Enoch Crosby Road is a lovely Contemporary Colonial complete w/Accessory Apartment, 4-car heated garages and showcases a thoughtful and well-planned design. Tucked away on a peaceful 5. 5-acre property, your private, lighted, tree-lined drive leads you home to serene & peaceful grounds featuring a 16 X 38 ft. heated in-ground pool. Inside you will be greeted by an open foyer w/inlaid flooring, formal dining room, family room/den, sunken living room w/gas fireplace, radiant floor heat and a wall of custom doors & windows that allow natural sunlight to radiate. Crafted w/quality and designed for comfort, this home offers generous living spaces and striking ceiling height throughout. The convenient & well-proportioned first-floor primary suite boasts double walk-in closets, floor-to-ceiling tiled shower, Jacuzzi tub, radiant floor heat and direct access to the private outdoors. Eat-in kitchen is appointed w/granite countertops, gas range, large pantry, wine fridge, double wall oven, radiant floor heat & ample cabinet/counter space. The main level also includes a half bath, first floor laundry room thoughtfully designed w/custom dog bath. The 2nd floor recreation area provides the perfect setting for relaxation & fun, complete w/a full-size pool table, cozy lounge areas, and a generous-sized 2nd family room nearby. The open catwalk layout overlooks the main level and connects two large bedrooms, bonus room, full bath & convenient hall office space. The Accessory apartment provides many opportunities (extended family living, in-law/mother daughter, rental income, Airbnb, home office/business). Inside you will find a spacious one-bedroom apartment w/radiant floor heat, private deck w/awning. Plenty of storage throughout including a full walk-up attic & full walk-out basement w/woodburning stove and additional full bath. If you are looking for a unique & custom-built home that TRULY HAS IT ALL – you have found it! The Enoch Crosby area is located in a sought-after community near the Middle Branch Reservoir, golfing, bike paths, local restaurants, shopping & Danbury CT. GREAT commuter location with its close proximity to Metro North Train Station, Route 684/84, 27 miles to Westchester County Airport, 30 miles to White Plains, 59 miles to NYC.

Features

  • Rooms: 12
  • Bedrooms: 4
  • Baths: 4 full / 1 half
  • Laundry: Laundry Room
  • Style: Colonial
  • Year Built: 2004
  • Garage: 4-car
  • Heating: Oil, Radiant, Radiant Floor
  • Cooling: Central Air
  • Basement: Full, Unfinished, Walk-Out Access
  • Approx Sq. Feet: 6,882
  • Acreage: 5.49
  • Est. Taxes: $25,950
  • Lot Desc: Back Yard, Front Yard, Landscaped, Near Public Transit, Near School, Near Shops, Part Wooded, Private
  • View: Trees/Woods
  • Elem. School: John F. Kennedy
  • Middle School: Henry H Wells Middle School
  • High School: Brewster High School
  • School District: Brewster
  • Pool: Electric Heat, Fenced, In Ground, Outdoor Pool, Pool Cover
  • Appliances: Dishwasher, Dryer, Gas Cooktop, Microwave, Refrigerator, Stainless Steel Appliance(s), Washer, Wine Refrigerator
  • MLS#: 892338
  • Days on Market: 112 days
  • Website: https://www.raveis.com
    /eprop/892338/55enochcrosbyroad_brewster_ny?source=qrflyer
Listing information has been assembled from various sources of varying degrees of reliability. Any information critical to the buying decision should be independently verified.Listing courtesy of Briante Realty Group, LLC   Phone: 845-225-2020

William Raveis Family of Services

Our family of companies partner in delivering quality services in a one-stop-shopping environment. Together, we integrate the most comprehensive real estate, mortgage and insurance services available to fulfill your specific real estate needs.

Customer Service

888.699.8876

Contact@raveis.com

Our family of companies offer our clients a new level of full-service real estate. We shall:

  • Market your home to realize a quick sale at the best possible price
  • Place up to 20+ photos of your home on our website, raveis.com
  • Provide frequent communication and tracking reports showing the Internet views your home received on raveis.com
  • Showcase your home on raveis.com with a larger and more prominent format
  • Give you the full resources and strength of William Raveis Real Estate, Mortgage & Insurance and our cutting-edge technology

To learn more about our credentials, visit raveis.com today.

Frank KolbSenior Vice President - Coaching & Strategic, William Raveis Mortgage, LLC

NMLS Mortgage Loan Originator ID 81725

203.980.8025

Frank.Kolb@raveis.com

Our Executive Mortgage Banker:

  • Is available to meet with you in our office, your home or office, evenings or weekends
  • Offers you pre-approval in minutes!
  • Provides a guaranteed closing date that meets your needs
  • Has access to hundreds of loan programs, all at competitive rates
  • Is in constant contact with a full processing, underwriting, and closing staff to ensure an efficient transaction

Ryan FortierInsurance Sales Director, William Raveis Insurance

516.739.7731

Ryan.Fortier@raveis.com

Our Insurance Division:

  • Will Provide a home insurance quote within 24 hours
  • Offers full-service coverage such as Homeowner's, Auto, Life, Renter's, Flood and Valuable Items
  • Partners with major insurance companies including Chubb, Kemper Unitrin, The Hartford, Progressive,
    Encompass, Travelers, Fireman's Fund, Middleoak Mutual, One Beacon and American Reliable

55 Enoch Crosby Road, Brewster, NY, 10509

$1,188,000

Customer Service

William Raveis Real Estate

Phone: 888.699.8876

Contact@raveis.com

Frank Kolb

Senior Vice President - Coaching & Strategic

William Raveis Mortgage, LLC

Phone: 203.980.8025

Frank.Kolb@raveis.com

NMLS Mortgage Loan Originator ID 81725

5/6 (30 Yr)
Adjustable Rate Jumbo*
30 Year
Fixed-Rate Jumbo
15 Year
Fixed-Rate Jumbo
Loan Amount $950,400 $950,400 $950,400
Term 360 months 360 months 180 months
Initial Interest Rate** 4.875% 5.750% 5.500%
Interest Rate based on Index + Margin 8.125%
Annual Percentage Rate 6.001% 5.858% 5.681%
Monthly Tax Payment $2,163 $2,163 $2,163
H/O Insurance Payment $125 $125 $125
Initial Principal & Interest Pmt $5,030 $5,546 $7,766
Total Monthly Payment $7,317 $7,833 $10,053

* The Initial Interest Rate and Initial Principal & Interest Payment are fixed for the first and adjust every six months thereafter for the remainder of the loan term. The Interest Rate and annual percentage rate may increase after consummation. The Index for this product is the SOFR. The margin for this adjustable rate mortgage may vary with your unique credit history, and terms of your loan.

** Mortgage Rates are subject to change, loan amount and product restrictions and may not be available for your specific transaction at commitment or closing. Rates, and the margin for adjustable rate mortgages [if applicable], are subject to change without prior notice.

The rates and Annual Percentage Rate (APR) cited above may be only samples for the purpose of calculating payments and are based upon the following assumptions: minimum credit score of 740, 20% down payment (e.g. $20,000 down on a $100,000 purchase price), $1,950 in finance charges, and 30 days prepaid interest, 1 point, 30 day rate lock. The rates and APR will vary depending upon your unique credit history and the terms of your loan, e.g. the actual down payment percentages, points and fees for your transaction. Property taxes and homeowner's insurance are estimates and subject to change.