507 Bull Mill Road, Chester, NY, 10918 | $674,999

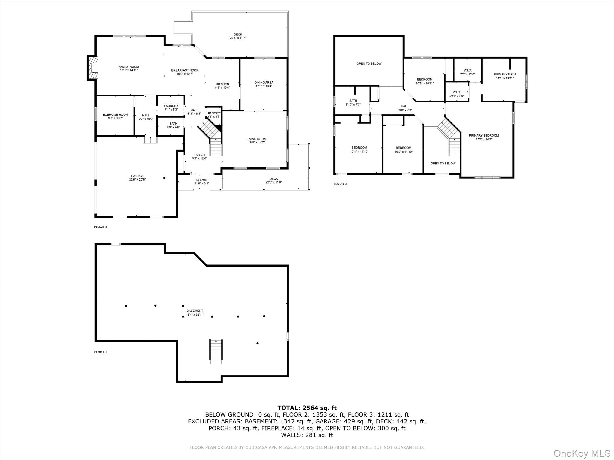
Welcome to this beautifully maintained colonial with a charming wrap-around front porch, set on 1. 5 private acres within the sought-after Monroe-Woodbury School District. Offering over 3, 100 square feet of living space, this 5-bedroom, 2. 5-bath home blends timeless style with thoughtful design.

Step inside the two-story foyer and you’ll find a bright, flowing layout designed for both everyday living and effortless entertaining. Gleaming hardwood floors, generous living spaces, and quality finishes create a warm and welcoming atmosphere throughout. The family room features a vaulted ceiling, wood-burning fireplace, and abundant natural light—beautifully showcased from the open upstairs landing above.

The gourmet kitchen is equipped with high-end appliances, a pantry, and an open dining area that leads to a back deck overlooking the expansive backyard—ideal for outdoor entertaining. A formal dining room offers an elegant space for hosting. A main-level bedroom provides flexible options for use as an office, gym, or guest space. The mudroom offers convenient storage for coats and shoes, keeping daily routines organized.

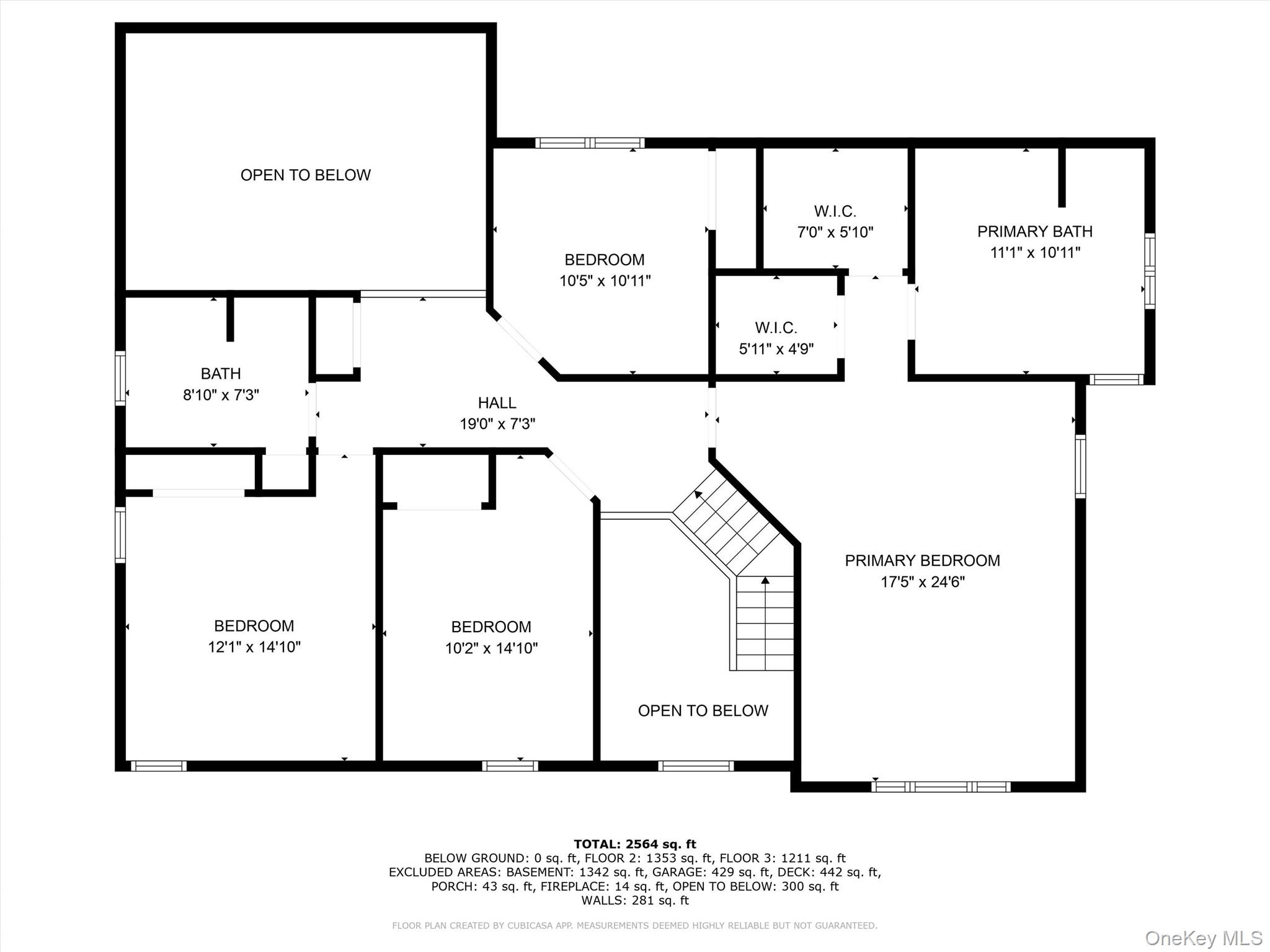
Upstairs, the spacious primary suite is a true retreat with tray ceilings, two walk-in closets, and a luxurious en suite bath with a jetted tub and separate shower. Three additional bedrooms and a full bath complete the second floor.

A full, unfinished basement presents endless possibilities for customization. Additional highlights include a laundry room, electric pet fence on the full perimeter of the property, and a large, private yard offering the perfect blend of privacy, comfort, and space. Stunning exterior lighting provides striking curb appeal and ambiance in the evening.

Don’t miss the opportunity to make this spacious, light-filled colonial—set on 1. 5 private acres—your forever home. Schedule your private showing today.

Features

  • Rooms: 10
  • Bedrooms: 5
  • Baths: 2 full / 1 half
  • Laundry: Laundry Room
  • Style: Colonial
  • Year Built: 2003
  • Garage: 2-car
  • Heating: Oil
  • Cooling: Central Air
  • Basement: Full, Storage Space, Unfinished
  • Approx Sq. Feet: 3,115
  • Acreage: 1.5
  • Est. Taxes: $19,236
  • View: Trees/Woods
  • Elem. School: North Main Street
  • Middle School: Monroe-Woodbury Middle School
  • High School: Monroe-Woodbury High School
  • School District: Monroe-Woodbury
  • Appliances: Dishwasher, Dryer, Gas Oven, Gas Range, Refrigerator, Washer
  • MLS#: 894259
  • Days on Market: 135 days
  • Website: https://www.raveis.com
    /prop/894259/507bullmillroad_chester_ny?source=qrflyer
Listing information has been assembled from various sources of varying degrees of reliability. Any information critical to the buying decision should be independently verified.Listing courtesy of Keller Williams Hudson Valley   Phone: 845-610-6065

William Raveis Family of Services

Our family of companies partner in delivering quality services in a one-stop-shopping environment. Together, we integrate the most comprehensive real estate, mortgage and insurance services available to fulfill your specific real estate needs.

Customer Service

888.699.8876

Contact@raveis.com

Our family of companies offer our clients a new level of full-service real estate. We shall:

  • Market your home to realize a quick sale at the best possible price
  • Place up to 20+ photos of your home on our website, raveis.com
  • Provide frequent communication and tracking reports showing the Internet views your home received on raveis.com
  • Showcase your home on raveis.com with a larger and more prominent format
  • Give you the full resources and strength of William Raveis Real Estate, Mortgage & Insurance and our cutting-edge technology

To learn more about our credentials, visit raveis.com today.

Frank KolbSenior Vice President - Coaching & Strategic, William Raveis Mortgage, LLC

NMLS Mortgage Loan Originator ID 81725

203.980.8025

Frank.Kolb@raveis.com

Our Executive Mortgage Banker:

  • Is available to meet with you in our office, your home or office, evenings or weekends
  • Offers you pre-approval in minutes!
  • Provides a guaranteed closing date that meets your needs
  • Has access to hundreds of loan programs, all at competitive rates
  • Is in constant contact with a full processing, underwriting, and closing staff to ensure an efficient transaction

Ryan FortierInsurance Sales Director, William Raveis Insurance

516.739.7731

Ryan.Fortier@raveis.com

Our Insurance Division:

  • Will Provide a home insurance quote within 24 hours
  • Offers full-service coverage such as Homeowner's, Auto, Life, Renter's, Flood and Valuable Items
  • Partners with major insurance companies including Chubb, Kemper Unitrin, The Hartford, Progressive,
    Encompass, Travelers, Fireman's Fund, Middleoak Mutual, One Beacon and American Reliable

507 Bull Mill Road, Chester, NY, 10918

$674,999

Customer Service

William Raveis Real Estate

Phone: 888.699.8876

Contact@raveis.com

Frank Kolb

Senior Vice President - Coaching & Strategic

William Raveis Mortgage, LLC

Phone: 203.980.8025

Frank.Kolb@raveis.com

NMLS Mortgage Loan Originator ID 81725

5/6 (30 Yr)
Adjustable Rate Conforming*
30 Year
Fixed-Rate Conforming
15 Year
Fixed-Rate Conforming
Loan Amount $539,999 $539,999 $539,999
Term 360 months 360 months 180 months
Initial Interest Rate** 5.500% 6.125% 5.375%
Interest Rate based on Index + Margin 8.125%
Annual Percentage Rate 6.209% 6.292% 5.628%
Monthly Tax Payment $1,603 $1,603 $1,603
H/O Insurance Payment $92 $92 $92
Initial Principal & Interest Pmt $3,066 $3,281 $4,377
Total Monthly Payment $4,761 $4,976 $6,072

* The Initial Interest Rate and Initial Principal & Interest Payment are fixed for the first and adjust every six months thereafter for the remainder of the loan term. The Interest Rate and annual percentage rate may increase after consummation. The Index for this product is the SOFR. The margin for this adjustable rate mortgage may vary with your unique credit history, and terms of your loan.

** Mortgage Rates are subject to change, loan amount and product restrictions and may not be available for your specific transaction at commitment or closing. Rates, and the margin for adjustable rate mortgages [if applicable], are subject to change without prior notice.

The rates and Annual Percentage Rate (APR) cited above may be only samples for the purpose of calculating payments and are based upon the following assumptions: minimum credit score of 740, 20% down payment (e.g. $20,000 down on a $100,000 purchase price), $1,950 in finance charges, and 30 days prepaid interest, 1 point, 30 day rate lock. The rates and APR will vary depending upon your unique credit history and the terms of your loan, e.g. the actual down payment percentages, points and fees for your transaction. Property taxes and homeowner's insurance are estimates and subject to change.