Lot #3 Cardinal Court, Ridge, NY, 11961 | $779,999

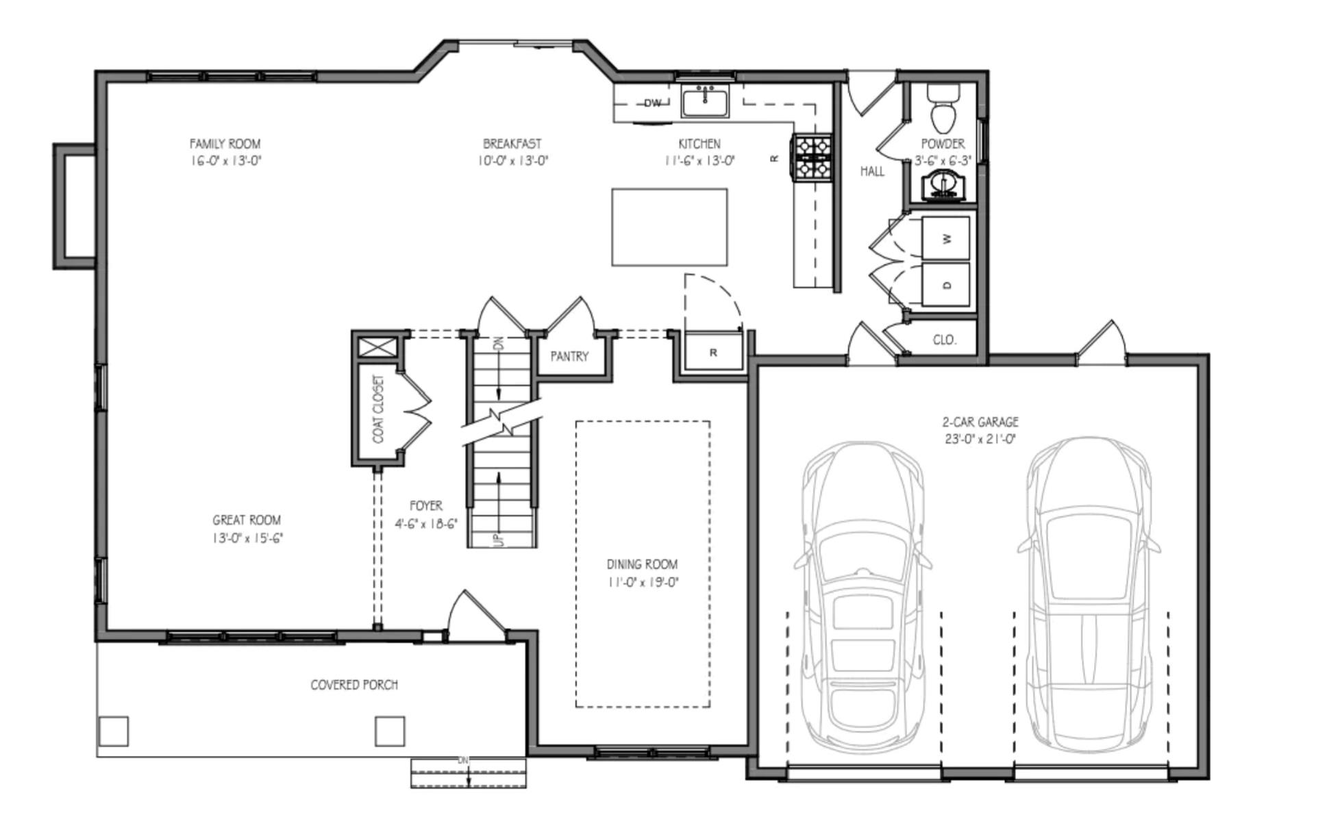
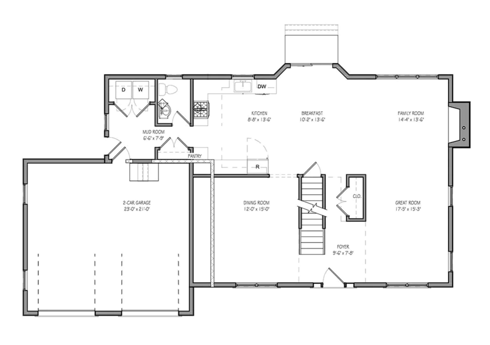
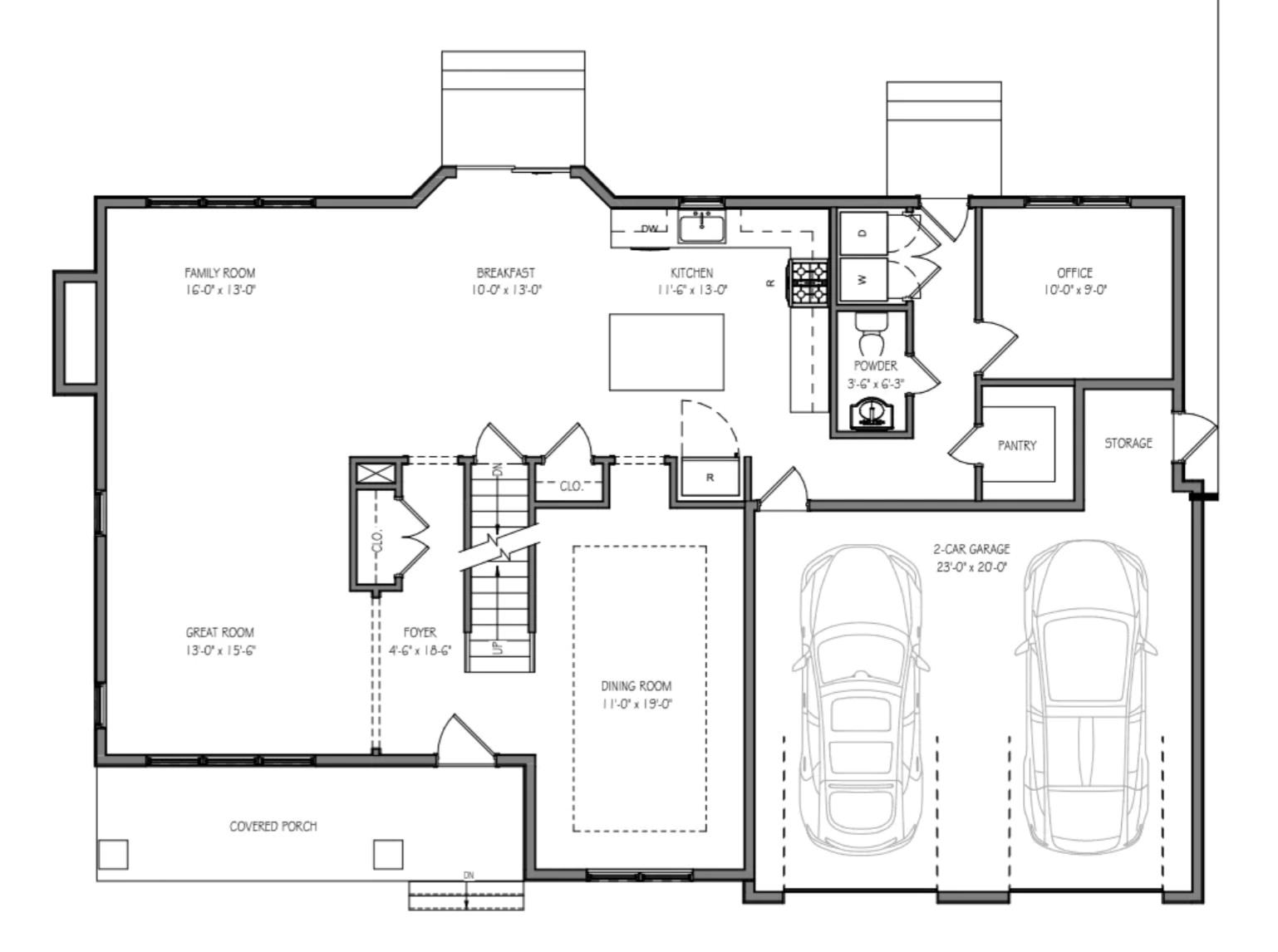
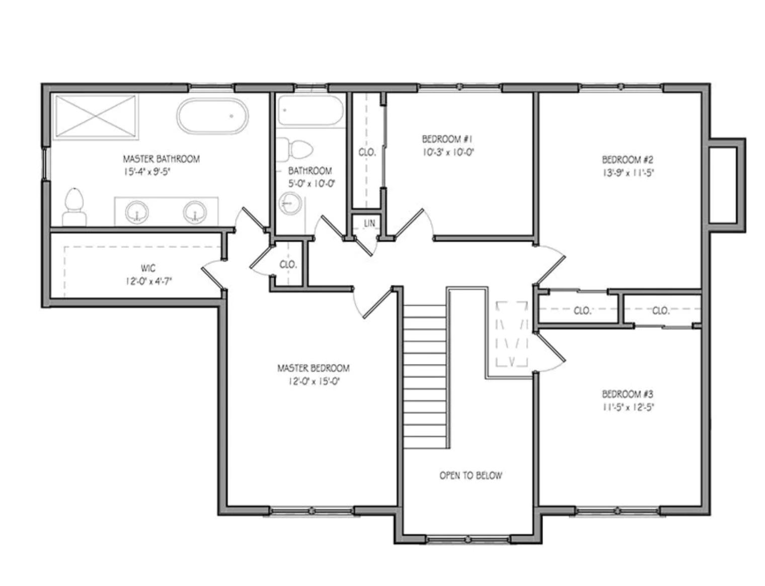
New Construction Colonial – To Be Built. 4 Bedrooms, 2. 5 Bathrooms Incredible opportunity to build your dream home with an interest rate as low as 4. 99%! Choose from three thoughtfully designed models: The Mattituck, The Jamesport, and The Jamesport Plus. Each model offers a spacious and functional layout with high-quality finishes throughout. This beautiful Colonial will feature four generously sized bedrooms, two and a half bathrooms, and an oversized attached garage with interior access. Exterior features include architectural roof shingles with a 30-year guarantee, a blacktop driveway and walkway, a concrete front porch with sidelights, and maintenance-free vinyl siding. Stone accents are available upon request. The home will also include aluminum gutters and leaders, exterior electrical outlets and hose bibs in the front and rear, a 6’ sliding glass door, and seeded front and rear yards. Inside, the home offers 9-foot ceilings on the main level, 8-foot ceilings on the second floor and basement, and red oak hardwood flooring in the living room, family room, dining room, and upstairs hallway. The dining room is enhanced with a tray ceiling and crown molding. The kitchen and bathrooms will feature ceramic tile, while the bedrooms will have comfortable wall-to-wall carpeting. A 36” gas fireplace provides a cozy centerpiece in the main living space. Additional highlights include oak handrails with white balusters, recessed lighting (10 fixtures), and a choice of interior doors with colonial-style molding and baseboards. Conveniences include hookups for a washer and dryer, two telephone outlets, two cable outlets, and a garage wired for a door opener. Benjamin Moore paint (two color choices) with white trim is included. Closet shelving is PVC-coated throughout, with optional upgrade packages available for the primary bedroom. Don’t miss the chance to personalize your finishes and create a home tailored to your lifestyle. A rare new construction opportunity in a highly desirable area!

Features

  • Rooms: 10
  • Bedrooms: 4
  • Baths: 2 full / 1 half
  • Laundry: Inside, Laundry Room
  • Style: Colonial
  • Year Built: 2025
  • Garage: 2-car
  • Heating: Forced Air
  • Cooling: Central Air
  • Basement: Full, Walk-Out Access
  • Approx Sq. Feet: 2,260
  • Acreage: 0.46
  • Est. Taxes: $0
  • Lot Desc: Back Yard, Cul-De-Sac
  • Elem. School: Longwood Middle School
  • Middle School: Longwood Junior High School
  • High School: Longwood High School
  • School District: Longwood
  • Appliances: Dishwasher, Oven, Refrigerator, Stainless Steel Appliance(s)
  • MLS#: 892389
  • Days on Market: 67 days
  • Website: https://www.raveis.com
    /prop/892389/lot3cardinalcourt_ridge_ny?source=qrflyer
Listing information has been assembled from various sources of varying degrees of reliability. Any information critical to the buying decision should be independently verified.Listing courtesy of Coldwell Banker American Homes   Phone: 631-863-9800

William Raveis Family of Services

Our family of companies partner in delivering quality services in a one-stop-shopping environment. Together, we integrate the most comprehensive real estate, mortgage and insurance services available to fulfill your specific real estate needs.

Customer Service

888.699.8876

Contact@raveis.com

Our family of companies offer our clients a new level of full-service real estate. We shall:

  • Market your home to realize a quick sale at the best possible price
  • Place up to 20+ photos of your home on our website, raveis.com
  • Provide frequent communication and tracking reports showing the Internet views your home received on raveis.com
  • Showcase your home on raveis.com with a larger and more prominent format
  • Give you the full resources and strength of William Raveis Real Estate, Mortgage & Insurance and our cutting-edge technology

To learn more about our credentials, visit raveis.com today.

Sarah DeFlorioVP, Mortgage Banker, William Raveis Mortgage, LLC

NMLS Mortgage Loan Originator ID 1880936

347.223.0992

Sarah.DeFlorio@Raveis.com

Our Executive Mortgage Banker:

  • Is available to meet with you in our office, your home or office, evenings or weekends
  • Offers you pre-approval in minutes!
  • Provides a guaranteed closing date that meets your needs
  • Has access to hundreds of loan programs, all at competitive rates
  • Is in constant contact with a full processing, underwriting, and closing staff to ensure an efficient transaction

Ryan FortierInsurance Sales Director, William Raveis Insurance

516.739.7731

Ryan.Fortier@raveis.com

Our Insurance Division:

  • Will Provide a home insurance quote within 24 hours
  • Offers full-service coverage such as Homeowner's, Auto, Life, Renter's, Flood and Valuable Items
  • Partners with major insurance companies including Chubb, Kemper Unitrin, The Hartford, Progressive,
    Encompass, Travelers, Fireman's Fund, Middleoak Mutual, One Beacon and American Reliable

Lot #3 Cardinal Court, Ridge, NY, 11961

$779,999

Customer Service

William Raveis Real Estate

Phone: 888.699.8876

Contact@raveis.com

Sarah DeFlorio

VP, Mortgage Banker

William Raveis Mortgage, LLC

Phone: 347.223.0992

Sarah.DeFlorio@Raveis.com

NMLS Mortgage Loan Originator ID 1880936

5/6 (30 Yr)
Adjustable Rate Conforming*
30 Year
Fixed-Rate Conforming
15 Year
Fixed-Rate Conforming
Loan Amount $623,999 $623,999 $623,999
Term 360 months 360 months 180 months
Initial Interest Rate** 5.750% 6.125% 5.375%
Interest Rate based on Index + Margin 8.125%
Annual Percentage Rate 6.521% 6.304% 5.648%
Monthly Tax Payment $0 $0 $0
H/O Insurance Payment $92 $92 $92
Initial Principal & Interest Pmt $3,641 $3,791 $5,057
Total Monthly Payment $3,733 $3,883 $5,149

* The Initial Interest Rate and Initial Principal & Interest Payment are fixed for the first and adjust every six months thereafter for the remainder of the loan term. The Interest Rate and annual percentage rate may increase after consummation. The Index for this product is the SOFR. The margin for this adjustable rate mortgage may vary with your unique credit history, and terms of your loan.

** Mortgage Rates are subject to change, loan amount and product restrictions and may not be available for your specific transaction at commitment or closing. Rates, and the margin for adjustable rate mortgages [if applicable], are subject to change without prior notice.

The rates and Annual Percentage Rate (APR) cited above may be only samples for the purpose of calculating payments and are based upon the following assumptions: minimum credit score of 740, 20% down payment (e.g. $20,000 down on a $100,000 purchase price), $1,950 in finance charges, and 30 days prepaid interest, 1 point, 30 day rate lock. The rates and APR will vary depending upon your unique credit history and the terms of your loan, e.g. the actual down payment percentages, points and fees for your transaction. Property taxes and homeowner's insurance are estimates and subject to change.