801 S Miami Ave, #4205, Miami, FL, 33130 | $1,095,000

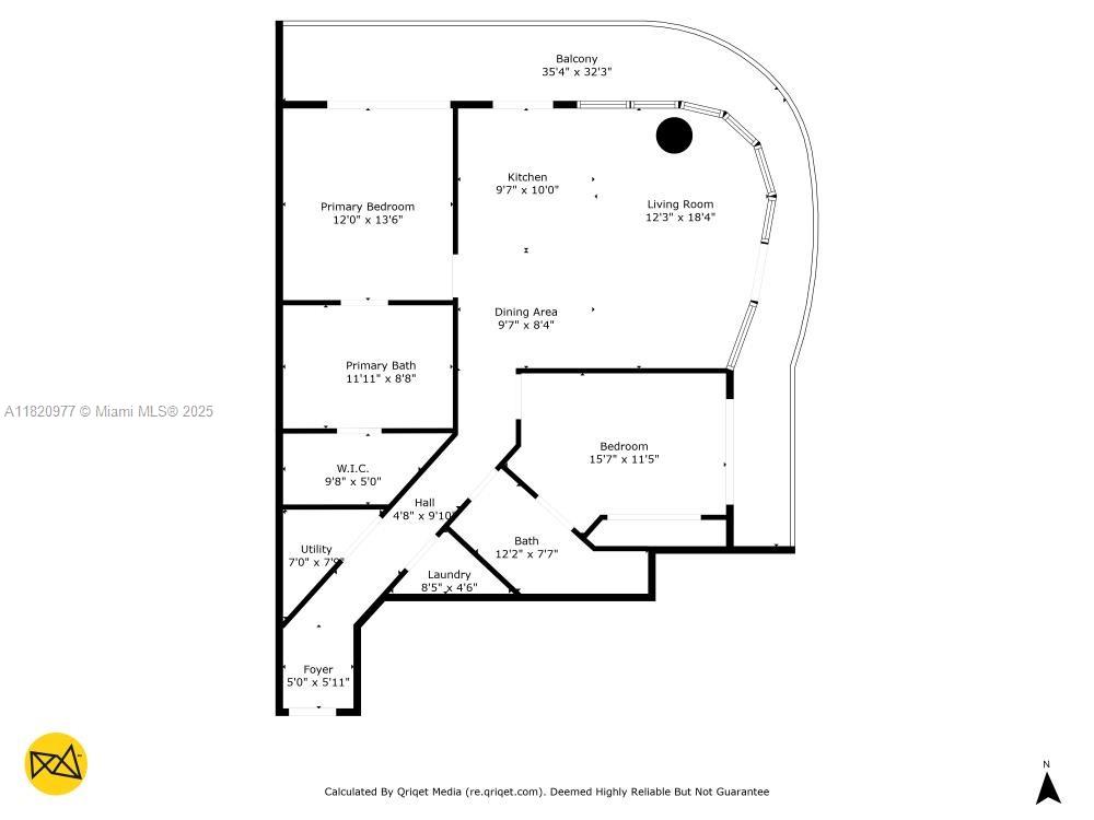
Wonderfully furnished & equipped 2 bed/2 bath unit in SLS Lux sold turn key! Biscayne bay & Miami skyline views await you. Private foyer elevator, 1 covered parking space. Designer furniture and furnishings. Upgraded unit finishes include: Italian Ciot green marble countertops & LED lighting in kitchen, white calacatta luxor marble vanity tops & Toto washlets in bathrms, Italkraft closet system in closets, automated window roller shades throughout. Bldg amenities include: SLS Hotel - 2 pools - Roof top private pool for residents only, Cabanas, bar & restaurants, Fitness Ctr & sauna, Spa, children's playground w/rock climbing, Billiard, Wine & cigar room, game room, putting green, tennis, 45th flresidents wine lounge. Brickell City Center w/entertainment & dining. Close to airport & M. Beach ** Unit cannot be shown** Tenant occupied till 1/19/2027 @ $6800/mo. ** Unit Sold w/occupied tenant, lease fully enforced. Can be seen w/ executed contract & to conduct inspections. ** See attached video and floor plan of unit**

Features

  • Heating: Central,Electric
  • Cooling: Central Air,Electric
  • Levels: 58
  • Amenities: Fitness Center,Sauna,Spa/Hot Tub,Elevator(s)
  • Bedrooms: 2
  • Baths: 2 full
  • Complex: 801 SMA RESIDENCES CONDO
  • Year Built: 2018
  • Common Charge: $1,906 Monthly
  • Est. Taxes: $14,878
  • View: Bay,Other
  • Water Front: Yes
  • Elem. School: Riverside
  • Middle School: Shenandoah
  • High School: Washington; Brooker T
  • Pets Allowed: No
  • Appliances: Dryer,Dishwasher,Electric Range,Electric Water Heater,Disposal,Microwave,Refrigerator,Washer
  • MLS#: A11820977
  • Days on Market: 223 days
  • Website: https://www.raveis.com
    /prop/A11820977/801smiamiave_miami_fl?source=qrflyer
This information is deemed reliable, but not guaranteed. The data relating to real estate displayed on this Site comes in part from the IDX Program of MIAMI Association of REALTORS. The information being provided is for consumers' personal, non-commercial use and may not be used for any purpose other than to identify prospective properties consumers may be interested in purchasing.
Listing courtesy of Cervera Real Estate Inc.   Phone: 305-374-3434

William Raveis Family of Services

Our family of companies partner in delivering quality services in a one-stop-shopping environment. Together, we integrate the most comprehensive real estate, mortgage and insurance services available to fulfill your specific real estate needs.

Customer Service

888.699.8876

Contact@raveis.com

Our family of companies offer our clients a new level of full-service real estate. We shall:

  • Market your home to realize a quick sale at the best possible price
  • Place up to 20+ photos of your home on our website, raveis.com
  • Provide frequent communication and tracking reports showing the Internet views your home received on raveis.com
  • Showcase your home on raveis.com with a larger and more prominent format
  • Give you the full resources and strength of William Raveis Real Estate, Mortgage & Insurance and our cutting-edge technology

To learn more about our credentials, visit raveis.com today.

Melissa CohnRVP, Mortgage Banker, William Raveis Mortgage, LLC

NMLS Mortgage Loan Originator ID 16953

917.838.7300

Melissa.Cohn@raveis.com

Our Executive Mortgage Banker:

  • Is available to meet with you in our office, your home or office, evenings or weekends
  • Offers you pre-approval in minutes!
  • Provides a guaranteed closing date that meets your needs
  • Has access to hundreds of loan programs, all at competitive rates
  • Is in constant contact with a full processing, underwriting, and closing staff to ensure an efficient transaction

Pedro DelgadilloInsurance Sales Director, William Raveis Insurance

305.922.5393

Pedro.Delgadillo@raveis.com

Our Insurance Division:

  • Will Provide a home insurance quote within 24 hours
  • Offers full-service coverage such as Homeowner's, Auto, Life, Renter's, Flood and Valuable Items
  • Partners with major insurance companies including Chubb, Kemper Unitrin, The Hartford, Progressive,
    Encompass, Travelers, Fireman's Fund, Middleoak Mutual, One Beacon and American Reliable

801 S Miami Ave, #4205, Miami, FL, 33130

$1,095,000

Customer Service

William Raveis Real Estate

Phone: 888.699.8876

Contact@raveis.com

Melissa Cohn

RVP, Mortgage Banker

William Raveis Mortgage, LLC

Phone: 917.838.7300

Melissa.Cohn@raveis.com

NMLS Mortgage Loan Originator ID 16953

5/6 (30 Yr)
Adjustable Rate Jumbo*
30 Year
Fixed-Rate Jumbo
15 Year
Fixed-Rate Jumbo
Loan Amount $876,000 $876,000 $876,000
Term 360 months 360 months 180 months
Initial Interest Rate** 5.500% 5.875% 5.750%
Interest Rate based on Index + Margin 8.125%
Annual Percentage Rate 6.165% 6.007% 5.952%
Monthly Tax Payment $1,240 $1,240 $1,240
H/O Insurance Payment $125 $125 $125
Initial Principal & Interest Pmt $4,974 $5,182 $7,274
Total Monthly Payment $6,339 $6,547 $8,639

* The Initial Interest Rate and Initial Principal & Interest Payment are fixed for the first and adjust every six months thereafter for the remainder of the loan term. The Interest Rate and annual percentage rate may increase after consummation. The Index for this product is the SOFR. The margin for this adjustable rate mortgage may vary with your unique credit history, and terms of your loan.

** Mortgage Rates are subject to change, loan amount and product restrictions and may not be available for your specific transaction at commitment or closing. Rates, and the margin for adjustable rate mortgages [if applicable], are subject to change without prior notice.

The rates and Annual Percentage Rate (APR) cited above may be only samples for the purpose of calculating payments and are based upon the following assumptions: minimum credit score of 740, 20% down payment (e.g. $20,000 down on a $100,000 purchase price), $1,950 in finance charges, and 30 days prepaid interest, 1 point, 30 day rate lock. The rates and APR will vary depending upon your unique credit history and the terms of your loan, e.g. the actual down payment percentages, points and fees for your transaction. Property taxes and homeowner's insurance are estimates and subject to change.  The Total Monthly Payment does not include the estimated HOA/Common Charge payment.