12281 SW 121st Ter, Miami, FL, 33186 | $650,000

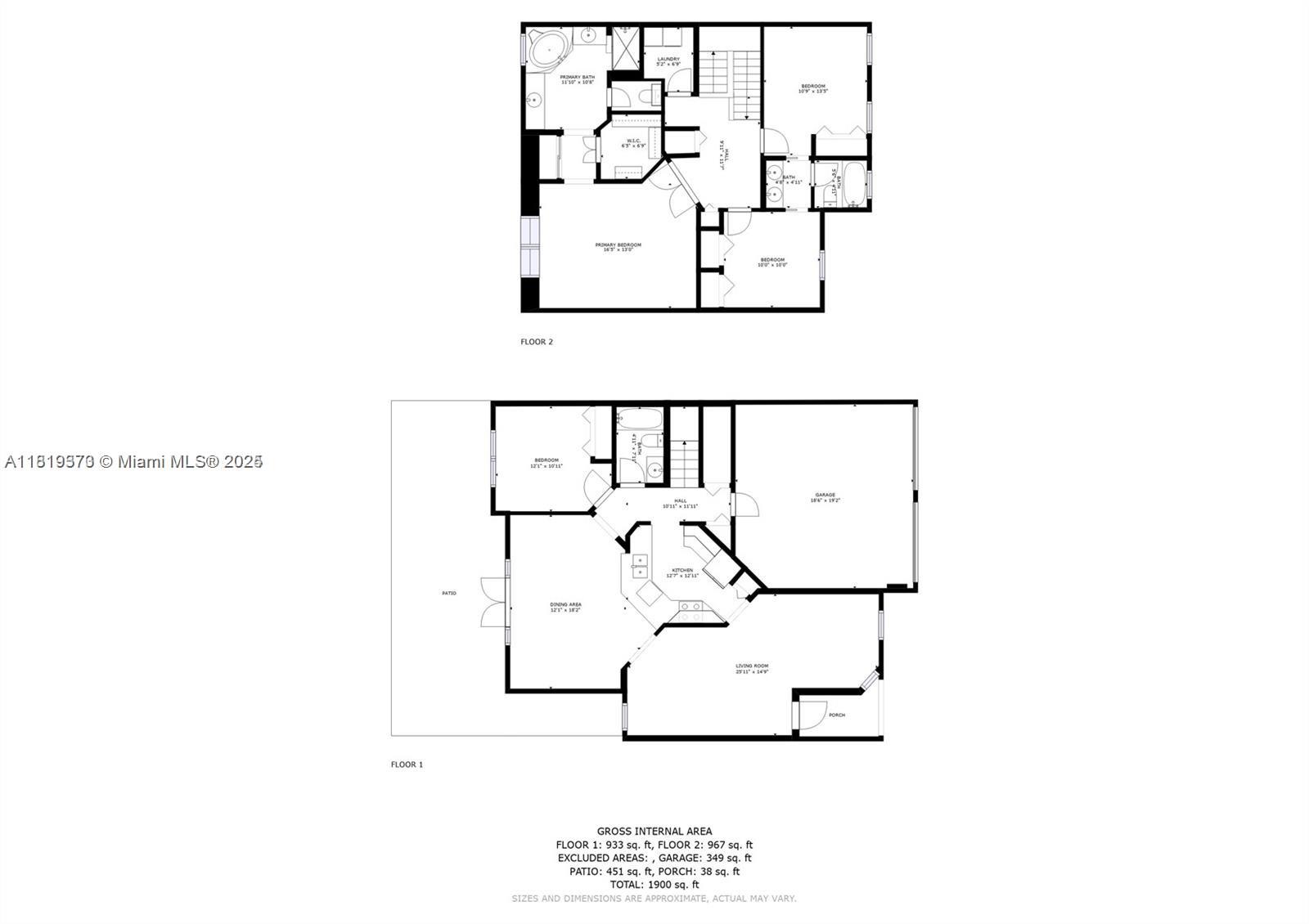
This stunning Kendall Breeze Villa "THE ROMA" 4 bedroom 3 full bathroom layout that spans a vast 2, 820 square feet. Upon entry, you'll be immediately impressed by the expansive family room, luxurious dining space, and chef-inspired kitchen finished with top-of-the-line appliances , French impact doors. On the ground level, you'll discover a spacious guest bedroom with a full bathroom. The primary suite and two additional bedrooms are located on the second level. The entire family can take advantage of an extensive range of amenities, including three spectacular resort-style pools, two well-equipped playgrounds, two clubhouses, and a state-of-the-art gym. In addition Costco within a mile, upscale shopping and dining and close to all major roads

Features

  • Amenities: Fitness Center,Other,Playground
  • Bedrooms: 4
  • Baths: 3 full
  • Style: Garden Apartment
  • Year Built: 2002
  • Garage: 2-car Guest,Two or More Spaces
  • Heating: Central,Electric
  • Cooling: Attic Fan,Central Air,Ceiling Fan(s),Electric
  • Approx Sq. Feet: 2,310
  • Est. Taxes: $8,921
  • HOA Fee: $231 Monthly
  • View: Garden
  • Elem. School: Devon-Aire
  • High School: Miami Killian
  • Pets Allowed: Yes
  • Pet Policy: Conditional,Yes
  • Appliances: Dryer,Dishwasher,Electric Range,Electric Water Heater,Disposal,Microwave,Refrigerator,Washer
  • MLS#: A11819373
  • Days on Market: 348 days
  • Website: https://www.raveis.com
    /prop/A11819373/12281sw121stter_miami_fl?source=qrflyer
This information is deemed reliable, but not guaranteed. The data relating to real estate displayed on this Site comes in part from the IDX Program of MIAMI Association of REALTORS. The information being provided is for consumers' personal, non-commercial use and may not be used for any purpose other than to identify prospective properties consumers may be interested in purchasing.

William Raveis Family of Services

Our family of companies partner in delivering quality services in a one-stop-shopping environment. Together, we integrate the most comprehensive real estate, mortgage and insurance services available to fulfill your specific real estate needs.

The Walsh TeamLuxury Properties Specialist

508.341.4904

walshteam@raveis.com

Our family of companies offer our clients a new level of full-service real estate. We shall:

  • Market your home to realize a quick sale at the best possible price
  • Place up to 20+ photos of your home on our website, raveis.com
  • Provide frequent communication and tracking reports showing the Internet views your home received on raveis.com
  • Showcase your home on raveis.com with a larger and more prominent format
  • Give you the full resources and strength of William Raveis Real Estate, Mortgage & Insurance and our cutting-edge technology

To learn more about our credentials, visit raveis.com today.

Andrew van DykVP, Mortgage Banker, William Raveis Mortgage, LLC

NMLS Mortgage Loan Originator ID 23716

781.490.5670

Andrew.vanDyk@raveis.com

Our Executive Mortgage Banker:

  • Is available to meet with you in our office, your home or office, evenings or weekends
  • Offers you pre-approval in minutes!
  • Provides a guaranteed closing date that meets your needs
  • Has access to hundreds of loan programs, all at competitive rates
  • Is in constant contact with a full processing, underwriting, and closing staff to ensure an efficient transaction

Paul BerriosRegional SVP, Insurance Sales Producer, William Raveis Insurance

978-337-3053

Paul.Berrios@raveis.com

Our Insurance Division:

  • Will Provide a home insurance quote within 24 hours
  • Offers full-service coverage such as Homeowner's, Auto, Life, Renter's, Flood and Valuable Items
  • Partners with major insurance companies including Chubb, Kemper Unitrin, The Hartford, Progressive,
    Encompass, Travelers, Fireman's Fund, Middleoak Mutual, One Beacon and American Reliable

12281 SW 121st Ter, Miami, FL, 33186

$650,000

The Walsh Team

Luxury Properties Specialist

William Raveis Real Estate

Phone: 508.341.4904

walshteam@raveis.com

Andrew van Dyk

VP, Mortgage Banker

William Raveis Mortgage, LLC

Phone: 781.490.5670

Andrew.vanDyk@raveis.com

NMLS Mortgage Loan Originator ID 23716

5/6 (30 Yr)
Adjustable Rate Conforming*
30 Year
Fixed-Rate Conforming
15 Year
Fixed-Rate Conforming
Loan Amount $520,000 $520,000 $520,000
Term 360 months 360 months 180 months
Initial Interest Rate** 6.250% 6.490% 5.750%
Interest Rate based on Index + Margin 8.125%
Annual Percentage Rate 6.474% 6.640% 5.972%
Monthly Tax Payment $743 $743 $743
H/O Insurance Payment $92 $92 $92
Initial Principal & Interest Pmt $3,202 $3,283 $4,318
Total Monthly Payment $4,037 $4,118 $5,153

* The Initial Interest Rate and Initial Principal & Interest Payment are fixed for the first and adjust every six months thereafter for the remainder of the loan term. The Interest Rate and annual percentage rate may increase after consummation. The Index for this product is the SOFR. The margin for this adjustable rate mortgage may vary with your unique credit history, and terms of your loan.

** Mortgage Rates are subject to change, loan amount and product restrictions and may not be available for your specific transaction at commitment or closing. Rates, and the margin for adjustable rate mortgages [if applicable], are subject to change without prior notice.

The rates and Annual Percentage Rate (APR) cited above may be only samples for the purpose of calculating payments and are based upon the following assumptions: minimum credit score of 740, 20% down payment (e.g. $20,000 down on a $100,000 purchase price), $1,950 in finance charges, and 30 days prepaid interest, 1 point, 30 day rate lock. The rates and APR will vary depending upon your unique credit history and the terms of your loan, e.g. the actual down payment percentages, points and fees for your transaction. Property taxes and homeowner's insurance are estimates and subject to change.  The Total Monthly Payment does not include the estimated HOA/Common Charge payment.