1321 Saint Johns Ave, Palatka, FL, 32177 | $249,000

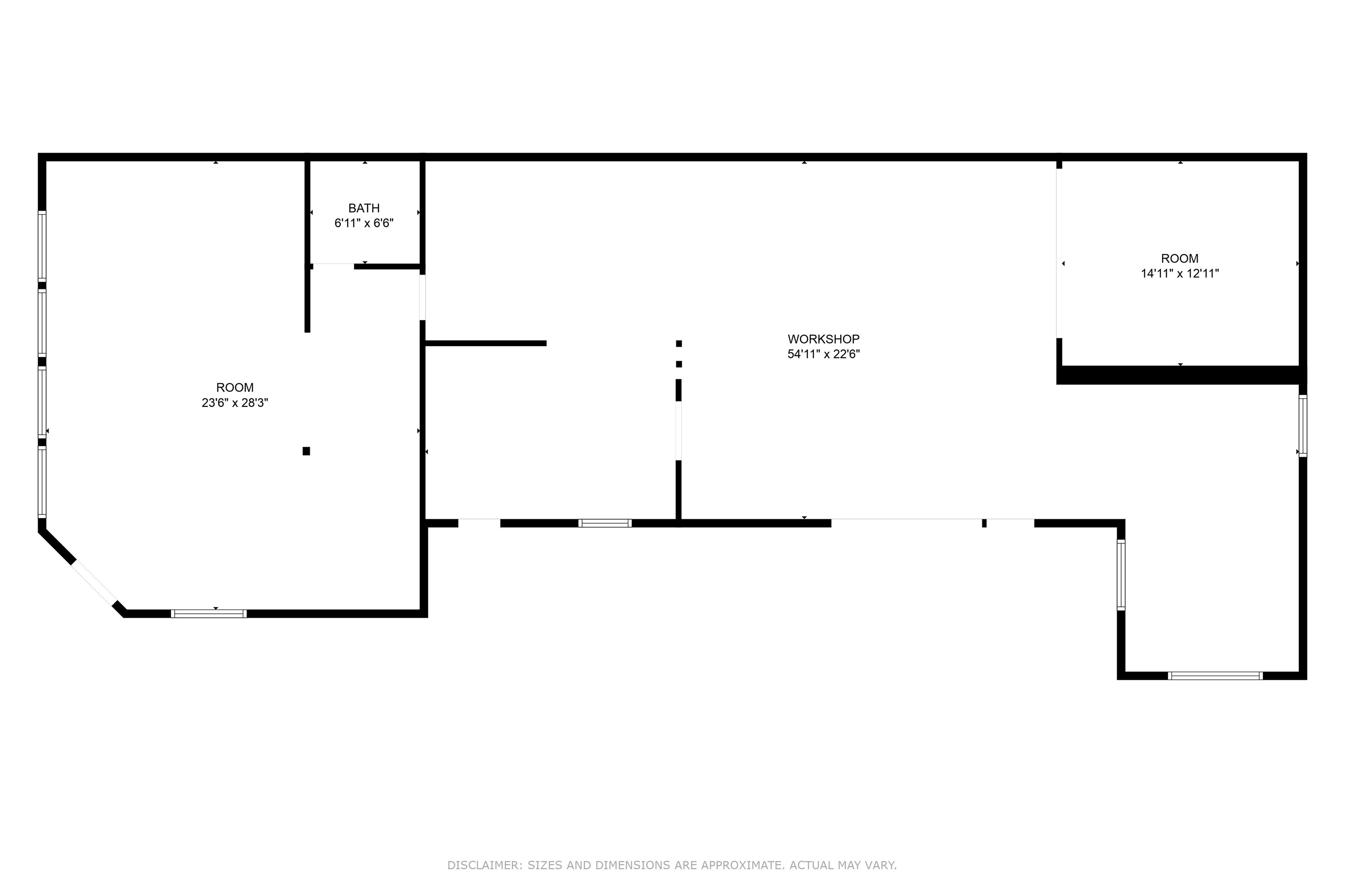
Welcome to 1321 St Johns Avenue; an exciting commercial opportunity in the heart of Palatka, offering endless potential for your business vision. This concrete and brick building on slab, has recently received a new roof (2025) upgrade on the front office portion of the building and is ready for your fresh ideas and renovation to make it perfect for your business. Boasting 2, 110 sq ft of open space and situated on two parcels totaling 0. 23 acres, the property features large windows front-facing St Johns Ave, perfect for high visibility and attracting walk-in traffic. The corner lot location just one block from Reid St and US-17 provides exceptional exposure and convenient access to commercial corridors and downtown making it an ideal site for a storefront, office, studio, or specialty retail. Zoned C-2 in Putnam County, this property supports a wide variety of commercial uses. With one bathroom in place and a highly adaptable layout, you can create whatever fits best for you. Cash offers preferred. Seize this chance to establish or expand your business in a prime Palatka location. The listing includes two parcels: #42-10-27-6850-2530-0051 & #42-10-27-6850-2530-0050

Features

  • Lot Size: 3485
  • Year Built: 1957
  • Acreage: 0.23
  • Est. Taxes: $1,052
  • MLS#: 253467
  • Days on Market: 302 days
  • Website: https://www.raveis.com
    /prop/253467/1321saintjohnsave_palatka_fl?source=qrflyer
Copyright © 2026  St Augustine & St. Johns County Board of REALTORS Realtor® MLS. All rights reserved
This information is deemed reliable, but not guaranteed. The data relating to real estate displayed on this Site comes in part from the IDX Program of St Augustine & St. Johns County Board of REALTORS. The information being provided is for consumers' personal, non-commercial use and may not be used for any purpose other than to identify prospective properties consumers may be interested in purchasing.
Listing courtesy of GREAT EXPECTATIONS REALTY

William Raveis Family of Services

Our family of companies partner in delivering quality services in a one-stop-shopping environment. Together, we integrate the most comprehensive real estate, mortgage and insurance services available to fulfill your specific real estate needs.

Customer Service

888.699.8876

Contact@raveis.com

Our family of companies offer our clients a new level of full-service real estate. We shall:

  • Market your home to realize a quick sale at the best possible price
  • Place up to 20+ photos of your home on our website, raveis.com
  • Provide frequent communication and tracking reports showing the Internet views your home received on raveis.com
  • Showcase your home on raveis.com with a larger and more prominent format
  • Give you the full resources and strength of William Raveis Real Estate, Mortgage & Insurance and our cutting-edge technology

To learn more about our credentials, visit raveis.com today.

Melissa CohnRVP, Mortgage Banker, William Raveis Mortgage, LLC

NMLS Mortgage Loan Originator ID 16953

917.838.7300

Melissa.Cohn@raveis.com

Our Executive Mortgage Banker:

  • Is available to meet with you in our office, your home or office, evenings or weekends
  • Offers you pre-approval in minutes!
  • Provides a guaranteed closing date that meets your needs
  • Has access to hundreds of loan programs, all at competitive rates
  • Is in constant contact with a full processing, underwriting, and closing staff to ensure an efficient transaction

Pedro DelgadilloInsurance Sales Director, William Raveis Insurance

305.922.5393

Pedro.Delgadillo@raveis.com

Our Insurance Division:

  • Will Provide a home insurance quote within 24 hours
  • Offers full-service coverage such as Homeowner's, Auto, Life, Renter's, Flood and Valuable Items
  • Partners with major insurance companies including Chubb, Kemper Unitrin, The Hartford, Progressive,
    Encompass, Travelers, Fireman's Fund, Middleoak Mutual, One Beacon and American Reliable

1321 Saint Johns Ave, Palatka, FL, 32177

$249,000

Customer Service

William Raveis Real Estate

Phone: 888.699.8876

Contact@raveis.com

Melissa Cohn

RVP, Mortgage Banker

William Raveis Mortgage, LLC

Phone: 917.838.7300

Melissa.Cohn@raveis.com

NMLS Mortgage Loan Originator ID 16953

5/6 (30 Yr)
Adjustable Rate Conforming*
30 Year
Fixed-Rate Conforming
15 Year
Fixed-Rate Conforming
Loan Amount $199,200 $199,200 $199,200
Term 360 months 360 months 180 months
Initial Interest Rate** 5.875% 6.250% 5.375%
Interest Rate based on Index + Margin 8.125%
Annual Percentage Rate 6.333% 6.419% 5.668%
Monthly Tax Payment $88 $88 $88
H/O Insurance Payment $75 $75 $75
Initial Principal & Interest Pmt $1,178 $1,227 $1,614
Total Monthly Payment $1,341 $1,390 $1,777

* The Initial Interest Rate and Initial Principal & Interest Payment are fixed for the first and adjust every six months thereafter for the remainder of the loan term. The Interest Rate and annual percentage rate may increase after consummation. The Index for this product is the SOFR. The margin for this adjustable rate mortgage may vary with your unique credit history, and terms of your loan.

** Mortgage Rates are subject to change, loan amount and product restrictions and may not be available for your specific transaction at commitment or closing. Rates, and the margin for adjustable rate mortgages [if applicable], are subject to change without prior notice.

The rates and Annual Percentage Rate (APR) cited above may be only samples for the purpose of calculating payments and are based upon the following assumptions: minimum credit score of 740, 20% down payment (e.g. $20,000 down on a $100,000 purchase price), $1,950 in finance charges, and 30 days prepaid interest, 1 point, 30 day rate lock. The rates and APR will vary depending upon your unique credit history and the terms of your loan, e.g. the actual down payment percentages, points and fees for your transaction. Property taxes and homeowner's insurance are estimates and subject to change.