318 Sheep Pasture Road, E. Setauket (East Setauket), NY, 11733 | $949,999

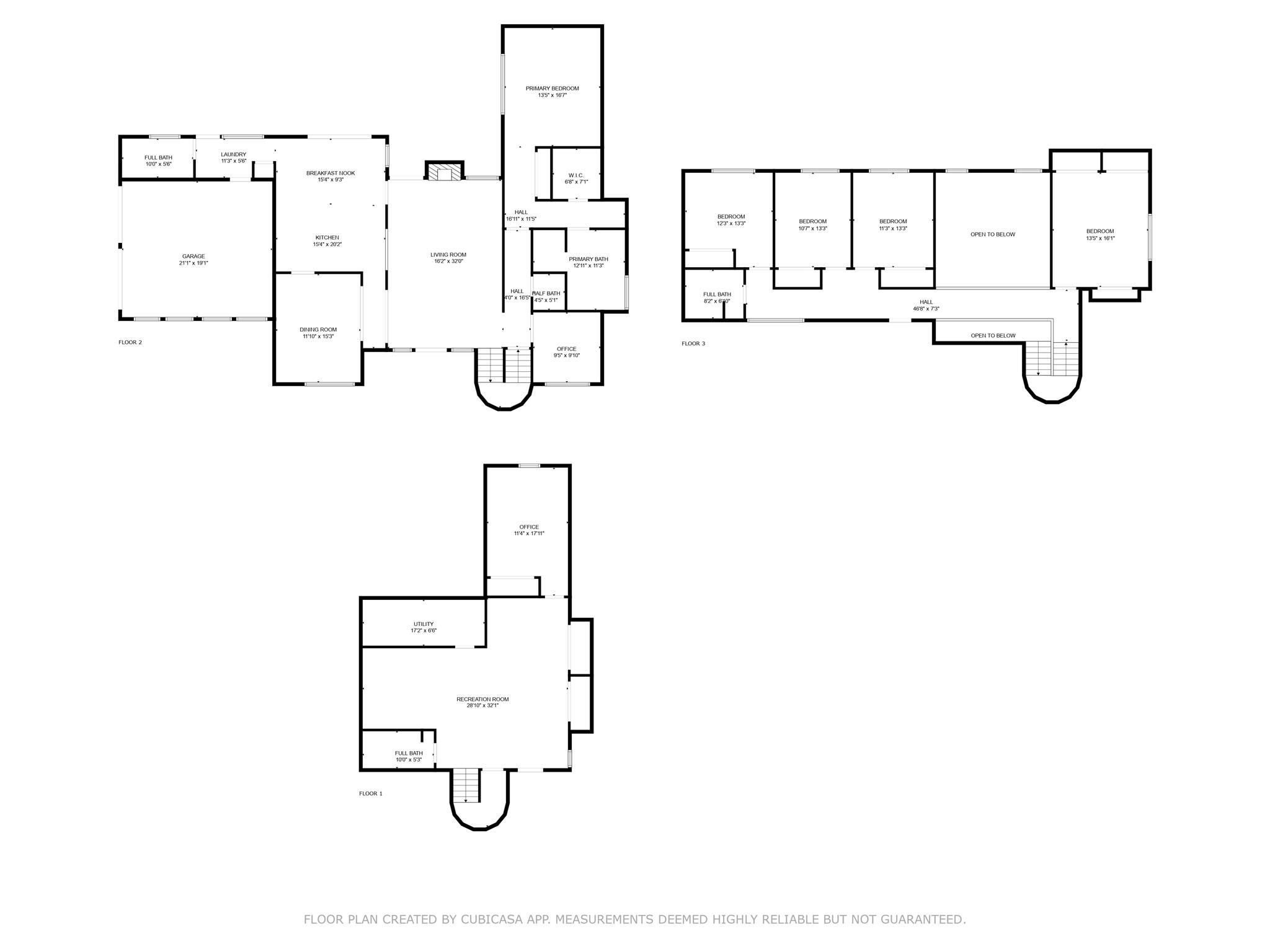
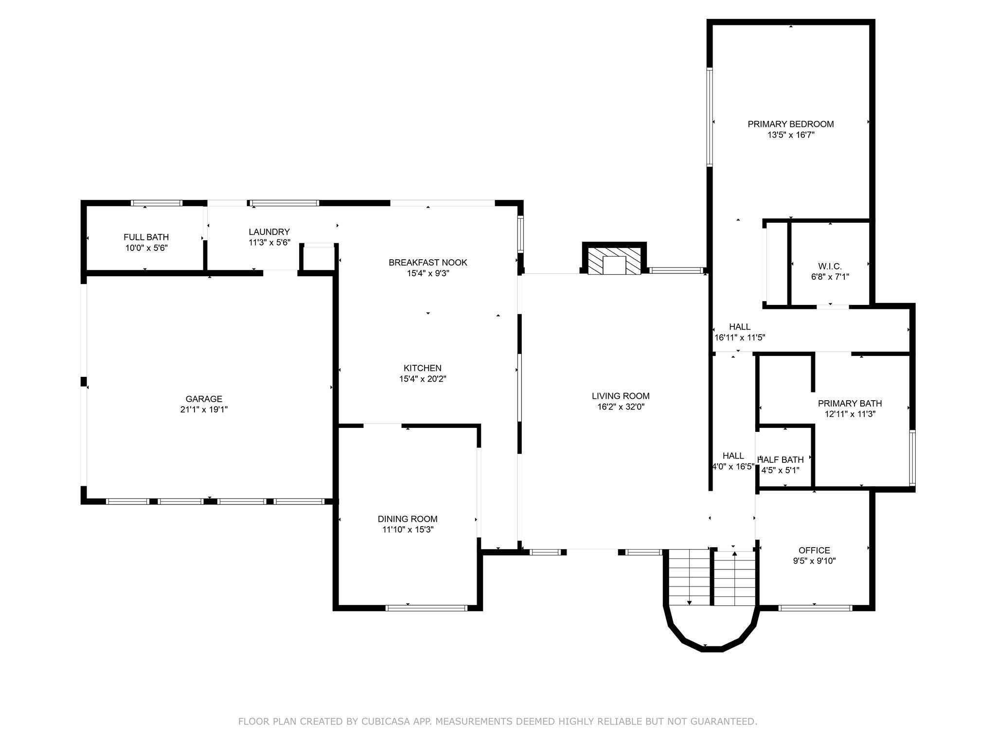
Welcome to this beautifully updated 5 Bedroom, 4. 5 Bathroom Contemporary Colonial, ideally situated in the highly sought-after Three Village School District. Step inside to find a completely renovated eat-in kitchen, featuring a large center island, gas cooking, stainless steel appliances, and plenty of custom cabinetry – a true chef’s dream and perfect for entertaining. This floor also boasts a large living room with vaulted ceilings and plenty of windows for ample amounts of light. A formal dining room and an office/sitting room, a full bathroom off the backdoor used frequently after the pool, and a separate powder room. The first-floor primary suite offers convenience and comfort, with a spacious walk-in closet and a luxurious en-suite bathroom boasting a jacuzzi tub and a separate shower. Upstairs, you’ll find 4 additional well-sized bedrooms and a recently renovated bathroom with sleek, modern finishes throughout. The finished basement adds incredible value and versatility, featuring a large recreation/living area, a full renovated bathroom, a kitchenette, and a dedicated office space—perfect for guests, remote work, or extended family. Step outside to your private backyard retreat with a spacious patio, ideal for summer entertaining, and a large in-ground pool for endless fun and relaxation. A generously sized shed at the rear of the property provides ample storage for outdoor equipment or hobbies. This move-in-ready home has everything you’ve been looking for. Location, space, and modern amenities. Don’t miss your opportunity to own this East Setauket gem!

Features

  • Town: E. Setauket
  • Rooms: 12
  • Bedrooms: 5
  • Baths: 4 full / 1 half
  • Style: Colonial, Contemporary
  • Year Built: 1987
  • Garage: 2-car
  • Heating: Baseboard
  • Cooling: Central Air
  • Basement: Finished, Full
  • Approx Sq. Feet: 3,400
  • Acreage: 0.52
  • Est. Taxes: $20,183
  • Elem. School: Minnesauke Elementary School
  • Middle School: Paul J Gelinas Junior High School
  • High School: Ward Melville Senior High School
  • School District: Three Village
  • Pool: Yes
  • Appliances: Dishwasher, Dryer, Gas Range, Microwave, Stainless Steel Appliance(s), Washer, Gas Water Heater
  • MLS#: 875462
  • Days on Market: 65 days
  • Website: https://www.raveis.com
    /prop/875462/318sheeppastureroad_esetauket_ny?source=qrflyer
Listing information has been assembled from various sources of varying degrees of reliability. Any information critical to the buying decision should be independently verified.

William Raveis Family of Services

Our family of companies partner in delivering quality services in a one-stop-shopping environment. Together, we integrate the most comprehensive real estate, mortgage and insurance services available to fulfill your specific real estate needs.

Liz McCarron TeamSales Vice President

617.347.4140

LizMcCarronTeam@raveis.com

Our family of companies offer our clients a new level of full-service real estate. We shall:

  • Market your home to realize a quick sale at the best possible price
  • Place up to 20+ photos of your home on our website, raveis.com
  • Provide frequent communication and tracking reports showing the Internet views your home received on raveis.com
  • Showcase your home on raveis.com with a larger and more prominent format
  • Give you the full resources and strength of William Raveis Real Estate, Mortgage & Insurance and our cutting-edge technology

To learn more about our credentials, visit raveis.com today.

Michael CartierVP, Mortgage Banker, William Raveis Mortgage, LLC

NMLS Mortgage Loan Originator ID 1017266

508.335.8179

Michael.Cartier@raveis.com

Our Executive Mortgage Banker:

  • Is available to meet with you in our office, your home or office, evenings or weekends
  • Offers you pre-approval in minutes!
  • Provides a guaranteed closing date that meets your needs
  • Has access to hundreds of loan programs, all at competitive rates
  • Is in constant contact with a full processing, underwriting, and closing staff to ensure an efficient transaction

Joel FanjoyRegional SVP Insurance Sales, William Raveis Insurance

617.320.5687

Joel.Fanjoy@raveis.com

Our Insurance Division:

  • Will Provide a home insurance quote within 24 hours
  • Offers full-service coverage such as Homeowner's, Auto, Life, Renter's, Flood and Valuable Items
  • Partners with major insurance companies including Chubb, Kemper Unitrin, The Hartford, Progressive,
    Encompass, Travelers, Fireman's Fund, Middleoak Mutual, One Beacon and American Reliable

318 Sheep Pasture Road, E. Setauket (East Setauket), NY, 11733

$949,999

Liz McCarron Team

Sales Vice President

William Raveis Real Estate

Phone: 617.347.4140

LizMcCarronTeam@raveis.com

Michael Cartier

VP, Mortgage Banker

William Raveis Mortgage, LLC

Phone: 508.335.8179

Michael.Cartier@raveis.com

NMLS Mortgage Loan Originator ID 1017266

5/6 (30 Yr)
Adjustable Rate Jumbo*
30 Year
Fixed-Rate Jumbo
15 Year
Fixed-Rate Jumbo
Loan Amount $759,999 $759,999 $759,999
Term 360 months 360 months 180 months
Initial Interest Rate** 4.875% 5.750% 5.500%
Interest Rate based on Index + Margin 8.125%
Annual Percentage Rate 5.925% 5.858% 5.681%
Monthly Tax Payment $1,682 $1,682 $1,682
H/O Insurance Payment $92 $92 $92
Initial Principal & Interest Pmt $4,022 $4,435 $6,210
Total Monthly Payment $5,796 $6,209 $7,984

* The Initial Interest Rate and Initial Principal & Interest Payment are fixed for the first and adjust every six months thereafter for the remainder of the loan term. The Interest Rate and annual percentage rate may increase after consummation. The Index for this product is the SOFR. The margin for this adjustable rate mortgage may vary with your unique credit history, and terms of your loan.

** Mortgage Rates are subject to change, loan amount and product restrictions and may not be available for your specific transaction at commitment or closing. Rates, and the margin for adjustable rate mortgages [if applicable], are subject to change without prior notice.

The rates and Annual Percentage Rate (APR) cited above may be only samples for the purpose of calculating payments and are based upon the following assumptions: minimum credit score of 740, 20% down payment (e.g. $20,000 down on a $100,000 purchase price), $1,950 in finance charges, and 30 days prepaid interest, 1 point, 30 day rate lock. The rates and APR will vary depending upon your unique credit history and the terms of your loan, e.g. the actual down payment percentages, points and fees for your transaction. Property taxes and homeowner's insurance are estimates and subject to change.