1 E Court Street, Hudson, NY, 12534 | $1,475,000

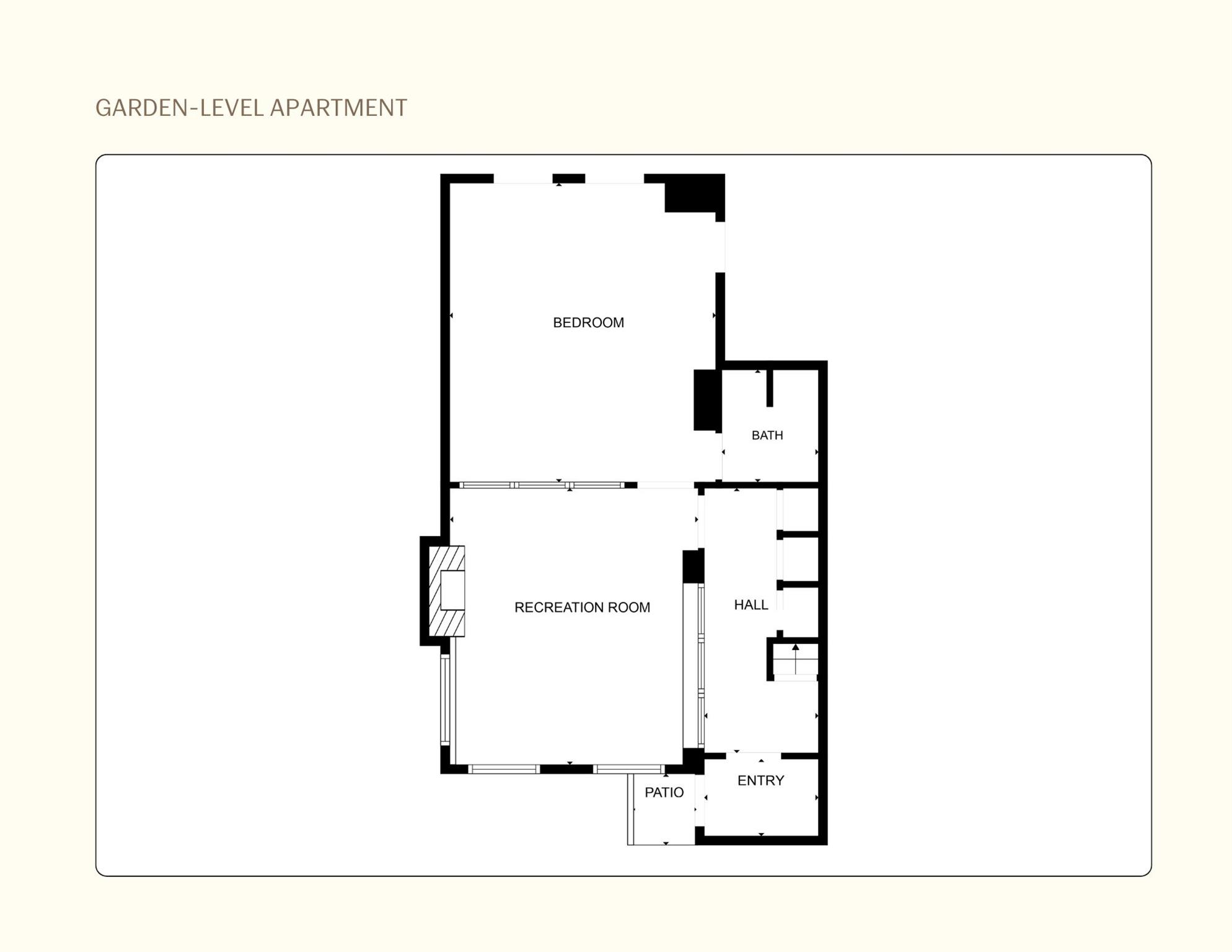
Welcome to Winslowe Townhouse, a stately brick residence dating back to 1842, set on one of Hudson’s most picturesque parks. This coveted corner location—with a private garden and off-street parking—neighbors the historic courthouse and two landmark churches, offering a rare sense of place just a few blocks from the restaurants, galleries, and shops of Warren Street. Spanning four thoughtfully renovated stories, the turn-key property includes a separate garden-level apartment that can continue as an income-producing rental or be seamlessly integrated into a grand single-family home. Behind the striking sun-kissed facade with its bracketed cornice crown, the home’s rich history is beautifully preserved in period details such as crown molding, exposed brick, and original wood floors. The main entrance opens into a gracious front parlor with tall windows and a decorative fireplace, followed by the primary suite—a spacious retreat featuring a full en suite bath, generous closets, and direct garden access. Up the winding staircase, the second floor offers a sunlit eat-in kitchen with AGA appliances, custom cabinetry, and more exposed brick, along with an adjacent living area and a peaceful sunroom—ideal for reading or morning coffee. The top floor hosts two additional bedrooms, each with its own bathroom and treetop views of the square. Climbing hydrangea and pergola frame the private backyard patio, which includes an outdoor kitchen, making it the perfect spot for entertaining and summer enjoyment. On the garden level, a private apartment with its own entrance provides flexibility for guests, extended family, or short-term rentals. The space features a large bedroom with double doors that open to a private patio area, a second flexible room, a full bath, and a kitchenette. Vintage tile, a decorative fireplace, and abundant natural light lend the apartment its own distinct charm. Winslowe Townhouse offers a rare opportunity to own a piece of Hudson’s architectural legacy with modern comforts already in place. Whether you’re seeking a full-time residence, a weekend escape, or an investment with flexible rental potential, this turnkey property delivers both beauty and convenience—located just blocks from Hudson’s vibrant food, art, and design scene, and a short walk to the Amtrak station for an easy two-hour ride to New York City.

Features

  • Rooms: 13
  • Bedrooms: 4
  • Baths: 4 full
  • Laundry: Laundry Room
  • Style: Victorian
  • Year Built: 1842
  • Heating: Baseboard, Radiant, Steam
  • Cooling: Central Air, Wall/Window Unit(s)
  • Basement: Finished, Full, Walk-Out Access
  • Approx Sq. Feet: 2,904
  • Acreage: 0.06
  • Est. Taxes: $16,860
  • Lot Desc: Corner Lot
  • View: Neighborhood
  • Elem. School: Contact Agent
  • High School: Contact Agent
  • School District: Hudson
  • Appliances: Convection Oven, Dishwasher, Disposal, Dryer, Gas Range, Microwave, Oven, Refrigerator, Washer
  • MLS#: 869450
  • Days on Market: 153 days
  • Website: https://www.raveis.com
    /eprop/869450/1ecourtstreet_hudson_ny?source=qrflyer
Listing information has been assembled from various sources of varying degrees of reliability. Any information critical to the buying decision should be independently verified.Listing courtesy of HOULIHAN LAWRENCE, INC   Phone: 518-822-0300

William Raveis Family of Services

Our family of companies partner in delivering quality services in a one-stop-shopping environment. Together, we integrate the most comprehensive real estate, mortgage and insurance services available to fulfill your specific real estate needs.

Customer Service

888.699.8876

Contact@raveis.com

Our family of companies offer our clients a new level of full-service real estate. We shall:

  • Market your home to realize a quick sale at the best possible price
  • Place up to 20+ photos of your home on our website, raveis.com
  • Provide frequent communication and tracking reports showing the Internet views your home received on raveis.com
  • Showcase your home on raveis.com with a larger and more prominent format
  • Give you the full resources and strength of William Raveis Real Estate, Mortgage & Insurance and our cutting-edge technology

To learn more about our credentials, visit raveis.com today.

Sarah DeFlorioVP, Mortgage Banker, William Raveis Mortgage, LLC

NMLS Mortgage Loan Originator ID 1880936

347.223.0992

Sarah.DeFlorio@Raveis.com

Our Executive Mortgage Banker:

  • Is available to meet with you in our office, your home or office, evenings or weekends
  • Offers you pre-approval in minutes!
  • Provides a guaranteed closing date that meets your needs
  • Has access to hundreds of loan programs, all at competitive rates
  • Is in constant contact with a full processing, underwriting, and closing staff to ensure an efficient transaction

Ryan FortierInsurance Sales Director, William Raveis Insurance

516.739.7731

Ryan.Fortier@raveis.com

Our Insurance Division:

  • Will Provide a home insurance quote within 24 hours
  • Offers full-service coverage such as Homeowner's, Auto, Life, Renter's, Flood and Valuable Items
  • Partners with major insurance companies including Chubb, Kemper Unitrin, The Hartford, Progressive,
    Encompass, Travelers, Fireman's Fund, Middleoak Mutual, One Beacon and American Reliable

1 E Court Street, Hudson, NY, 12534

$1,475,000

Customer Service

William Raveis Real Estate

Phone: 888.699.8876

Contact@raveis.com

Sarah DeFlorio

VP, Mortgage Banker

William Raveis Mortgage, LLC

Phone: 347.223.0992

Sarah.DeFlorio@Raveis.com

NMLS Mortgage Loan Originator ID 1880936

5/6 (30 Yr)
Adjustable Rate Jumbo*
30 Year
Fixed-Rate Jumbo
15 Year
Fixed-Rate Jumbo
Loan Amount $1,180,000 $1,180,000 $1,180,000
Term 360 months 360 months 180 months
Initial Interest Rate** 5.125% 6.000% 5.750%
Interest Rate based on Index + Margin 8.125%
Annual Percentage Rate 6.246% 6.110% 5.952%
Monthly Tax Payment $1,405 $1,405 $1,405
H/O Insurance Payment $125 $125 $125
Initial Principal & Interest Pmt $6,425 $7,075 $9,799
Total Monthly Payment $7,955 $8,605 $11,329

* The Initial Interest Rate and Initial Principal & Interest Payment are fixed for the first and adjust every six months thereafter for the remainder of the loan term. The Interest Rate and annual percentage rate may increase after consummation. The Index for this product is the SOFR. The margin for this adjustable rate mortgage may vary with your unique credit history, and terms of your loan.

** Mortgage Rates are subject to change, loan amount and product restrictions and may not be available for your specific transaction at commitment or closing. Rates, and the margin for adjustable rate mortgages [if applicable], are subject to change without prior notice.

The rates and Annual Percentage Rate (APR) cited above may be only samples for the purpose of calculating payments and are based upon the following assumptions: minimum credit score of 740, 20% down payment (e.g. $20,000 down on a $100,000 purchase price), $1,950 in finance charges, and 30 days prepaid interest, 1 point, 30 day rate lock. The rates and APR will vary depending upon your unique credit history and the terms of your loan, e.g. the actual down payment percentages, points and fees for your transaction. Property taxes and homeowner's insurance are estimates and subject to change.