43 Casey Lane, Mt. Sinai (Mount Sinai), NY, 11766 | $1,649,900

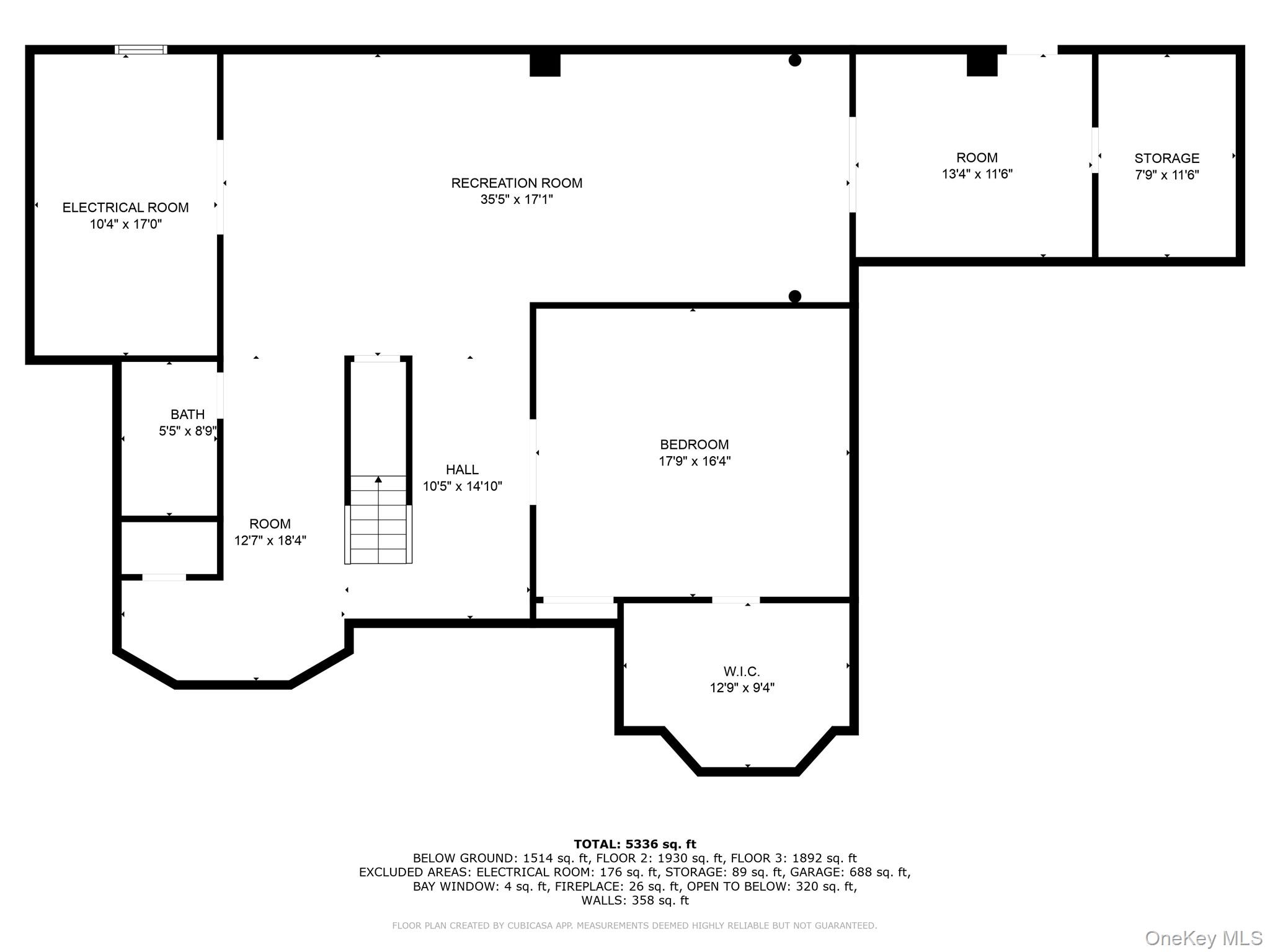
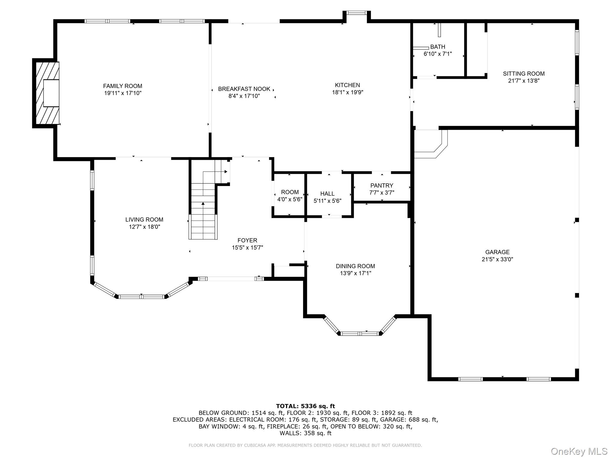
Welcome to this magnificent home in prestigious Mount Sinai. This home features a front porch with lighting and front waterfall. Enter into a two-story foyer through the double glass doors from Italy. This leads into the formal living room, large formal dining room with tray ceilings and into the magnificent new kitchen with an island. The kitchen has granite countertops, Viking stainless steel appliances, six burner stove, two porcelain Kohler sinks with stainless steel faucets, five decorative light fixtures, walk in pantry. From the kitchen to the dinngroom there is a butlers pantry with Viking wine fridge, cabinets with glass doors. There is a hallway leading to an office with tongue and groove and full bath. There is radiant heat in kitchen, office, hall and baths. From the kitchen, look into your large den with fireplace and Crawford ceilings. There are sliders leading to the yard. Climb the beautiful staircase to the master bedroom suite with white carpet, tray ceilings, 2 walk-in closets (one has access to attic) full bath with Jacuzzi, full shower, new vanities and radiant heat. There are 3 additional large bedrooms and a full bath with double sink, stall shower, and linen closet. The laundry room is upstairs with whirlpool washer, and dryer, table with wood counter and cabinets. There is a full finished basement with an outside entrance. The basement offers a theater room with projector & stadium seating, bedroom, full bath also storage room with Control4 smart system & dual 150 amp panels, utility room with 100 gallon hot water heater. Now go relax in your oasis backyard featuring a 20' x 40' deck with an Altima stainless steel grill, Emerson mini fridge & sink. Float away in the 45' x 45’ heated L shaped inground pool with a rock formation waterfall, outdoor Jacuzzi, pool house with full bath & sitting are and full basement for storage , gas fire pit. There are fire torches and lighting under the trees and around the pool. This home has new CAC, raised panel doors, and molding throughout. There is a 3 car garage, IGS, outdoor speakers, circular all brick driveway, Unpack and enjoy your Oasis. You’re around the corner from Heritage Park, a short ride to Port Jefferson Village, the LIRR, Port Jefferson ferry, Cedar Beach, and great restaurants and shopping.

Features

  • Town: Mt. Sinai
  • Rooms: 9
  • Bedrooms: 4
  • Baths: 4 full / 1 half
  • Style: Victorian
  • Year Built: 2001
  • Garage: 3-car
  • Heating: Oil, Propane, Radiant, Radiant Floor
  • Cooling: Central Air
  • Basement: Finished, Full
  • Approx Sq. Feet: 4,400
  • Acreage: 0.81
  • Est. Taxes: $25,928
  • Elem. School: Mt Sinai Elementary School
  • Middle School: Mt Sinai Middle School
  • High School: ROBERT M GRABLE JR MOUNT SINAI HIGH SCHOOL
  • School District: Mount Sinai
  • Pool: In Ground, Salt Water
  • Appliances: Dishwasher, Dryer, Electric Oven, Freezer, Gas Range, Microwave, Refrigerator, Stainless Steel Appliance(s), Washer, Oil Water Heater, Wine Refrigerator
  • MLS#: 872175
  • Days on Market: 111 days
  • Website: https://www.raveis.com
    /eprop/872175/43caseylane_mtsinai_ny?source=qrflyer
Listing information has been assembled from various sources of varying degrees of reliability. Any information critical to the buying decision should be independently verified.Listing courtesy of Signature Premier Properties   Phone: 631-585-8400

William Raveis Family of Services

Our family of companies partner in delivering quality services in a one-stop-shopping environment. Together, we integrate the most comprehensive real estate, mortgage and insurance services available to fulfill your specific real estate needs.

Customer Service

888.699.8876

Contact@raveis.com

Our family of companies offer our clients a new level of full-service real estate. We shall:

  • Market your home to realize a quick sale at the best possible price
  • Place up to 20+ photos of your home on our website, raveis.com
  • Provide frequent communication and tracking reports showing the Internet views your home received on raveis.com
  • Showcase your home on raveis.com with a larger and more prominent format
  • Give you the full resources and strength of William Raveis Real Estate, Mortgage & Insurance and our cutting-edge technology

To learn more about our credentials, visit raveis.com today.

Sarah DeFlorioVP, Mortgage Banker, William Raveis Mortgage, LLC

NMLS Mortgage Loan Originator ID 1880936

347.223.0992

Sarah.DeFlorio@Raveis.com

Our Executive Mortgage Banker:

  • Is available to meet with you in our office, your home or office, evenings or weekends
  • Offers you pre-approval in minutes!
  • Provides a guaranteed closing date that meets your needs
  • Has access to hundreds of loan programs, all at competitive rates
  • Is in constant contact with a full processing, underwriting, and closing staff to ensure an efficient transaction

Ryan FortierInsurance Sales Director, William Raveis Insurance

516.739.7731

Ryan.Fortier@raveis.com

Our Insurance Division:

  • Will Provide a home insurance quote within 24 hours
  • Offers full-service coverage such as Homeowner's, Auto, Life, Renter's, Flood and Valuable Items
  • Partners with major insurance companies including Chubb, Kemper Unitrin, The Hartford, Progressive,
    Encompass, Travelers, Fireman's Fund, Middleoak Mutual, One Beacon and American Reliable

43 Casey Lane, Mt. Sinai (Mount Sinai), NY, 11766

$1,649,900

Customer Service

William Raveis Real Estate

Phone: 888.699.8876

Contact@raveis.com

Sarah DeFlorio

VP, Mortgage Banker

William Raveis Mortgage, LLC

Phone: 347.223.0992

Sarah.DeFlorio@Raveis.com

NMLS Mortgage Loan Originator ID 1880936

5/6 (30 Yr)
Adjustable Rate Jumbo*
30 Year
Fixed-Rate Jumbo
15 Year
Fixed-Rate Jumbo
Loan Amount $1,319,920 $1,319,920 $1,319,920
Term 360 months 360 months 180 months
Initial Interest Rate** 5.125% 6.000% 5.875%
Interest Rate based on Index + Margin 8.125%
Annual Percentage Rate 6.246% 6.133% 6.038%
Monthly Tax Payment $2,161 $2,161 $2,161
H/O Insurance Payment $125 $125 $125
Initial Principal & Interest Pmt $7,187 $7,914 $11,049
Total Monthly Payment $9,473 $10,200 $13,335

* The Initial Interest Rate and Initial Principal & Interest Payment are fixed for the first and adjust every six months thereafter for the remainder of the loan term. The Interest Rate and annual percentage rate may increase after consummation. The Index for this product is the SOFR. The margin for this adjustable rate mortgage may vary with your unique credit history, and terms of your loan.

** Mortgage Rates are subject to change, loan amount and product restrictions and may not be available for your specific transaction at commitment or closing. Rates, and the margin for adjustable rate mortgages [if applicable], are subject to change without prior notice.

The rates and Annual Percentage Rate (APR) cited above may be only samples for the purpose of calculating payments and are based upon the following assumptions: minimum credit score of 740, 20% down payment (e.g. $20,000 down on a $100,000 purchase price), $1,950 in finance charges, and 30 days prepaid interest, 1 point, 30 day rate lock. The rates and APR will vary depending upon your unique credit history and the terms of your loan, e.g. the actual down payment percentages, points and fees for your transaction. Property taxes and homeowner's insurance are estimates and subject to change.