14 Anderson Street, West Rutland, VT, 05777 | $183,000

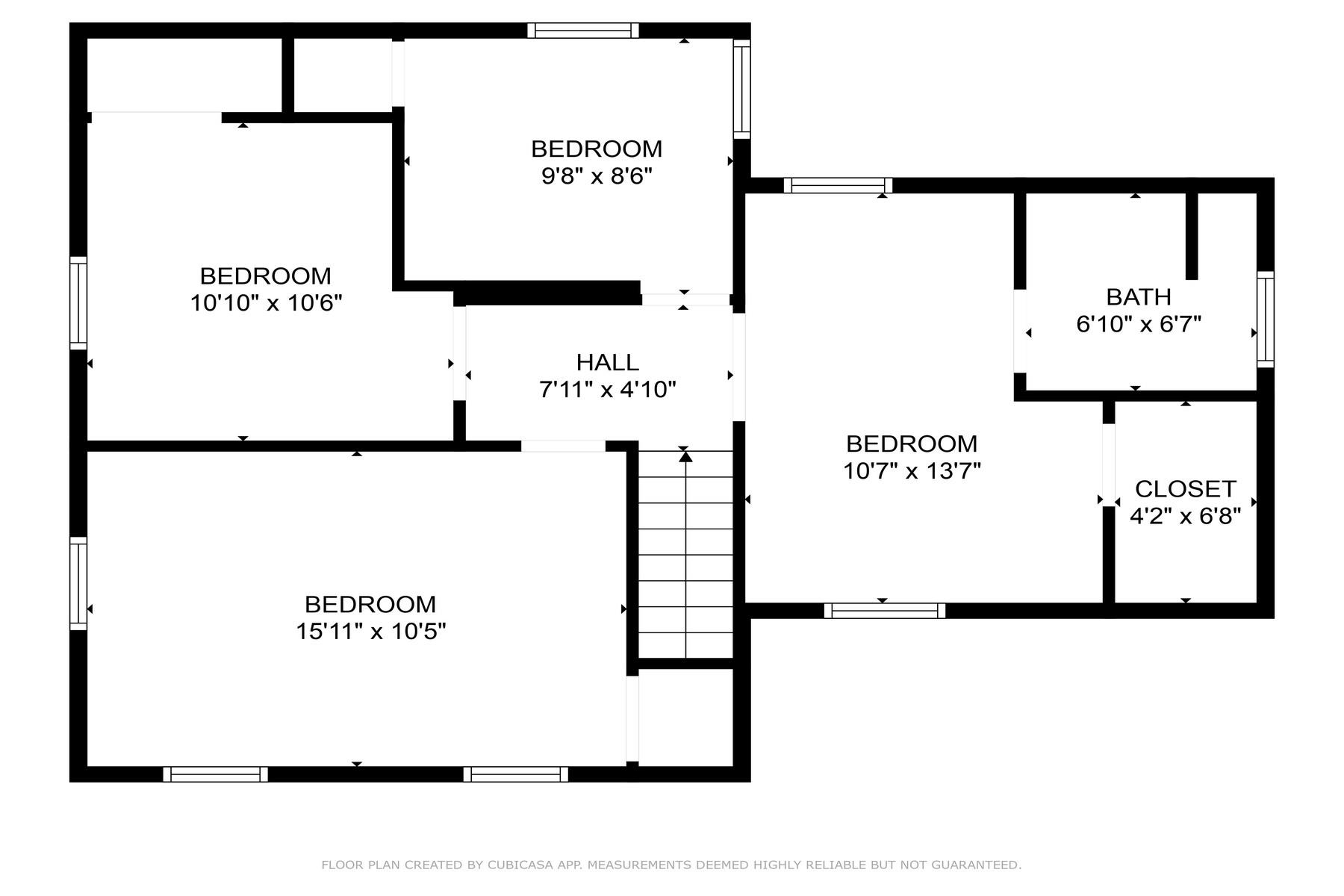
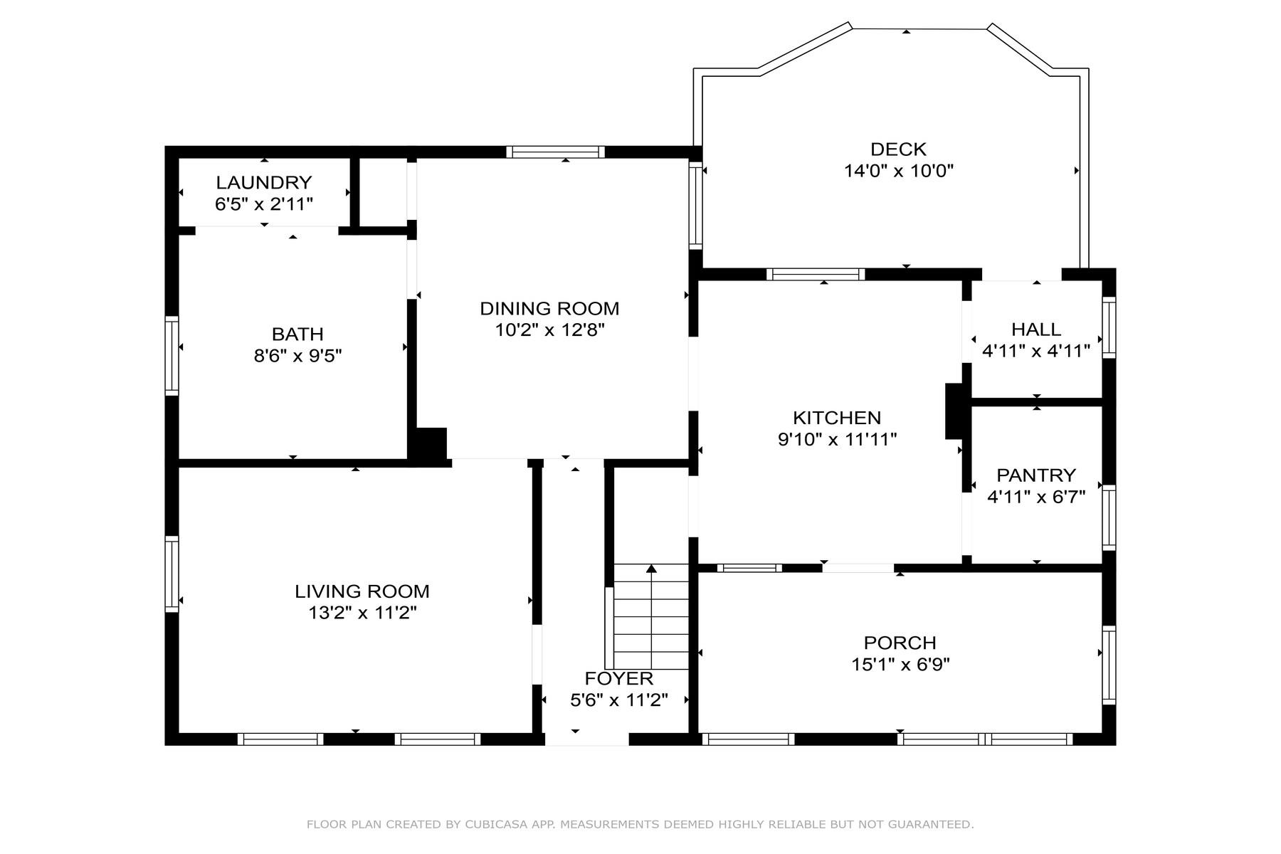
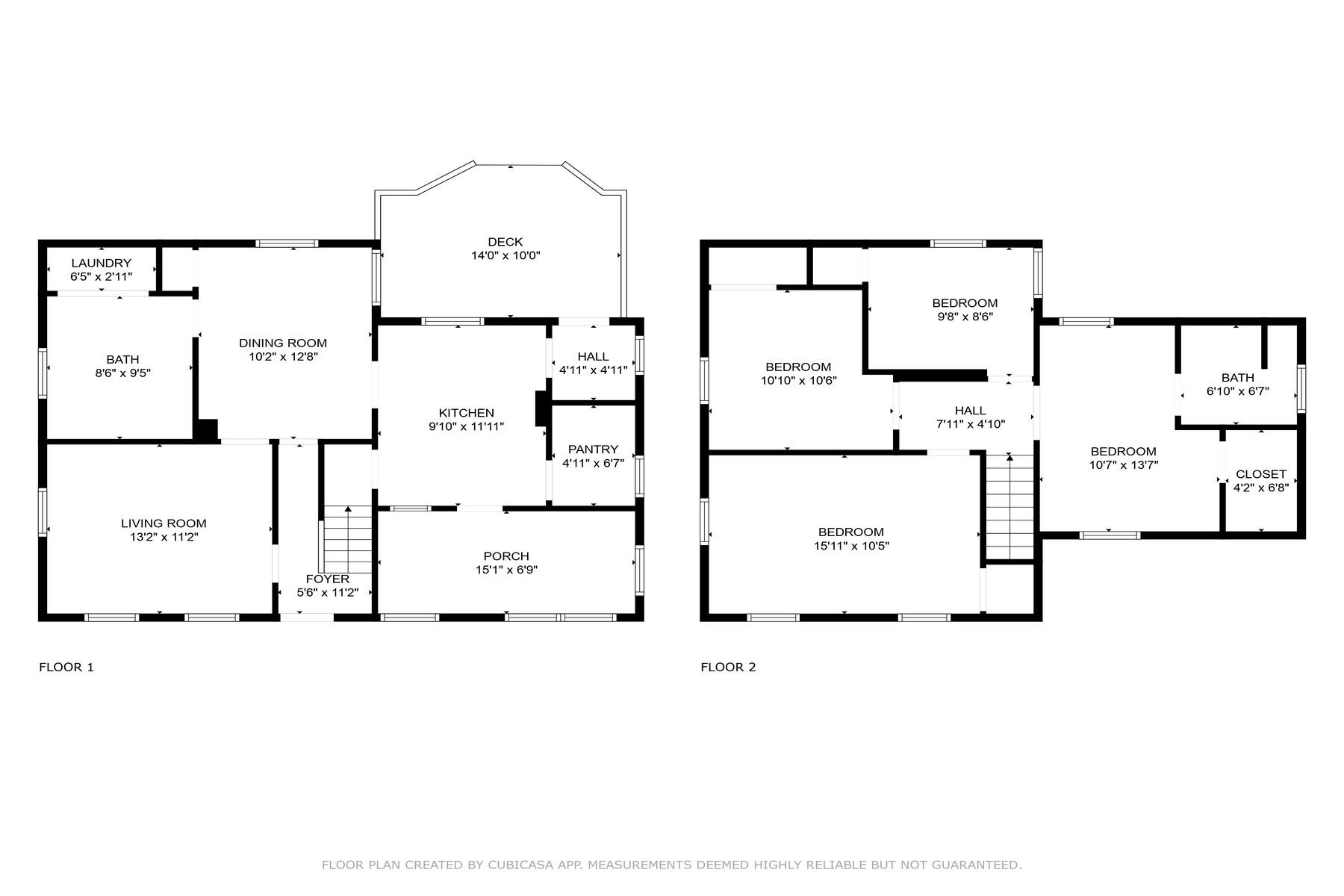
Located in West Rutland, this spacious traditional-style home offers incredible potential for investors or buyers ready to bring their vision to life. The home includes 4 bedrooms and 2 bathrooms, offering ample space for a growing family. While the interior is in need of significant cleaning and renovation it presents a fantastic opportunity, with solid bones and a functional layout, to create a personalized living space or income-generating rental. The property also features not one, but two 2-car garages, providing ample space for vehicles, storage options, or a workshop - a rare find in this area. A west facing deck invites possibilities for outdoor relaxation. Set on a generous and attractive over half acre corner lot, the property features a shed, plenty of yard space, and covered front porch. Vinyl sided and vinyl replacement windows in place, newer hot water heater, newer oil tank and generator ready. Being sold as-is, this property is priced to reflect the work needed, offering value and potential for the right buyer. Best suited for a cash buyer or rehab loan.

Features

  • Rooms: 7
  • Bedrooms: 4
  • Baths: 1 full / 1 three-quarter
  • Style: New Englander,Rehab Needed
  • Year Built: 1900
  • Garage: 4-car Garage
  • Heating: Oil,Forced Air,Gravity
  • Cooling: None
  • Basement: Dirt Floor,Sump Pump,Unfinished,Basement Stairs
  • Approx Sq. Feet: 1,628
  • Acreage: 0.61
  • Est. Taxes: $2,976
  • Lot Desc: Corner,Level,Sidewalks
  • Elem. School: West Rutland School
  • Middle School: West Rutland School
  • High School: West Rutland School
  • MLS#: 5044424
  • Website: https://www.raveis.com
    /prop/5044424/14andersonstreet_westrutland_vt?source=qrflyer
©2026 New England Real Estate Network, Inc. All rights reserved.This information is deemed reliable, but not guaranteed. The data relating to real estate displayed on this Site comes in part from the IDX Program of PrimMLS. The information being provided is for consumers' personal, non-commercial use and may not be used for any purpose other than to identify prospective properties consumers may be interested in purchasing. Data last updated 1/14/2026

William Raveis Family of Services

Our family of companies partner in delivering quality services in a one-stop-shopping environment. Together, we integrate the most comprehensive real estate, mortgage and insurance services available to fulfill your specific real estate needs.

Jennifer WarchalLuxury Properties Specialist

617.721.6922

Jennifer.Warchal@Raveis.com

Our family of companies offer our clients a new level of full-service real estate. We shall:

  • Market your home to realize a quick sale at the best possible price
  • Place up to 20+ photos of your home on our website, raveis.com
  • Provide frequent communication and tracking reports showing the Internet views your home received on raveis.com
  • Showcase your home on raveis.com with a larger and more prominent format
  • Give you the full resources and strength of William Raveis Real Estate, Mortgage & Insurance and our cutting-edge technology

To learn more about our credentials, visit raveis.com today.

Kate RockettRVP, Mortgage Banker, William Raveis Mortgage, LLC

NMLS Mortgage Loan Originator ID 1500191

617.281.4872

Kate.Rockett@raveis.com

Our Executive Mortgage Banker:

  • Is available to meet with you in our office, your home or office, evenings or weekends
  • Offers you pre-approval in minutes!
  • Provides a guaranteed closing date that meets your needs
  • Has access to hundreds of loan programs, all at competitive rates
  • Is in constant contact with a full processing, underwriting, and closing staff to ensure an efficient transaction

Joel FanjoyRegional SVP Insurance Sales, William Raveis Insurance

617.320.5687

Joel.Fanjoy@raveis.com

Our Insurance Division:

  • Will Provide a home insurance quote within 24 hours
  • Offers full-service coverage such as Homeowner's, Auto, Life, Renter's, Flood and Valuable Items
  • Partners with major insurance companies including Chubb, Kemper Unitrin, The Hartford, Progressive,
    Encompass, Travelers, Fireman's Fund, Middleoak Mutual, One Beacon and American Reliable

14 Anderson Street, West Rutland, VT, 05777

$183,000

Jennifer Warchal

Luxury Properties Specialist

William Raveis Real Estate

Phone: 617.721.6922

Jennifer.Warchal@Raveis.com

Kate Rockett

RVP, Mortgage Banker

William Raveis Mortgage, LLC

Phone: 617.281.4872

Kate.Rockett@raveis.com

NMLS Mortgage Loan Originator ID 1500191

5/6 (30 Yr)
Adjustable Rate Conforming*
30 Year
Fixed-Rate Conforming
15 Year
Fixed-Rate Conforming
Loan Amount $146,400 $146,400 $146,400
Term 360 months 360 months 180 months
Initial Interest Rate** 5.625% 5.990% 5.125%
Interest Rate based on Index + Margin 8.125%
Annual Percentage Rate 6.322% 6.156% 5.415%
Monthly Tax Payment $248 $248 $248
H/O Insurance Payment $75 $75 $75
Initial Principal & Interest Pmt $843 $877 $1,167
Total Monthly Payment $1,166 $1,200 $1,490

* The Initial Interest Rate and Initial Principal & Interest Payment are fixed for the first and adjust every six months thereafter for the remainder of the loan term. The Interest Rate and annual percentage rate may increase after consummation. The Index for this product is the SOFR. The margin for this adjustable rate mortgage may vary with your unique credit history, and terms of your loan.

** Mortgage Rates are subject to change, loan amount and product restrictions and may not be available for your specific transaction at commitment or closing. Rates, and the margin for adjustable rate mortgages [if applicable], are subject to change without prior notice.

The rates and Annual Percentage Rate (APR) cited above may be only samples for the purpose of calculating payments and are based upon the following assumptions: minimum credit score of 740, 20% down payment (e.g. $20,000 down on a $100,000 purchase price), $1,950 in finance charges, and 30 days prepaid interest, 1 point, 30 day rate lock. The rates and APR will vary depending upon your unique credit history and the terms of your loan, e.g. the actual down payment percentages, points and fees for your transaction. Property taxes and homeowner's insurance are estimates and subject to change.