983 Sundrop CT, Marco Island, FL, 34145 | $13,900,000

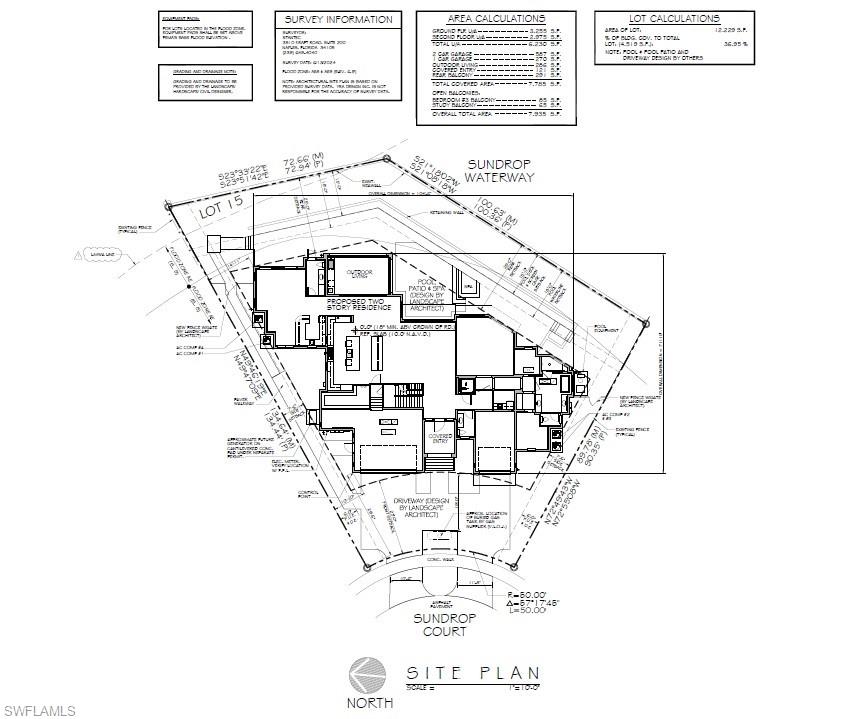
Move in ready April 2026! Positioned on one of the few remaining premier waterfront parcels on Marco Island, this new custom estate by The Lykos Group captures over 170 feet of gulf frontage with wide water views and direct Gulf access with no bridges. Located on a quiet cul de sac, the setting offers exceptional privacy while placing you only minutes by boat to the Gulf, Isle of Capri, Marco Island Yacht Club, and the Snook Inn. The surrounding waterways attract dolphins, manatees, and native coastal wildlife, creating a peaceful waterfront setting rarely available on the island. Designed to complement the Marco Island boating lifestyle, the residence offers 6, 230 square feet under air and nearly 7, 800 total square feet. The layout includes five bedrooms plus a den, seven bathrooms, a club room, loft, and a dedicated home office or exercise space. Two primary suites provide flexibility for owners and guests, while the open two story design creates volume and natural light throughout the home. The great room floor plan centers around a large chef’s kitchen with Sub-Zero and Wolf appliances, gas cooking, a spacious quartz island, walk in pantry, and custom cabinetry. Adjacent dining and living areas open directly to the waterfront through expansive sliding glass doors, creating seamless indoor outdoor living. High end finishes, detailed ceiling treatments, wood and tile flooring, and integrated home technology elevate the overall design while maintaining a comfortable coastal aesthetic. Outdoor living is designed on a resort scale. The pool and spa anchor the expansive lanai with multiple lounging and dining areas, an outdoor kitchen, built in grill, and fire pit. A signature design element is the second floor balcony rain curtain waterfall that cascades into the pool below, creating a dramatic focal point along the waterfront side of the home. Boating enthusiasts will appreciate the private dock with water and electric along the seawall, positioned on a wide waterway with immediate access to open water. With no bridges to the Gulf, larger vessels and sport boats move in and out with ease, making this location ideal for serious boaters. Additional features include a private interior elevator serving both floors, a three car garage with the option to install vehicle lifts, a whole home generator supported by a 500 gallon propane tank, impact resistant windows and doors, and elevated concrete construction designed for durability and storm protection. Presenting a rare opportunity to secure a newly built luxury waterfront residence in one of Marco Island’s most desirable boating locations.

Features

  • Amenities: Sidewalk,Streetlight,Underground Utility
  • Rooms: 5
  • Bedrooms: 5
  • Baths: 5 full / 2 half
  • Style: 2 Story,Contemporary
  • Development: MARCO ISLAND
  • Year Built: 2026
  • Garage: 3-car Attached
  • Heating: Central Electric
  • Cooling: Central Electric,Zoned
  • Approx Sq. Feet: 6,230
  • Acreage: 0.28
  • Est. Taxes: $30,650
  • Lot Desc: Cul-De-Sac,Dead End,Irregular Shape
  • View: Bay,River,Water Feature
  • Community Type: Boating,Non-Gated
  • Water Front: Yes
  • Boat Access: Boat Dock Private,Elec Avail at dock,Water Avail at Dock
  • Elem. School: TOMMY BARFIELD ELEMENTARY
  • Middle School: MARCO ISLAND CHARTER
  • High School: MARCO ISLAND ACADEMY
  • Private Pool: Yes
  • Pet Policy: No Approval Needed
  • MLS#: 225036296
  • Website: https://www.raveis.com
    /eprop/225036296/983sundropct_marcoisland_fl?source=qrflyer
Courtesy of

William Raveis Family of Services

Our family of companies partner in delivering quality services in a one-stop-shopping environment. Together, we integrate the most comprehensive real estate, mortgage and insurance services available to fulfill your specific real estate needs.

The Norgart TeamSales Associates

239.404.7007

NorgartTeam@raveis.com

Our family of companies offer our clients a new level of full-service real estate. We shall:

  • Market your home to realize a quick sale at the best possible price
  • Place up to 20+ photos of your home on our website, raveis.com
  • Provide frequent communication and tracking reports showing the Internet views your home received on raveis.com
  • Showcase your home on raveis.com with a larger and more prominent format
  • Give you the full resources and strength of William Raveis Real Estate, Mortgage & Insurance and our cutting-edge technology

To learn more about our credentials, visit raveis.com today.

Melissa CohnRVP, Mortgage Banker, William Raveis Mortgage, LLC

NMLS Mortgage Loan Originator ID 16953

917.838.7300

Melissa.Cohn@raveis.com

Our Executive Mortgage Banker:

  • Is available to meet with you in our office, your home or office, evenings or weekends
  • Offers you pre-approval in minutes!
  • Provides a guaranteed closing date that meets your needs
  • Has access to hundreds of loan programs, all at competitive rates
  • Is in constant contact with a full processing, underwriting, and closing staff to ensure an efficient transaction

Pedro DelgadilloInsurance Sales Director, William Raveis Insurance

305.922.5393

Pedro.Delgadillo@raveis.com

Our Insurance Division:

  • Will Provide a home insurance quote within 24 hours
  • Offers full-service coverage such as Homeowner's, Auto, Life, Renter's, Flood and Valuable Items
  • Partners with major insurance companies including Chubb, Kemper Unitrin, The Hartford, Progressive,
    Encompass, Travelers, Fireman's Fund, Middleoak Mutual, One Beacon and American Reliable

983 Sundrop CT, Marco Island, FL, 34145

$13,900,000

The Norgart Team

Sales Associates

William Raveis Real Estate

Phone: 239.404.7007

NorgartTeam@raveis.com

Melissa Cohn

RVP, Mortgage Banker

William Raveis Mortgage, LLC

Phone: 917.838.7300

Melissa.Cohn@raveis.com

NMLS Mortgage Loan Originator ID 16953

5/6 (30 Yr)
Adjustable Rate Jumbo*
30 Year
Fixed-Rate Jumbo
15 Year
Fixed-Rate Jumbo
Loan Amount $11,120,000 $11,120,000 $11,120,000
Term 360 months 360 months 180 months
Initial Interest Rate** 5.875% 6.125% 6.000%
Interest Rate based on Index + Margin 8.125%
Annual Percentage Rate 6.132% 6.259% 6.183%
Monthly Tax Payment $2,554 $2,554 $2,554
H/O Insurance Payment $125 $125 $125
Initial Principal & Interest Pmt $65,779 $67,566 $93,837
Total Monthly Payment $68,458 $70,245 $96,516

* The Initial Interest Rate and Initial Principal & Interest Payment are fixed for the first and adjust every six months thereafter for the remainder of the loan term. The Interest Rate and annual percentage rate may increase after consummation. The Index for this product is the SOFR. The margin for this adjustable rate mortgage may vary with your unique credit history, and terms of your loan.

** Mortgage Rates are subject to change, loan amount and product restrictions and may not be available for your specific transaction at commitment or closing. Rates, and the margin for adjustable rate mortgages [if applicable], are subject to change without prior notice.

The rates and Annual Percentage Rate (APR) cited above may be only samples for the purpose of calculating payments and are based upon the following assumptions: minimum credit score of 740, 20% down payment (e.g. $20,000 down on a $100,000 purchase price), $1,950 in finance charges, and 30 days prepaid interest, 1 point, 30 day rate lock. The rates and APR will vary depending upon your unique credit history and the terms of your loan, e.g. the actual down payment percentages, points and fees for your transaction. Property taxes and homeowner's insurance are estimates and subject to change.