717 A Short Beach Road, Nissequogue, NY, 11780 | $6,499,000

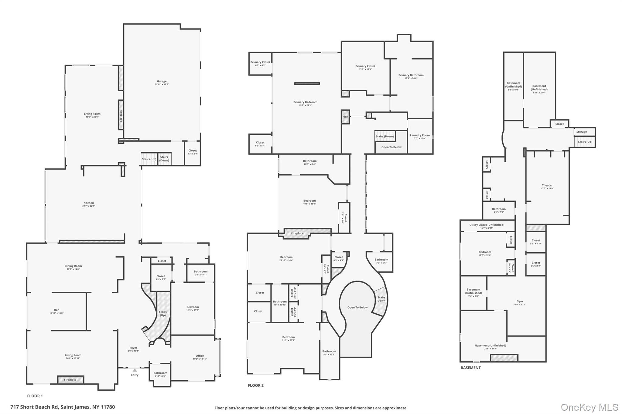
Experience a rare opportunity to own one of Nissequogue’s most private and prestigious luxury compounds, set in the heart of the sought-after Short Beach enclave. Surrounded by a protected wildlife sanctuary, this extraordinary estate includes two separate parcels: an approximately 8, 500-square-foot custom-built residence with a two-bedroom guest cottage on 2. 49 acres, and an adjacent 2-acre vacant buildable lot available separately or as part of a combined 4. 49-acre offering. The flexibility of purchasing one or both parcels presents an unparalleled opportunity for private compound living or investment. Designed with Feng Shui principles and a rare south-facing orientation, the home was built in 2011 and intentionally planned to welcome abundant natural light, positive energy, and harmonious flow throughout. Walls of panoramic windows imported from Germany provide breathtaking views of the lush surroundings, offering privacy, tranquility, and effortless indoor-outdoor living. The main residence features six spacious en-suite bedrooms, each with its own gas fireplace, private balcony, and elegant finishes. The primary suite is a true sanctuary, offering water views, a spa-style bathroom with a sun-filled round soaking tub, radiant heated floors, and a generous walk-in closet. The chef’s kitchen is outfitted with top-tier Sub-Zero and Wolf appliances, custom cabinetry, and a large center island, opening seamlessly into expansive formal and informal living and dining spaces ideal for entertaining. This estate is thoughtfully designed with sustainable and luxury features throughout. Radiant heating has been installed beneath all tile flooring for year-round comfort. Hot water is efficiently powered by solar energy, reducing long-term operating costs and supporting a greener lifestyle. The property also features a long recycled glass driveway, a spacious three-car garage with loft storage, and imported roof tiles from Spain that reflect both craftsmanship and longevity. The separate two-bedroom guest cottage includes its own kitchen and private entrance, making it ideal for extended family, in-laws, staff, or guests. Whether you need flexible multi-generational living or seek the perfect North Shore retreat, this residence offers unparalleled comfort and versatility. Zoned for horses, the acreage offers space for equestrian use, additional outbuildings, or recreational lifestyle enhancements. Located just minutes from Long Island Sound beaches, The Knox School, Stony Brook University and Hospital, and the Saint James LIRR station, this rare offering is only 60 miles from New York City while feeling a world away. The Village of Nissequogue is known for its expansive estates, natural preserves, and luxury waterfront lifestyle, making this home ideal for discerning buyers looking for elegance, land, and privacy. This listing is part of a 3-property portfolio that can be purchased individually or together. Options include the main residence and cottage on 2. 49 acres for $5, 299, 000, the 2-acre vacant lot for $1, 200, 000, or both properties combined as a 4. 49-acre private compound for $6, 499, 000. This listing reflects the 4. 49-acre parcel with the residence, guest cottage and land. Properties are listed separately on MLS. Taxes include Village of Nissequogue.

Features

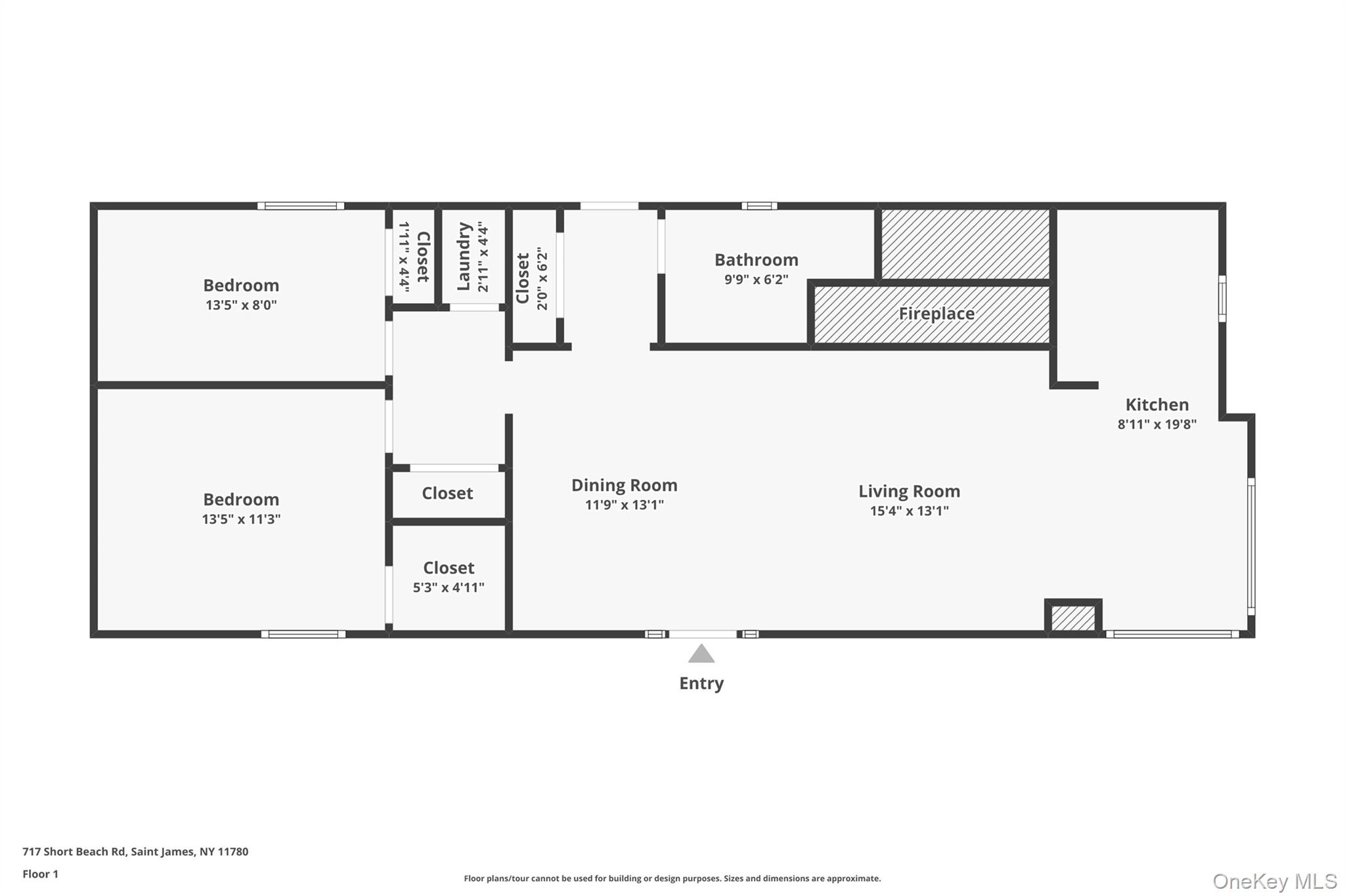
  • Rooms: 14
  • Bedrooms: 6
  • Baths: 6 full / 2 half
  • Laundry: Laundry Room
  • Style: Estate, Mediterranean
  • Year Built: 2011
  • Garage: 3-car
  • Heating: Forced Air, Radiant, Solar, Radiant Floor
  • Cooling: Central Air
  • Basement: Finished, Full, Storage Space
  • Approx Sq. Feet: 8,500
  • Acreage: 4.49
  • Est. Taxes: $54,592
  • Lot Desc: Back Yard, Near Golf Course, See Remarks, Views, Waterfront
  • Water Front: Yes
  • Elem. School: St James Elementary School
  • Middle School: Nesaquake Middle School
  • High School: Smithtown High School-East
  • School District: Smithtown
  • Appliances: Convection Oven, Cooktop, Dishwasher, Dryer, Freezer, Gas Cooktop, Gas Oven, Gas Range, Microwave, Other, Refrigerator, Washer, Solar Hot Water, Wine Refrigerator
  • MLS#: 841159
  • Days on Market: 200 days
  • Website: https://www.raveis.com
    /eprop/841159/717ashortbeachroad_nissequogue_ny?source=qrflyer
Listing information has been assembled from various sources of varying degrees of reliability. Any information critical to the buying decision should be independently verified.Listing courtesy of The Agency Northshore NY   Phone: 631-870-0753

William Raveis Family of Services

Our family of companies partner in delivering quality services in a one-stop-shopping environment. Together, we integrate the most comprehensive real estate, mortgage and insurance services available to fulfill your specific real estate needs.

Customer Service

888.699.8876

Contact@raveis.com

Our family of companies offer our clients a new level of full-service real estate. We shall:

  • Market your home to realize a quick sale at the best possible price
  • Place up to 20+ photos of your home on our website, raveis.com
  • Provide frequent communication and tracking reports showing the Internet views your home received on raveis.com
  • Showcase your home on raveis.com with a larger and more prominent format
  • Give you the full resources and strength of William Raveis Real Estate, Mortgage & Insurance and our cutting-edge technology

To learn more about our credentials, visit raveis.com today.

Frank KolbSenior Vice President - Coaching & Strategic, William Raveis Mortgage, LLC

NMLS Mortgage Loan Originator ID 81725

203.980.8025

Frank.Kolb@raveis.com

Our Executive Mortgage Banker:

  • Is available to meet with you in our office, your home or office, evenings or weekends
  • Offers you pre-approval in minutes!
  • Provides a guaranteed closing date that meets your needs
  • Has access to hundreds of loan programs, all at competitive rates
  • Is in constant contact with a full processing, underwriting, and closing staff to ensure an efficient transaction

Ryan FortierInsurance Sales Director, William Raveis Insurance

516.739.7731

Ryan.Fortier@raveis.com

Our Insurance Division:

  • Will Provide a home insurance quote within 24 hours
  • Offers full-service coverage such as Homeowner's, Auto, Life, Renter's, Flood and Valuable Items
  • Partners with major insurance companies including Chubb, Kemper Unitrin, The Hartford, Progressive,
    Encompass, Travelers, Fireman's Fund, Middleoak Mutual, One Beacon and American Reliable

717 A Short Beach Road, Nissequogue, NY, 11780

$6,499,000

Customer Service

William Raveis Real Estate

Phone: 888.699.8876

Contact@raveis.com

Frank Kolb

Senior Vice President - Coaching & Strategic

William Raveis Mortgage, LLC

Phone: 203.980.8025

Frank.Kolb@raveis.com

NMLS Mortgage Loan Originator ID 81725

5/6 (30 Yr)
Adjustable Rate Jumbo*
30 Year
Fixed-Rate Jumbo
15 Year
Fixed-Rate Jumbo
Loan Amount $5,199,200 $5,199,200 $5,199,200
Term 360 months 360 months 180 months
Initial Interest Rate** 5.250% 5.875% 5.625%
Interest Rate based on Index + Margin 8.125%
Annual Percentage Rate 6.069% 5.984% 5.806%
Monthly Tax Payment $4,549 $4,549 $4,549
H/O Insurance Payment $125 $125 $125
Initial Principal & Interest Pmt $28,710 $30,755 $42,827
Total Monthly Payment $33,384 $35,429 $47,501

* The Initial Interest Rate and Initial Principal & Interest Payment are fixed for the first and adjust every six months thereafter for the remainder of the loan term. The Interest Rate and annual percentage rate may increase after consummation. The Index for this product is the SOFR. The margin for this adjustable rate mortgage may vary with your unique credit history, and terms of your loan.

** Mortgage Rates are subject to change, loan amount and product restrictions and may not be available for your specific transaction at commitment or closing. Rates, and the margin for adjustable rate mortgages [if applicable], are subject to change without prior notice.

The rates and Annual Percentage Rate (APR) cited above may be only samples for the purpose of calculating payments and are based upon the following assumptions: minimum credit score of 740, 20% down payment (e.g. $20,000 down on a $100,000 purchase price), $1,950 in finance charges, and 30 days prepaid interest, 1 point, 30 day rate lock. The rates and APR will vary depending upon your unique credit history and the terms of your loan, e.g. the actual down payment percentages, points and fees for your transaction. Property taxes and homeowner's insurance are estimates and subject to change.