22 Stonewall Drive, Farmington, NH, 03835 | $425,000

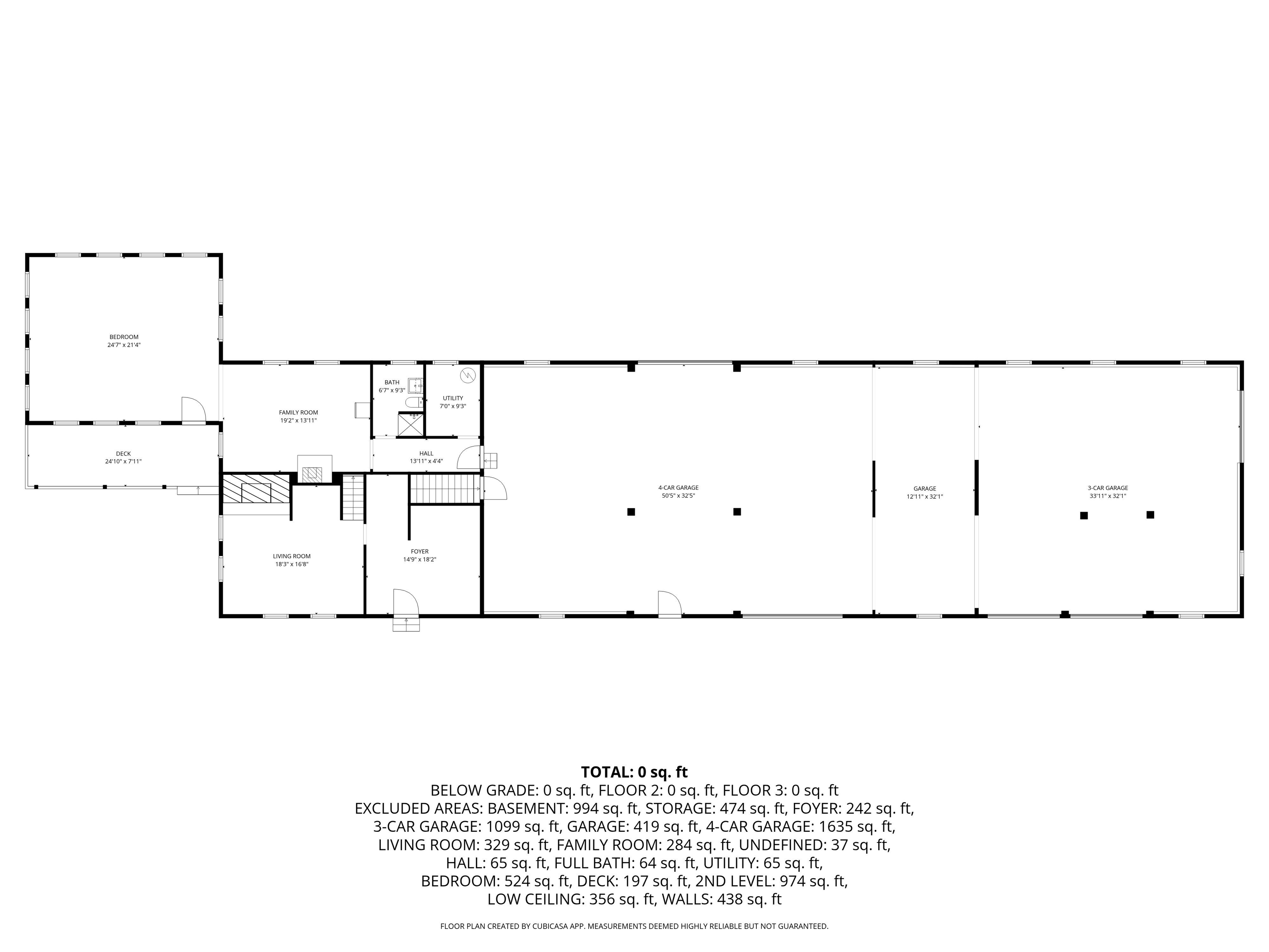
Auto Enthusiast's Dream Property! Close to the Lakes Region, Mountains and Seacost, this 4. 45 acre property is ideal for the car-collector, or restoration enthusiast. Walk into the expansive 100'x33' reconstructed, 2 story post and beam barn and imagine your vehicles housed in the large, airy space. The concrete floors are piped with radiant heat tubing that extends into the exterior aprons, the structure is insulated and wired. Vehicle lift will convey with the property! Second story is central to the barn and could make a great office, storage space or a hideaway. Above is a beautiful cupola that provides 360 degree views of the area. Solid metal roof throughout! There are 5 barn doors, with one set forming a pass-through from front to rear of the structure. Door at end of barn is approximately dock-height to the outside for ease of loading and unloading a truck or flatbed. Space to garage 12+ cars comfortably with plenty of room left over to work on projects! Connected to an unfinished (stripped mostly to the studs) 2 story house with full attic and basement. Bring your rehab ideas or remove house and replace it with new construction or pre-fab. concrete foundation is solid and substantial! Metal roof, foundation and septic were new when current owner purchased in 2012. A 24 hour notice for showings. All showings must be assisted.

Features

  • Style: Cape,w/Addition
  • Year Built: 1997
  • Garage: 6-car Garage
  • Heating: Hot Air,Radiant
  • Cooling: None
  • Basement: Full,Unfinished
  • Approx Sq. Feet: 0
  • Acreage: 4.45
  • Est. Taxes: $8,477
  • Lot Desc: Rural
  • School District: Farmington Sch Dist SAU #61
  • MLS#: 5035689
  • Website: https://www.raveis.com
    /prop/5035689/22stonewalldrive_farmington_nh?source=qrflyer
©2025 New England Real Estate Network, Inc. All rights reserved.This information is deemed reliable, but not guaranteed. The data relating to real estate displayed on this Site comes in part from the IDX Program of PrimMLS. The information being provided is for consumers' personal, non-commercial use and may not be used for any purpose other than to identify prospective properties consumers may be interested in purchasing. Data last updated 12/8/2025
Listing courtesy of East Key Realty   Phone: 603-787-3155
Listing Agent: Robin Remillard

William Raveis Family of Services

Our family of companies partner in delivering quality services in a one-stop-shopping environment. Together, we integrate the most comprehensive real estate, mortgage and insurance services available to fulfill your specific real estate needs.

Customer Service

888.699.8876

Contact@raveis.com

Our family of companies offer our clients a new level of full-service real estate. We shall:

  • Market your home to realize a quick sale at the best possible price
  • Place up to 20+ photos of your home on our website, raveis.com
  • Provide frequent communication and tracking reports showing the Internet views your home received on raveis.com
  • Showcase your home on raveis.com with a larger and more prominent format
  • Give you the full resources and strength of William Raveis Real Estate, Mortgage & Insurance and our cutting-edge technology

To learn more about our credentials, visit raveis.com today.

Joel FanjoyRegional SVP Insurance Sales, William Raveis Insurance

617.320.5687

Joel.Fanjoy@raveis.com

Our Insurance Division:

  • Will Provide a home insurance quote within 24 hours
  • Offers full-service coverage such as Homeowner's, Auto, Life, Renter's, Flood and Valuable Items
  • Partners with major insurance companies including Chubb, Kemper Unitrin, The Hartford, Progressive,
    Encompass, Travelers, Fireman's Fund, Middleoak Mutual, One Beacon and American Reliable

22 Stonewall Drive, Farmington, NH, 03835

$425,000

Customer Service

William Raveis Real Estate

Phone: 888.699.8876

Contact@raveis.com

5/6 (30 Yr)
Adjustable Rate Conforming*
30 Year
Fixed-Rate Conforming
15 Year
Fixed-Rate Conforming
Loan Amount $340,000 $340,000 $340,000
Term 360 months 360 months 180 months
Initial Interest Rate** 5.750% 6.125% 5.375%
Interest Rate based on Index + Margin 8.125%
Annual Percentage Rate 6.521% 6.304% 5.648%
Monthly Tax Payment $706 $706 $706
H/O Insurance Payment $75 $75 $75
Initial Principal & Interest Pmt $1,984 $2,066 $2,756
Total Monthly Payment $2,765 $2,847 $3,537

* The Initial Interest Rate and Initial Principal & Interest Payment are fixed for the first and adjust every six months thereafter for the remainder of the loan term. The Interest Rate and annual percentage rate may increase after consummation. The Index for this product is the SOFR. The margin for this adjustable rate mortgage may vary with your unique credit history, and terms of your loan.

** Mortgage Rates are subject to change, loan amount and product restrictions and may not be available for your specific transaction at commitment or closing. Rates, and the margin for adjustable rate mortgages [if applicable], are subject to change without prior notice.

The rates and Annual Percentage Rate (APR) cited above may be only samples for the purpose of calculating payments and are based upon the following assumptions: minimum credit score of 740, 20% down payment (e.g. $20,000 down on a $100,000 purchase price), $1,950 in finance charges, and 30 days prepaid interest, 1 point, 30 day rate lock. The rates and APR will vary depending upon your unique credit history and the terms of your loan, e.g. the actual down payment percentages, points and fees for your transaction. Property taxes and homeowner's insurance are estimates and subject to change.