"Cascade House" Cascade Mountain Road, Amenia, NY, 12501 | $2,900,000

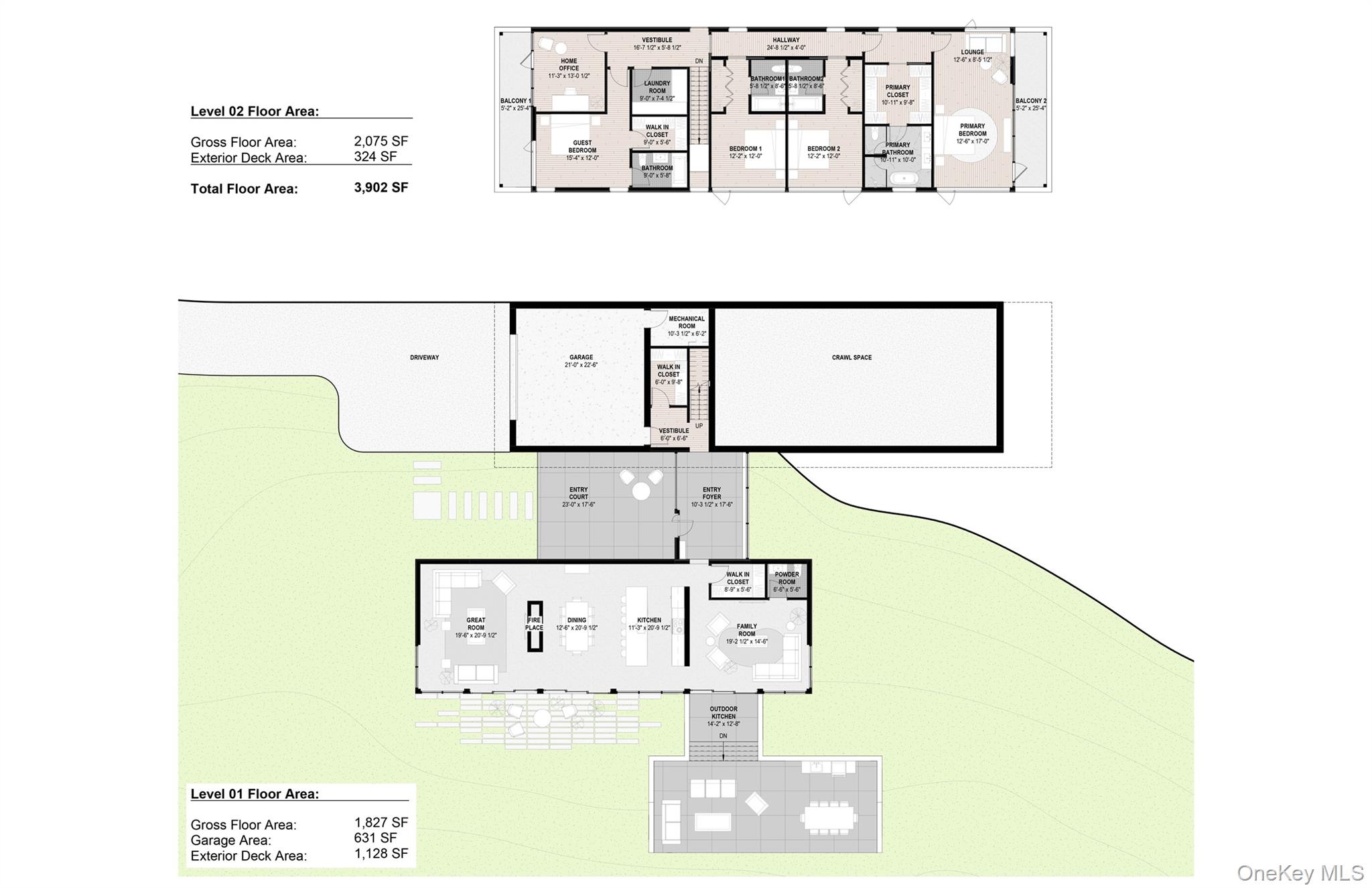
Nestled in the scenic Hudson Valley, the town of Amenia offers a peaceful blend of rural beauty, rich history, and vibrant community life. Surrounded by rolling hills and tranquil farmlands, it’s the perfect escape for nature lovers. Home to renowned communities like Troutbeck, a historic estate turned retreat, and Silo Ridge, a members-only golf community, Amenia offers elegance and charm. With easy access to the Metro-North Wassaic station, the town is well-connected to New York City, making it an ideal getaway that combines serene countryside living with urban convenience. The "Cascade House", a to-be-built residence, embodies modernism, blending architectural and landscaped elements with contemporary design principles. Situated on a sloping 13-acre plot, the home connects with the site’s topography to take advantage of expansive views of Amenia and beyond. One approaches the site via a gently curving creek leading to a clearing in the surrounding woods. The home features three architectural volumes. The upper structure, containing bedrooms and a home office, floats above the landscape. The central volume, dedicated to social spaces, is enclosed in floor-to-ceiling glass with large sliding doors connecting the interior to the surroundings. The lower volume is sunken into the earth, an exterior hardscaped area with seating, outdoor kitchen, dining, or the optional pool area. These volumes cascade down the mountainside, offering unobstructed views of nature and vistas beyond. Approaching the residence, one is struck by the interplay of materials. The stone-clad driveway walls seamlessly transition into the exposed foundation walls for the upper volume. On top of this floats the upper volume, clad in light, weathered brick. The living space box showcases board-formed concrete on three walls and mahogany with full-height glazing on the other. Between these boxes is an entry area, a mix of wood and glass with a green roof. In this home, the landscape plays an equal role with architecture. Between each volume is a signature landscape feature. The upper landscape includes specialty plantings framing the entry court, green roof plantings, and a sloping hill of native planting visible through the foyer. The lower landscape features pervious paving, allowing the living room to flow outdoors through operable doors to seating and dining areas. Inside, the interior unfolds with an effortless flow, characterized by clean lines, open spaces, and a restrained palette of materials. The heart of the house is the open-plan public spaces with 10’ ceilings in the living room, dining, kitchen, and 13’ ceilings in the family room. These spaces are bathed in natural light from the full-height windows and doors on the south face. There is a slated mahogany ceiling and cast concrete floors. A marble-clad feature wall with a double-sided fireplace separates the living and dining rooms. The gourmet kitchen features mahogany and lacquered wood cabinetry, Miele appliances, and an expansive cast concrete island. There is a large walk-in pantry for extra storage and appliances. The principal residence boasts four generously proportioned bedrooms, each with an ensuite bathroom. The primary suite has an expansive custom walk-in closet, a spa-like bathroom, and a private terrace. Throughout, sustainable design principles are seamlessly integrated, with extensive insulation, triple-pane wood windows, energy-efficient mechanical systems, and fully electric appliances. The result is a harmonious fusion of form and function, where luxury, nature, and human experience coexist in perfect balance. In a town where history, nature, and modern elegance converge, the Cascade House offers the perfect retreat—where the serenity of Amenia meets the art of contemporary living.

Features

  • Rooms: 10
  • Bedrooms: 4
  • Baths: 4 full / 1 half
  • Laundry: Electric Dryer Hookup, Laundry Room, Washer Hookup
  • Style: Contemporary, Modern
  • Year Built: 2025
  • Garage: 2-car
  • Heating: Ducts, ENERGY STAR Qualified Equipment, Forced Air, Heat Pump
  • Cooling: Ductwork, ENERGY STAR Qualified Equipment, Zoned
  • Basement: Crawl Space
  • Approx Sq. Feet: 3,902
  • Acreage: 13
  • Est. Taxes: $0
  • Lot Desc: Near School, Near Shops, Part Wooded, Private, Rolling Slope, Views
  • View: Panoramic
  • Elem. School: Webutuck Elementary School
  • Middle School: Eugene Brooks Intermediate School
  • High School: Webutuck High School
  • School District: Webutuck (Northeast Central)
  • Appliances: Dishwasher, Dryer, Electric Cooktop, Electric Oven, Electric Water Heater, ENERGY STAR Qualified Appliances, Exhaust Fan, Microwave, Refrigerator, Washer, Wine Refrigerator
  • MLS#: 832285
  • Days on Market: 189 days
  • Website: https://www.raveis.com
    /eprop/832285/cascadehousecascademountainroad_amenia_ny?source=qrflyer
Listing information has been assembled from various sources of varying degrees of reliability. Any information critical to the buying decision should be independently verified.Listing courtesy of BHHS Hudson Valley Properties   Phone: 845-876-8600

William Raveis Family of Services

Our family of companies partner in delivering quality services in a one-stop-shopping environment. Together, we integrate the most comprehensive real estate, mortgage and insurance services available to fulfill your specific real estate needs.

Customer Service

888.699.8876

Contact@raveis.com

Our family of companies offer our clients a new level of full-service real estate. We shall:

  • Market your home to realize a quick sale at the best possible price
  • Place up to 20+ photos of your home on our website, raveis.com
  • Provide frequent communication and tracking reports showing the Internet views your home received on raveis.com
  • Showcase your home on raveis.com with a larger and more prominent format
  • Give you the full resources and strength of William Raveis Real Estate, Mortgage & Insurance and our cutting-edge technology

To learn more about our credentials, visit raveis.com today.

Frank KolbSenior Vice President - Coaching & Strategic, William Raveis Mortgage, LLC

NMLS Mortgage Loan Originator ID 81725

203.980.8025

Frank.Kolb@raveis.com

Our Executive Mortgage Banker:

  • Is available to meet with you in our office, your home or office, evenings or weekends
  • Offers you pre-approval in minutes!
  • Provides a guaranteed closing date that meets your needs
  • Has access to hundreds of loan programs, all at competitive rates
  • Is in constant contact with a full processing, underwriting, and closing staff to ensure an efficient transaction

Ryan FortierInsurance Sales Director, William Raveis Insurance

516.739.7731

Ryan.Fortier@raveis.com

Our Insurance Division:

  • Will Provide a home insurance quote within 24 hours
  • Offers full-service coverage such as Homeowner's, Auto, Life, Renter's, Flood and Valuable Items
  • Partners with major insurance companies including Chubb, Kemper Unitrin, The Hartford, Progressive,
    Encompass, Travelers, Fireman's Fund, Middleoak Mutual, One Beacon and American Reliable

"Cascade House" Cascade Mountain Road, Amenia, NY, 12501

$2,900,000

Customer Service

William Raveis Real Estate

Phone: 888.699.8876

Contact@raveis.com

Frank Kolb

Senior Vice President - Coaching & Strategic

William Raveis Mortgage, LLC

Phone: 203.980.8025

Frank.Kolb@raveis.com

NMLS Mortgage Loan Originator ID 81725

5/6 (30 Yr)
Adjustable Rate Jumbo*
30 Year
Fixed-Rate Jumbo
15 Year
Fixed-Rate Jumbo
Loan Amount $2,320,000 $2,320,000 $2,320,000
Term 360 months 360 months 180 months
Initial Interest Rate** 5.250% 5.875% 5.625%
Interest Rate based on Index + Margin 8.125%
Annual Percentage Rate 6.069% 5.984% 5.806%
Monthly Tax Payment $0 $0 $0
H/O Insurance Payment $125 $125 $125
Initial Principal & Interest Pmt $12,811 $13,724 $19,111
Total Monthly Payment $12,936 $13,849 $19,236

* The Initial Interest Rate and Initial Principal & Interest Payment are fixed for the first and adjust every six months thereafter for the remainder of the loan term. The Interest Rate and annual percentage rate may increase after consummation. The Index for this product is the SOFR. The margin for this adjustable rate mortgage may vary with your unique credit history, and terms of your loan.

** Mortgage Rates are subject to change, loan amount and product restrictions and may not be available for your specific transaction at commitment or closing. Rates, and the margin for adjustable rate mortgages [if applicable], are subject to change without prior notice.

The rates and Annual Percentage Rate (APR) cited above may be only samples for the purpose of calculating payments and are based upon the following assumptions: minimum credit score of 740, 20% down payment (e.g. $20,000 down on a $100,000 purchase price), $1,950 in finance charges, and 30 days prepaid interest, 1 point, 30 day rate lock. The rates and APR will vary depending upon your unique credit history and the terms of your loan, e.g. the actual down payment percentages, points and fees for your transaction. Property taxes and homeowner's insurance are estimates and subject to change.