14 Lakeside Drive, Rye, NY, 10580 | $2,750,000

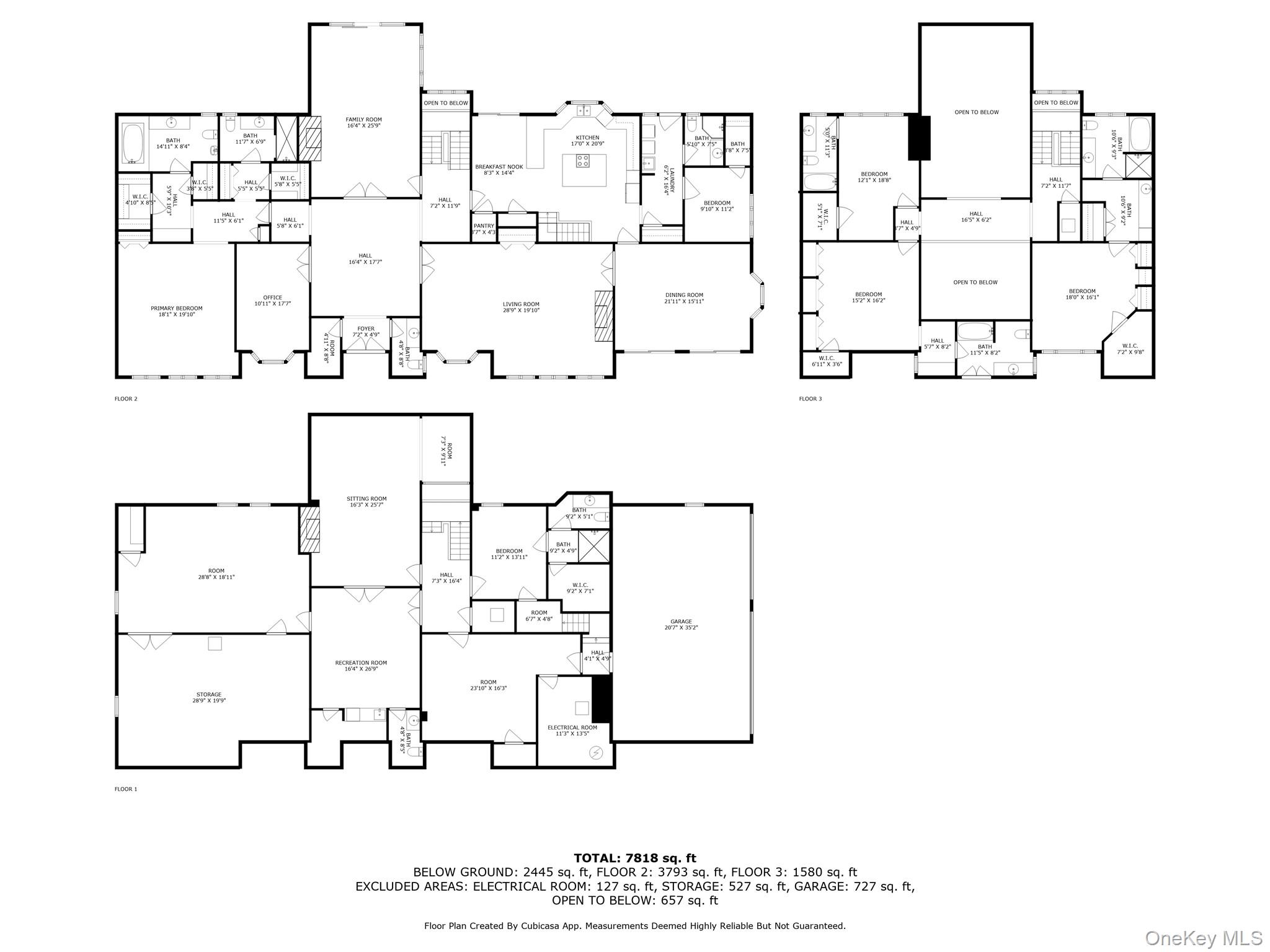
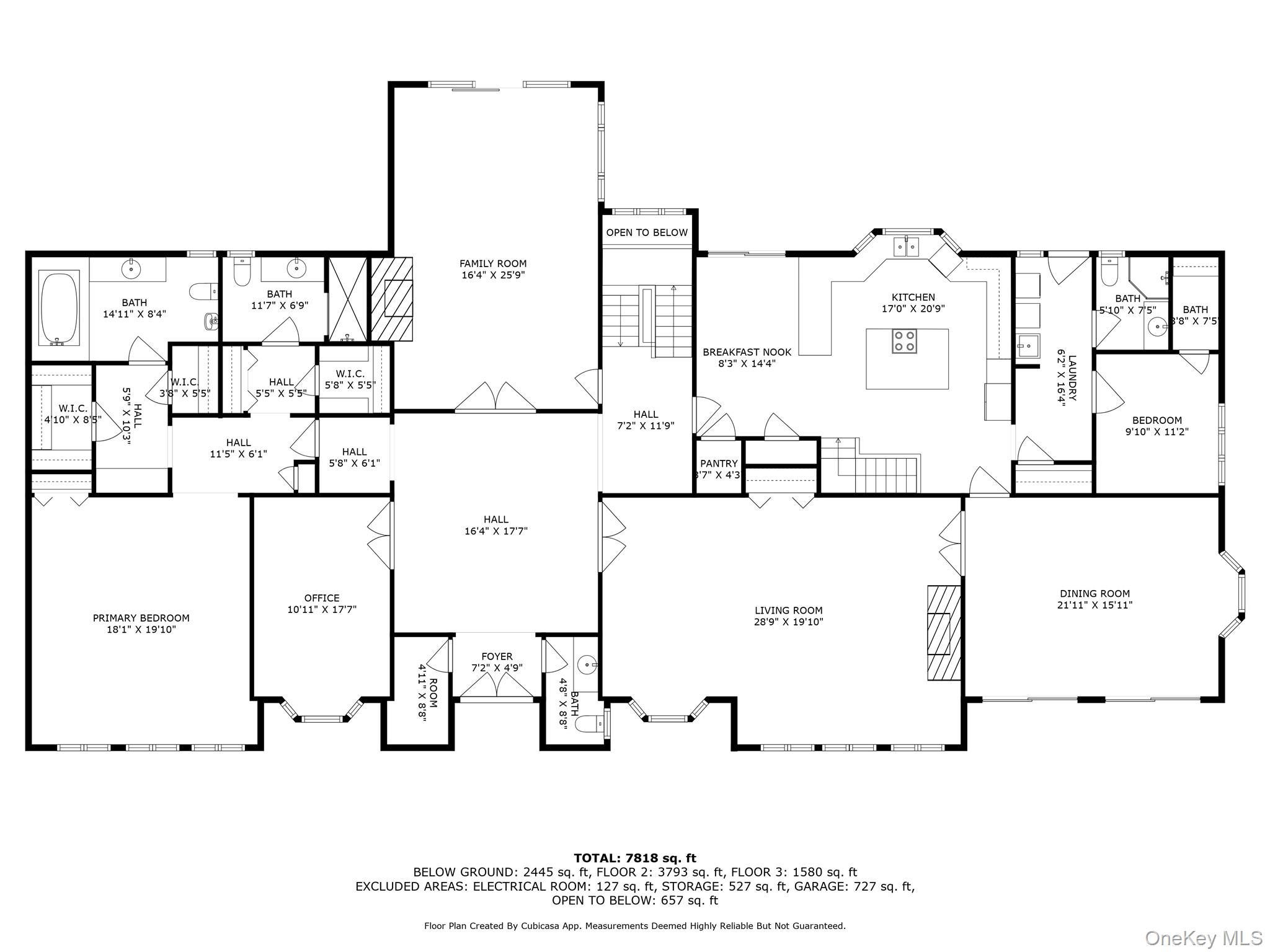
Located in Rye’s sought-after Flagler Estates neighborhood, 14 Lakeside Drive boasts an exceptional layout, first floor primary suite and resort-like pool, set on one full acre. Spanning almost 6, 700 sq. ft. , this stately colonial offers 5 bedrooms, 7 full bathrooms (2 half baths) and an open floor-plan that is perfectly suited for today’s buyer. The first floor features a double height foyer, elegant formal entertaining rooms and a large family room with a fireplace overlooking the newly refinished pool and patio. The open kitchen is ideally located with access to the family room and formal dining room, and provides a large island, breakfast bar and informal dining area, with sliding doors leading out to the pool and patio. The expansive first-floor primary suite has two large bathrooms, multiple walk-in closets and a dressing room, providing a private retreat. An additional in-law/au pair suite on the main level offers flexibility for guests or extended family, and a spacious home office is perfect for today’s “work from home” lifestyle. The second floor provides three bedrooms (a second primary suite as well as two additional bedrooms) all with ample closet space and ensuite bathrooms. The fully finished lower level includes a family room with a fireplace, an exercise room with a full bath, a bar room with dining area and a powder room, an enormous playroom, extensive storage, and an additional room with an ensuite full bathroom. The lower level also provides access to an attached three car garage. For those seeking space, functionality, and a fantastic neighborhood, 14 Lakeside is not to be missed!

Features

  • Rooms: 15
  • Bedrooms: 5
  • Baths: 7 full / 2 half
  • Laundry: Laundry Room
  • Style: Colonial
  • Year Built: 1984
  • Garage: 3-car
  • Heating: Forced Air
  • Cooling: Central Air
  • Basement: Finished
  • Approx Sq. Feet: 6,629
  • Acreage: 1
  • Est. Taxes: $40,278
  • Elem. School: Purchase
  • Middle School: Louis M Klein Middle School
  • High School: Harrison High School
  • School District: Harrison
  • Pool: Electric Heat, In Ground, Pool/Spa Combo
  • Appliances: Dishwasher, Dryer, Freezer, Gas Cooktop, Refrigerator, Stainless Steel Appliance(s), Washer, Gas Water Heater
  • MLS#: 823716
  • Days on Market: 280 days
  • Website: https://www.raveis.com
    /prop/823716/14lakesidedrive_rye_ny?source=qrflyer
Listing information has been assembled from various sources of varying degrees of reliability. Any information critical to the buying decision should be independently verified.Listing courtesy of Compass Greater NY, LLC   Phone: 914-353-5570

William Raveis Family of Services

Our family of companies partner in delivering quality services in a one-stop-shopping environment. Together, we integrate the most comprehensive real estate, mortgage and insurance services available to fulfill your specific real estate needs.

Customer Service

888.699.8876

Contact@raveis.com

Our family of companies offer our clients a new level of full-service real estate. We shall:

  • Market your home to realize a quick sale at the best possible price
  • Place up to 20+ photos of your home on our website, raveis.com
  • Provide frequent communication and tracking reports showing the Internet views your home received on raveis.com
  • Showcase your home on raveis.com with a larger and more prominent format
  • Give you the full resources and strength of William Raveis Real Estate, Mortgage & Insurance and our cutting-edge technology

To learn more about our credentials, visit raveis.com today.

Brian ShahwanVP, Mortgage Banker, William Raveis Mortgage, LLC

NMLS Mortgage Loan Originator ID 2166562

302.293.7433

Brian.Shahwan@raveis.com

Our Executive Mortgage Banker:

  • Is available to meet with you in our office, your home or office, evenings or weekends
  • Offers you pre-approval in minutes!
  • Provides a guaranteed closing date that meets your needs
  • Has access to hundreds of loan programs, all at competitive rates
  • Is in constant contact with a full processing, underwriting, and closing staff to ensure an efficient transaction

Ryan FortierInsurance Sales Director, William Raveis Insurance

516.739.7731

Ryan.Fortier@raveis.com

Our Insurance Division:

  • Will Provide a home insurance quote within 24 hours
  • Offers full-service coverage such as Homeowner's, Auto, Life, Renter's, Flood and Valuable Items
  • Partners with major insurance companies including Chubb, Kemper Unitrin, The Hartford, Progressive,
    Encompass, Travelers, Fireman's Fund, Middleoak Mutual, One Beacon and American Reliable

14 Lakeside Drive, Rye, NY, 10580

$2,750,000

Customer Service

William Raveis Real Estate

Phone: 888.699.8876

Contact@raveis.com

Brian Shahwan

VP, Mortgage Banker

William Raveis Mortgage, LLC

Phone: 302.293.7433

Brian.Shahwan@raveis.com

NMLS Mortgage Loan Originator ID 2166562

5/6 (30 Yr)
Adjustable Rate Jumbo*
30 Year
Fixed-Rate Jumbo
15 Year
Fixed-Rate Jumbo
Loan Amount $2,200,000 $2,200,000 $2,200,000
Term 360 months 360 months 180 months
Initial Interest Rate** 5.250% 5.875% 5.625%
Interest Rate based on Index + Margin 8.125%
Annual Percentage Rate 6.069% 6.031% 5.885%
Monthly Tax Payment $3,357 $3,357 $3,357
H/O Insurance Payment $125 $125 $125
Initial Principal & Interest Pmt $12,148 $13,014 $18,122
Total Monthly Payment $15,629 $16,495 $21,603

* The Initial Interest Rate and Initial Principal & Interest Payment are fixed for the first and adjust every six months thereafter for the remainder of the loan term. The Interest Rate and annual percentage rate may increase after consummation. The Index for this product is the SOFR. The margin for this adjustable rate mortgage may vary with your unique credit history, and terms of your loan.

** Mortgage Rates are subject to change, loan amount and product restrictions and may not be available for your specific transaction at commitment or closing. Rates, and the margin for adjustable rate mortgages [if applicable], are subject to change without prior notice.

The rates and Annual Percentage Rate (APR) cited above may be only samples for the purpose of calculating payments and are based upon the following assumptions: minimum credit score of 740, 20% down payment (e.g. $20,000 down on a $100,000 purchase price), $1,950 in finance charges, and 30 days prepaid interest, 1 point, 30 day rate lock. The rates and APR will vary depending upon your unique credit history and the terms of your loan, e.g. the actual down payment percentages, points and fees for your transaction. Property taxes and homeowner's insurance are estimates and subject to change.