444 Bramertown Road, Tuxedo (Tuxedo Park), NY, 10987 | $849,900

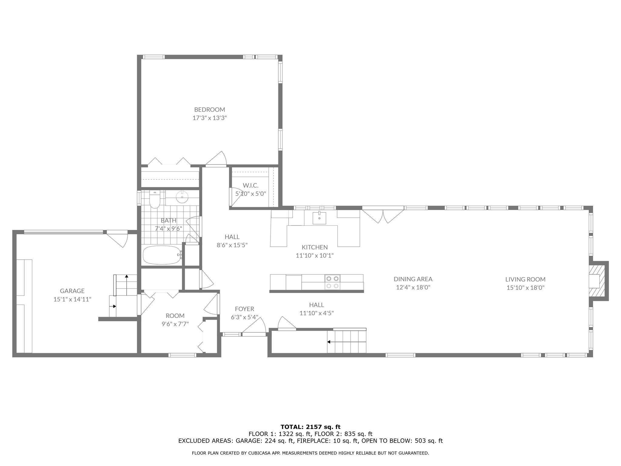
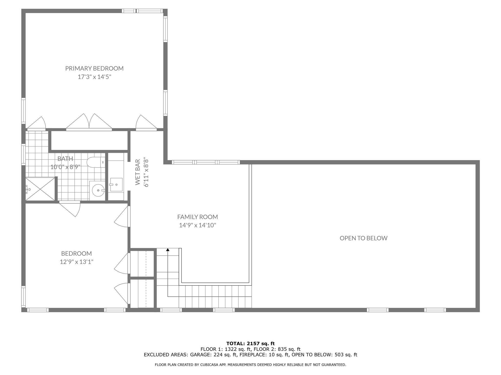
Imagine waking up each morning to the serene beauty of beautiful 13 acre lake —a rare gem that sets this property apart. This isn't just a home; it's a canvas for an extraordinary lifestyle where nature meets comfort. The setting is nothing short of breathtaking, offering panoramic lake views that soothe the soul and inspire the spirit. The house itself is a contemporary treasure, lovingly maintained and brimming with potential. While it awaits your personal touch to reach its full pristine glory, the heavy lifting has been done. Brand new Hardie board siding wraps the exterior, all-new windows flood the interiors with natural light, and updated heating and cooling systems ensure year-round comfort and efficiency. Step inside to a layout designed for both relaxation and entertainment. The first-floor master bedroom offers an intimate view of the tranquil lake, turning everyday routines into serene retreats. The main living and family rooms feature towering windows that frame the water's expanse, while a warm fireplace becomes the heart of the home—a perfect backdrop for unforgettable moments with loved ones. Venture upstairs to discover a unique second-floor sitting area complete with a dry bar, overlooking the living spaces below. It's an inviting nook for hosting friends or enjoying quiet evenings, adding a touch of sophistication to the home's charm. This property is more than a place to live; it's an opportunity to craft the life you've always imagined. With significant updates already in place and endless possibilities ahead, it's poised to become a haven that reflects your style and aspirations. Don't miss out on this fantastic chance to own a slice of paradise where every day feels like a getaway.

Features

  • Town: Tuxedo
  • Rooms: 9
  • Bedrooms: 3
  • Baths: 2 full
  • Style: Contemporary
  • Year Built: 1982
  • Garage: 1-car
  • Heating: Baseboard, Hot Water, Oil
  • Cooling: Central Air, Ductless
  • Basement: Crawl Space
  • Approx Sq. Feet: 2,206
  • Acreage: 1.4
  • Est. Taxes: $15,231
  • Lot Desc: Back Yard, Near Shops, Part Wooded, Private, Sloped, Views, Waterfront
  • View: Lake
  • Water Front: Yes
  • Elem. School: Contact Agent
  • Middle School: Monroe-Woodbury Middle School
  • High School: Monroe-Woodbury High School
  • School District: Monroe-Woodbury
  • Appliances: Dryer, Electric Oven, Electric Range, Microwave, Refrigerator, Washer, Indirect Water Heater
  • MLS#: 812579
  • Days on Market: 106 days
  • Website: https://www.raveis.com
    /prop/812579/444bramertownroad_tuxedo_ny?source=qrflyer
Listing information has been assembled from various sources of varying degrees of reliability. Any information critical to the buying decision should be independently verified.Listing courtesy of BHG Real Estate Green Team   Phone: 845-208-9928

William Raveis Family of Services

Our family of companies partner in delivering quality services in a one-stop-shopping environment. Together, we integrate the most comprehensive real estate, mortgage and insurance services available to fulfill your specific real estate needs.

Customer Service

888.699.8876

Contact@raveis.com

Our family of companies offer our clients a new level of full-service real estate. We shall:

  • Market your home to realize a quick sale at the best possible price
  • Place up to 20+ photos of your home on our website, raveis.com
  • Provide frequent communication and tracking reports showing the Internet views your home received on raveis.com
  • Showcase your home on raveis.com with a larger and more prominent format
  • Give you the full resources and strength of William Raveis Real Estate, Mortgage & Insurance and our cutting-edge technology

To learn more about our credentials, visit raveis.com today.

Sarah DeFlorioVP, Mortgage Banker, William Raveis Mortgage, LLC

NMLS Mortgage Loan Originator ID 1880936

347.223.0992

Sarah.DeFlorio@Raveis.com

Our Executive Mortgage Banker:

  • Is available to meet with you in our office, your home or office, evenings or weekends
  • Offers you pre-approval in minutes!
  • Provides a guaranteed closing date that meets your needs
  • Has access to hundreds of loan programs, all at competitive rates
  • Is in constant contact with a full processing, underwriting, and closing staff to ensure an efficient transaction

Ryan FortierInsurance Sales Director, William Raveis Insurance

516.739.7731

Ryan.Fortier@raveis.com

Our Insurance Division:

  • Will Provide a home insurance quote within 24 hours
  • Offers full-service coverage such as Homeowner's, Auto, Life, Renter's, Flood and Valuable Items
  • Partners with major insurance companies including Chubb, Kemper Unitrin, The Hartford, Progressive,
    Encompass, Travelers, Fireman's Fund, Middleoak Mutual, One Beacon and American Reliable

444 Bramertown Road, Tuxedo (Tuxedo Park), NY, 10987

$849,900

Customer Service

William Raveis Real Estate

Phone: 888.699.8876

Contact@raveis.com

Sarah DeFlorio

VP, Mortgage Banker

William Raveis Mortgage, LLC

Phone: 347.223.0992

Sarah.DeFlorio@Raveis.com

NMLS Mortgage Loan Originator ID 1880936

5/6 (30 Yr)
Adjustable Rate Jumbo*
30 Year
Fixed-Rate Jumbo
15 Year
Fixed-Rate Jumbo
Loan Amount $679,920 $679,920 $679,920
Term 360 months 360 months 180 months
Initial Interest Rate** 5.250% 6.000% 5.875%
Interest Rate based on Index + Margin 8.125%
Annual Percentage Rate 6.294% 6.133% 6.058%
Monthly Tax Payment $1,269 $1,269 $1,269
H/O Insurance Payment $92 $92 $92
Initial Principal & Interest Pmt $3,755 $4,076 $5,692
Total Monthly Payment $5,116 $5,437 $7,053

* The Initial Interest Rate and Initial Principal & Interest Payment are fixed for the first and adjust every six months thereafter for the remainder of the loan term. The Interest Rate and annual percentage rate may increase after consummation. The Index for this product is the SOFR. The margin for this adjustable rate mortgage may vary with your unique credit history, and terms of your loan.

** Mortgage Rates are subject to change, loan amount and product restrictions and may not be available for your specific transaction at commitment or closing. Rates, and the margin for adjustable rate mortgages [if applicable], are subject to change without prior notice.

The rates and Annual Percentage Rate (APR) cited above may be only samples for the purpose of calculating payments and are based upon the following assumptions: minimum credit score of 740, 20% down payment (e.g. $20,000 down on a $100,000 purchase price), $1,950 in finance charges, and 30 days prepaid interest, 1 point, 30 day rate lock. The rates and APR will vary depending upon your unique credit history and the terms of your loan, e.g. the actual down payment percentages, points and fees for your transaction. Property taxes and homeowner's insurance are estimates and subject to change.