Lot 2 1003 Baldwin Path, Dix Hills, NY, 11746 | $3,300,000

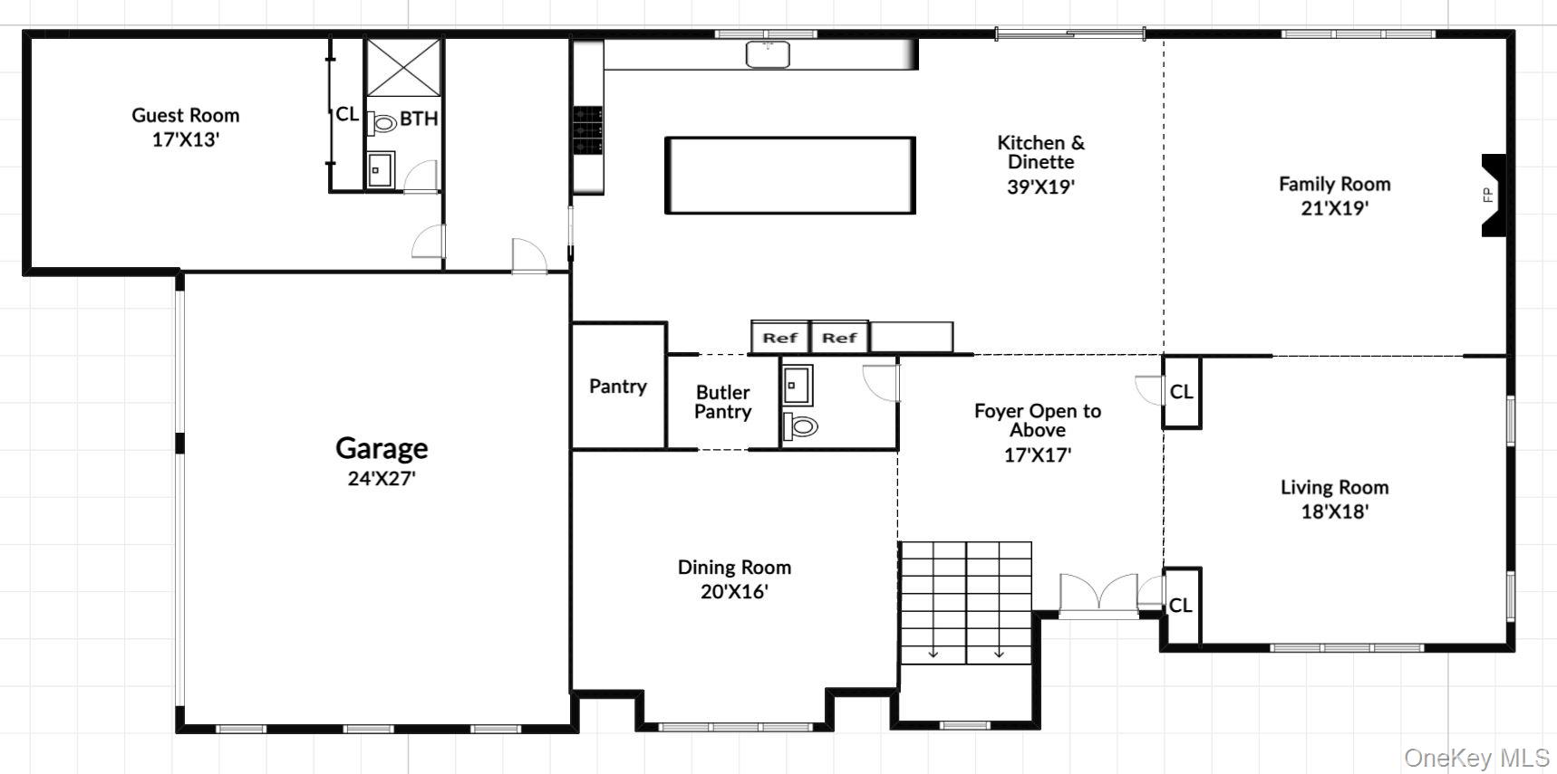
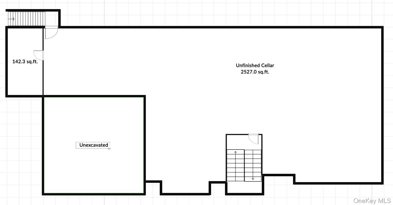
Welcome to Lot 2 in the prestigious Tiziana Estates, featuring the Apollo model—a 6, 200 sqft masterpiece of craftsmanship and design. This home offers a grand 2 story entrance with a beautiful front door coming off of a covered porch, 9 - 12’ ceilings in living spaces, a 10’ basement ceiling with steel I-beams for versatile finishes, and a seamless blend of elegance and functionality. The heart of the home is a high-end custom kitchen with Thermador appliances, premium quartz Taj Mahal countertops with 10' center island, custom cabinetry, serving station to Formal Dining room and a hidden pantry. The kitchen also features a dining area with chandelier in front of the double door sliders to the yard. Dining with a view. Then the room continues to flow into a cozy den space with custom built-in shelves, TV and modern gas fireplace. Truly an entertainers dream. The formal dining room is located directly off of the kitchen and dining service station. The formal living room flows off of the den making the entertainment space even larger. The 2nd floor boasts a gorgeous staircase with wood railings with glass walls that transform the look and feel of the home. The loft overlooks the yard and the hallway. There are 5 full bedrooms on the 2nd floor. The primary bedroom is the showstopper, featuring 2 mammoth walk-in-closets, trayed ceilings, a coffee station with filtered water line and an ensuite bathroom like no other. The bathroom features radiant heated floors, 2 separate sinks areas, a huge shower and a soaking tub. All bedrooms feature ensuite bathrooms with Kohler Anthem and Purist fixtures. The basement is at least 2500 square feet and has an outside entrance. Make this space your own! Don't forget about the 3 car garage! Every car lovers dream! Energy-efficient features include a Combi Navian Boiler, hydronic forced hot air, spray foam insulation, and Andersen 400 Series windows—the exterior dazzles with James Hardie siding, cultured stone accents, and GAF shingles. At Tiziana Estates, buyers can customize finishes and details to create their dream home. Don’t miss this exceptional opportunity—schedule your tour today! Lot 1 is staged and ready to show!

Features

  • Rooms: 11
  • Bedrooms: 6
  • Baths: 6 full / 1 half
  • Laundry: In Hall, Laundry Room
  • Style: Colonial, Modern
  • Year Built: 2025
  • Garage: 3-car
  • Heating: Natural Gas
  • Cooling: Central Air
  • Basement: Full, Storage Space, Unfinished
  • Approx Sq. Feet: 6,200
  • Acreage: 0.76
  • Est. Taxes: $50,000
  • Lot Desc: Back Yard, Borders State Land, Cleared, Cul-De-Sac, Front Yard, Level, Near School, Near Shops, Secluded
  • View: Park/Greenbelt
  • Elem. School: Otsego Elementary School
  • Middle School: Candlewood Middle School
  • High School: Half Hollow Hills High School West
  • School District: Half Hollow Hills
  • Appliances: Dishwasher, Dryer, Electric Oven, Gas Cooktop, Microwave, Refrigerator, Stainless Steel Appliance(s), Tankless Water Heater, Washer
  • MLS#: 812676
  • Days on Market: 420 days
  • Website: https://www.raveis.com
    /eprop/812676/lot21003baldwinpath_dixhills_ny?source=qrflyer
Listing information has been assembled from various sources of varying degrees of reliability. Any information critical to the buying decision should be independently verified.

William Raveis Family of Services

Our family of companies partner in delivering quality services in a one-stop-shopping environment. Together, we integrate the most comprehensive real estate, mortgage and insurance services available to fulfill your specific real estate needs.

Ginny ProftSales Associate

860.944.3811

Ginny.Proft@raveis.com

Our family of companies offer our clients a new level of full-service real estate. We shall:

  • Market your home to realize a quick sale at the best possible price
  • Place up to 20+ photos of your home on our website, raveis.com
  • Provide frequent communication and tracking reports showing the Internet views your home received on raveis.com
  • Showcase your home on raveis.com with a larger and more prominent format
  • Give you the full resources and strength of William Raveis Real Estate, Mortgage & Insurance and our cutting-edge technology

To learn more about our credentials, visit raveis.com today.

Jennifer CarretoVP, Mortgage Banker, William Raveis Mortgage, LLC

NMLS Mortgage Loan Originator ID 829975

860.990.4029

Jennifer.Carreto@raveis.com

Our Executive Mortgage Banker:

  • Is available to meet with you in our office, your home or office, evenings or weekends
  • Offers you pre-approval in minutes!
  • Provides a guaranteed closing date that meets your needs
  • Has access to hundreds of loan programs, all at competitive rates
  • Is in constant contact with a full processing, underwriting, and closing staff to ensure an efficient transaction

Alex FerroInsurance Sales Director, William Raveis Insurance

203.610.1536

Alex.Ferro@raveis.com

Our Insurance Division:

  • Will Provide a home insurance quote within 24 hours
  • Offers full-service coverage such as Homeowner's, Auto, Life, Renter's, Flood and Valuable Items
  • Partners with major insurance companies including Chubb, Kemper Unitrin, The Hartford, Progressive,
    Encompass, Travelers, Fireman's Fund, Middleoak Mutual, One Beacon and American Reliable

Lot 2 1003 Baldwin Path, Dix Hills, NY, 11746

$3,300,000

Ginny Proft

Sales Associate

William Raveis Real Estate

Phone: 860.944.3811

Ginny.Proft@raveis.com

Jennifer Carreto

VP, Mortgage Banker

William Raveis Mortgage, LLC

Phone: 860.990.4029

Jennifer.Carreto@raveis.com

NMLS Mortgage Loan Originator ID 829975

5/6 (30 Yr)
Adjustable Rate Jumbo*
30 Year
Fixed-Rate Jumbo
15 Year
Fixed-Rate Jumbo
Loan Amount $2,640,000 $2,640,000 $2,640,000
Term 360 months 360 months 180 months
Initial Interest Rate** 5.250% 5.875% 5.625%
Interest Rate based on Index + Margin 8.125%
Annual Percentage Rate 6.069% 6.031% 5.846%
Monthly Tax Payment $4,167 $4,167 $4,167
H/O Insurance Payment $125 $125 $125
Initial Principal & Interest Pmt $14,578 $15,617 $21,747
Total Monthly Payment $18,870 $19,909 $26,039

* The Initial Interest Rate and Initial Principal & Interest Payment are fixed for the first and adjust every six months thereafter for the remainder of the loan term. The Interest Rate and annual percentage rate may increase after consummation. The Index for this product is the SOFR. The margin for this adjustable rate mortgage may vary with your unique credit history, and terms of your loan.

** Mortgage Rates are subject to change, loan amount and product restrictions and may not be available for your specific transaction at commitment or closing. Rates, and the margin for adjustable rate mortgages [if applicable], are subject to change without prior notice.

The rates and Annual Percentage Rate (APR) cited above may be only samples for the purpose of calculating payments and are based upon the following assumptions: minimum credit score of 740, 20% down payment (e.g. $20,000 down on a $100,000 purchase price), $1,950 in finance charges, and 30 days prepaid interest, 1 point, 30 day rate lock. The rates and APR will vary depending upon your unique credit history and the terms of your loan, e.g. the actual down payment percentages, points and fees for your transaction. Property taxes and homeowner's insurance are estimates and subject to change.