266 W 136th Street, New York (New York (Manhattan)), NY, 10030 | $2,788,888

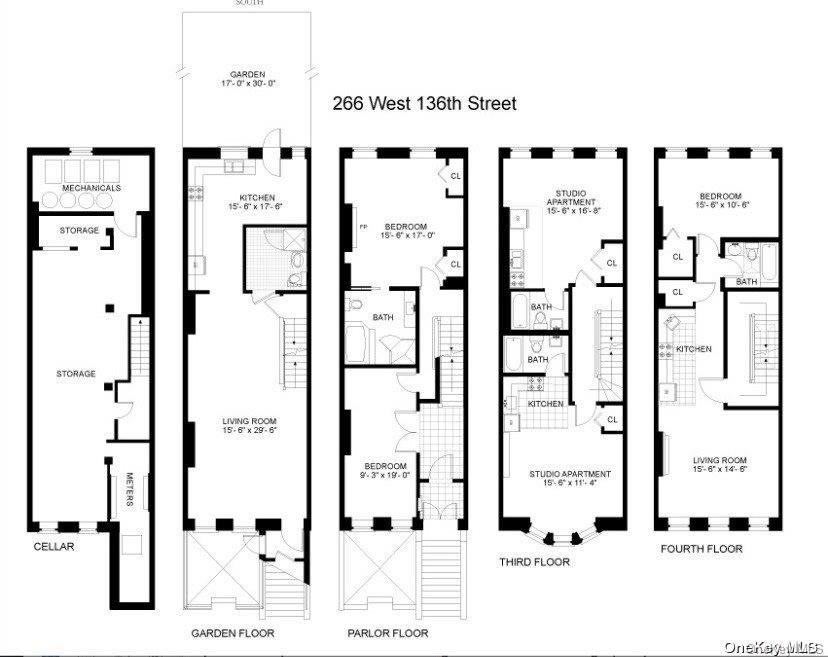
Brownstone, on tree-lined street in Central Harlem; This 1910 renaissance style brownstone has high ceilings, hardwood floors, exposed brick, stain glass arched windows and original wood details. Building will be delivered with current tenants and leases in place. Fully renovated with high end finishes. New roof just installed with 20 year warranty. The Garden apartment is a triplex with a built out backyard deck. The third floor has 2 studios. The forth floor has a floor through 1 bedroom. Located just blocks away from St. Nicholas Park, C, B, 2 & 3 subways, M10, M3, BX33 bus lines, Columbia University, City University, Harlem Hospital and St. Luke Hospital. Plenty of shopping, and eateries along Frederick Douglass Blvd. , Additional information: Appearance: Excellent

Features

  • Town: New York
  • Amenities: Park
  • Rooms: 11
  • Style: Quadruplex
  • Year Built: 1910
  • Heating: Natural Gas, Baseboard
  • Cooling: Ductless
  • Basement: Finished
  • Est. Taxes: $29,627
  • Lot Desc: Near Public Transit, Near School, Near Shops
  • Elem. School: Star Academy Ps 63
  • High School: Cascades High School
  • School District: Manhattan 1
  • MLS#: 3584429
  • Days on Market: 515 days
  • Website: https://www.raveis.com
    /eprop/3584429/266w136thstreet_newyork_ny?source=qrflyer
Listing information has been assembled from various sources of varying degrees of reliability. Any information critical to the buying decision should be independently verified.

William Raveis Family of Services

Our family of companies partner in delivering quality services in a one-stop-shopping environment. Together, we integrate the most comprehensive real estate, mortgage and insurance services available to fulfill your specific real estate needs.

Team Next Chapter at William RaveisSales Associates

203.623.4959

TeamNextChapter@Raveis.com

Our family of companies offer our clients a new level of full-service real estate. We shall:

  • Market your home to realize a quick sale at the best possible price
  • Place up to 20+ photos of your home on our website, raveis.com
  • Provide frequent communication and tracking reports showing the Internet views your home received on raveis.com
  • Showcase your home on raveis.com with a larger and more prominent format
  • Give you the full resources and strength of William Raveis Real Estate, Mortgage & Insurance and our cutting-edge technology

To learn more about our credentials, visit raveis.com today.

Kevin DeTullioVP, Mortgage Banker / Production Manager, William Raveis Mortgage, LLC

NMLS Mortgage Loan Originator ID 1724767

203.305.5736

Kevin.DeTullio@Raveis.com

Our Executive Mortgage Banker:

  • Is available to meet with you in our office, your home or office, evenings or weekends
  • Offers you pre-approval in minutes!
  • Provides a guaranteed closing date that meets your needs
  • Has access to hundreds of loan programs, all at competitive rates
  • Is in constant contact with a full processing, underwriting, and closing staff to ensure an efficient transaction

Brian SkellyVP, Mortgage Banker, William Raveis Mortgage, LLC

NMLS Mortgage Loan Originator ID 793093

203.415.2989

Brian.Skelly@raveis.com

Our Executive Mortgage Banker:

  • Is available to meet with you in our office, your home or office, evenings or weekends
  • Offers you pre-approval in minutes!
  • Provides a guaranteed closing date that meets your needs
  • Has access to hundreds of loan programs, all at competitive rates
  • Is in constant contact with a full processing, underwriting, and closing staff to ensure an efficient transaction

Diane PadelliInsurance Sales Director, William Raveis Insurance

203.444.0494

Diane.Padelli@raveis.com

Our Insurance Division:

  • Will Provide a home insurance quote within 24 hours
  • Offers full-service coverage such as Homeowner's, Auto, Life, Renter's, Flood and Valuable Items
  • Partners with major insurance companies including Chubb, Kemper Unitrin, The Hartford, Progressive,
    Encompass, Travelers, Fireman's Fund, Middleoak Mutual, One Beacon and American Reliable

266 W 136th Street, New York (New York (Manhattan)), NY, 10030

$2,788,888

Team Next Chapter at William Raveis

Sales Associates

William Raveis Real Estate

Phone: 203.623.4959

TeamNextChapter@Raveis.com

Kevin DeTullio

VP, Mortgage Banker / Production Manager

William Raveis Mortgage, LLC

Phone: 203.305.5736

Kevin.DeTullio@Raveis.com

NMLS Mortgage Loan Originator ID 1724767

Brian Skelly

VP, Mortgage Banker

William Raveis Mortgage, LLC

Phone: 203.415.2989

Brian.Skelly@raveis.com

NMLS Mortgage Loan Originator ID 793093

5/6 (30 Yr)
Adjustable Rate Jumbo*
30 Year
Fixed-Rate Jumbo
15 Year
Fixed-Rate Jumbo
Loan Amount $2,231,110 $2,231,110 $2,231,110
Term 360 months 360 months 180 months
Initial Interest Rate** 5.375% 6.125% 5.875%
Interest Rate based on Index + Margin 8.125%
Annual Percentage Rate 6.117% 6.235% 6.058%
Monthly Tax Payment $2,469 $2,469 $2,469
H/O Insurance Payment $125 $125 $125
Initial Principal & Interest Pmt $12,494 $13,556 $18,677
Total Monthly Payment $15,088 $16,150 $21,271

* The Initial Interest Rate and Initial Principal & Interest Payment are fixed for the first and adjust every six months thereafter for the remainder of the loan term. The Interest Rate and annual percentage rate may increase after consummation. The Index for this product is the SOFR. The margin for this adjustable rate mortgage may vary with your unique credit history, and terms of your loan.

** Mortgage Rates are subject to change, loan amount and product restrictions and may not be available for your specific transaction at commitment or closing. Rates, and the margin for adjustable rate mortgages [if applicable], are subject to change without prior notice.

The rates and Annual Percentage Rate (APR) cited above may be only samples for the purpose of calculating payments and are based upon the following assumptions: minimum credit score of 740, 20% down payment (e.g. $20,000 down on a $100,000 purchase price), $1,950 in finance charges, and 30 days prepaid interest, 1 point, 30 day rate lock. The rates and APR will vary depending upon your unique credit history and the terms of your loan, e.g. the actual down payment percentages, points and fees for your transaction. Property taxes and homeowner's insurance are estimates and subject to change.