4090 Hardie Ave, Miami, FL, 33133 | $5,850,000

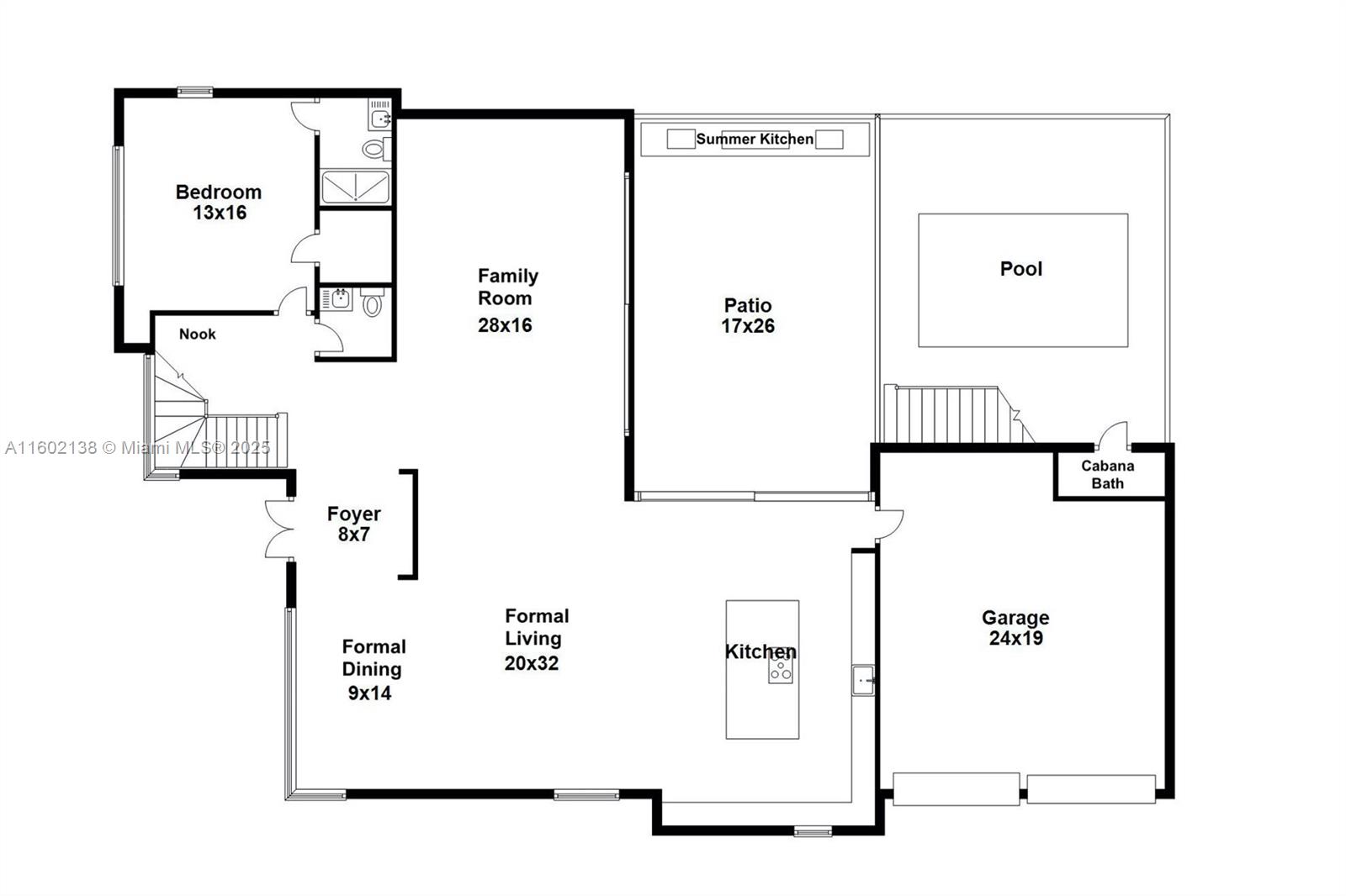
Designed by DNB Design Group and built by Avenue 04, this modern masterpiece is due for delivery in July 2025. Spanning a gracious 4, 737 square feet on a 7, 000 square foot lot just 1 house away from Merrie Christmas park, the 5 bedroom, 5. 2 bathroom home is ideally located in Miami’s favorite neighborhood, Coconut Grove! The flexible floorplan lends itself to indoor/outdoor living and features family, living, and dining rooms, as well as a true chef’s kitchen. The 2nd floor primary suite includes 2 walk-in closets, spa-like bathroom, and private terrace with stairs leading down to the pool and patio. There are 4 additional en-suite bedrooms, pool bath, laundry room, 2 car garage, huge impact glass windows and doors, large-format porcelain tile and wood floors, and much more!

Features

  • Bedrooms: 5
  • Baths: 5 full / 2 half
  • Style: Detached,Two Story
  • Year Built: 2024
  • Garage: 2-car Attached,Garage,Paver Block,Garage Door Opener
  • Heating: Central,Electric
  • Cooling: Central Air,Ceiling Fan(s),Electric
  • Approx Sq. Feet: 4,366
  • Est. Taxes: $16,144
  • Lot Desc: Sprinkler System,< 1/4 Acre
  • View: Garden,Pool
  • Elem. School: Coconut Grove
  • Middle School: Ponce De Leon
  • High School: Coral Gables
  • Pets Allowed: Yes
  • Pet Policy: No Pet Restrictions,Yes
  • Appliances: Dryer,Dishwasher,Disposal,Ice Maker,Microwave,Self Cleaning Oven
  • MLS#: A11602138
  • Days on Market: 633 days
  • Website: https://www.raveis.com
    /eprop/A11602138/4090hardieave_miami_fl?source=qrflyer
This information is deemed reliable, but not guaranteed. The data relating to real estate displayed on this Site comes in part from the IDX Program of MIAMI Association of REALTORS. The information being provided is for consumers' personal, non-commercial use and may not be used for any purpose other than to identify prospective properties consumers may be interested in purchasing.

William Raveis Family of Services

Our family of companies partner in delivering quality services in a one-stop-shopping environment. Together, we integrate the most comprehensive real estate, mortgage and insurance services available to fulfill your specific real estate needs.

Carla StitzSales Associate

203.619.3214

Carla.Stitz@raveis.com

Our family of companies offer our clients a new level of full-service real estate. We shall:

  • Market your home to realize a quick sale at the best possible price
  • Place up to 20+ photos of your home on our website, raveis.com
  • Provide frequent communication and tracking reports showing the Internet views your home received on raveis.com
  • Showcase your home on raveis.com with a larger and more prominent format
  • Give you the full resources and strength of William Raveis Real Estate, Mortgage & Insurance and our cutting-edge technology

To learn more about our credentials, visit raveis.com today.

Kevin DeTullioVP, Mortgage Banker / Production Manager, William Raveis Mortgage, LLC

NMLS Mortgage Loan Originator ID 1724767

203.305.5736

Kevin.DeTullio@Raveis.com

Our Executive Mortgage Banker:

  • Is available to meet with you in our office, your home or office, evenings or weekends
  • Offers you pre-approval in minutes!
  • Provides a guaranteed closing date that meets your needs
  • Has access to hundreds of loan programs, all at competitive rates
  • Is in constant contact with a full processing, underwriting, and closing staff to ensure an efficient transaction

Brian SkellyVP, Mortgage Banker, William Raveis Mortgage, LLC

NMLS Mortgage Loan Originator ID 793093

203.415.2989

Brian.Skelly@raveis.com

Our Executive Mortgage Banker:

  • Is available to meet with you in our office, your home or office, evenings or weekends
  • Offers you pre-approval in minutes!
  • Provides a guaranteed closing date that meets your needs
  • Has access to hundreds of loan programs, all at competitive rates
  • Is in constant contact with a full processing, underwriting, and closing staff to ensure an efficient transaction

Diane PadelliInsurance Sales Director, William Raveis Insurance

203.444.0494

Diane.Padelli@raveis.com

Our Insurance Division:

  • Will Provide a home insurance quote within 24 hours
  • Offers full-service coverage such as Homeowner's, Auto, Life, Renter's, Flood and Valuable Items
  • Partners with major insurance companies including Chubb, Kemper Unitrin, The Hartford, Progressive,
    Encompass, Travelers, Fireman's Fund, Middleoak Mutual, One Beacon and American Reliable

4090 Hardie Ave, Miami, FL, 33133

$5,850,000

Carla Stitz

Sales Associate

William Raveis Real Estate

Phone: 203.619.3214

Carla.Stitz@raveis.com

Kevin DeTullio

VP, Mortgage Banker / Production Manager

William Raveis Mortgage, LLC

Phone: 203.305.5736

Kevin.DeTullio@Raveis.com

NMLS Mortgage Loan Originator ID 1724767

Brian Skelly

VP, Mortgage Banker

William Raveis Mortgage, LLC

Phone: 203.415.2989

Brian.Skelly@raveis.com

NMLS Mortgage Loan Originator ID 793093

5/6 (30 Yr)
Adjustable Rate Jumbo*
30 Year
Fixed-Rate Jumbo
15 Year
Fixed-Rate Jumbo
Loan Amount $4,680,000 $4,680,000 $4,680,000
Term 360 months 360 months 180 months
Initial Interest Rate** 5.500% 5.875% 5.750%
Interest Rate based on Index + Margin 8.125%
Annual Percentage Rate 6.130% 5.984% 5.912%
Monthly Tax Payment $1,345 $1,345 $1,345
H/O Insurance Payment $125 $125 $125
Initial Principal & Interest Pmt $26,573 $27,684 $38,863
Total Monthly Payment $28,043 $29,154 $40,333

* The Initial Interest Rate and Initial Principal & Interest Payment are fixed for the first and adjust every six months thereafter for the remainder of the loan term. The Interest Rate and annual percentage rate may increase after consummation. The Index for this product is the SOFR. The margin for this adjustable rate mortgage may vary with your unique credit history, and terms of your loan.

** Mortgage Rates are subject to change, loan amount and product restrictions and may not be available for your specific transaction at commitment or closing. Rates, and the margin for adjustable rate mortgages [if applicable], are subject to change without prior notice.

The rates and Annual Percentage Rate (APR) cited above may be only samples for the purpose of calculating payments and are based upon the following assumptions: minimum credit score of 740, 20% down payment (e.g. $20,000 down on a $100,000 purchase price), $1,950 in finance charges, and 30 days prepaid interest, 1 point, 30 day rate lock. The rates and APR will vary depending upon your unique credit history and the terms of your loan, e.g. the actual down payment percentages, points and fees for your transaction. Property taxes and homeowner's insurance are estimates and subject to change.