Listing courtesy of Corcoran Group


70 West 36th Street, #5C, New York, (Midtown West), NY, 10018

70 West 36th Street, #5C, New York, (Midtown West), NY, 10018

10 rooms

0 beds

2 Full baths

1924

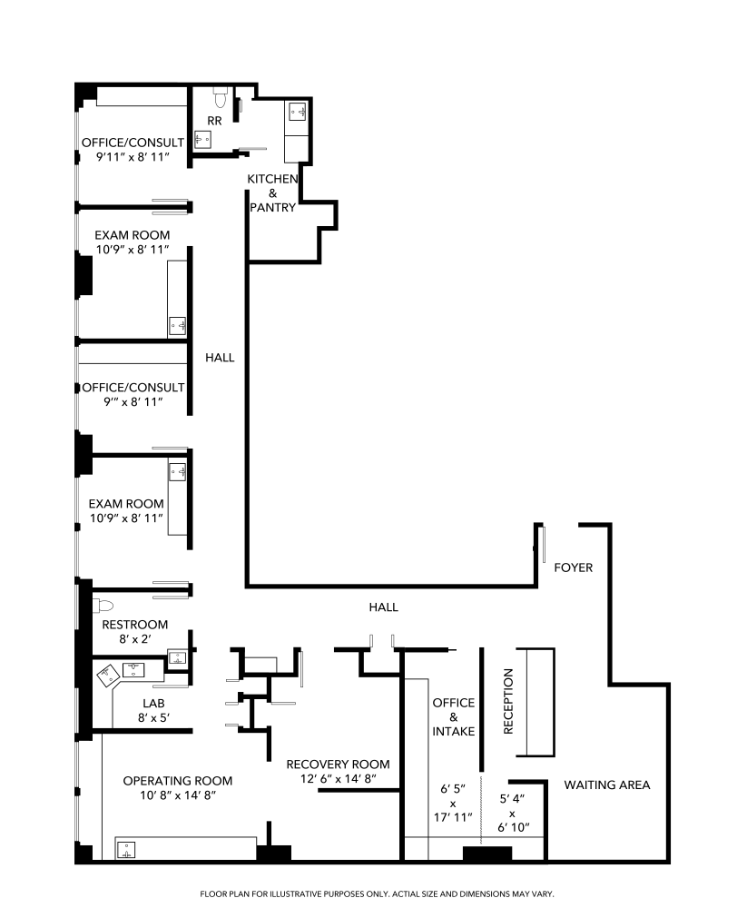
Available for sale, 70 West 36th Street, Suite 5C is a pristine medical/surgical suite located in Herald Square/Penn Plaza between Fifth and Sixth Avenue.
The layout of this 1,932 SF fully accredited QUAD A medical suite features a reception and waiting area, an office/intake rooms, two exam rooms, two offices/consults, an AAAASF procedural room (recertification may be required under new ownership), 2-bay recovery room, a lab, a kitchen with pantry and staff restroom, and a patient restroom.

This high-end surgical/gastroenterologist office features soundproof exam rooms and offices, dual-zone central air-conditioning and twelve windows. This space is in move-in-ready condition and adaptable to any medical specialty.
70 West 36th Street is accessible to public transportation via 14 subways lines, the PATH train, as well as Penn Station, The Port Authority Bus Terminal and Grand Central Terminal.


Status:

Active

Town:

New York

Type:

Condo

Laundry Remarks:

None

Building Type:

Mid-Rise

Cooling:

Unknown Type

Levels:

16

Pet Policy:

No Pets

Building Access:

Elevator

Service Level:

Voice Intercom

OLR #:

RPLU33423358823


Community Info

School Info

Walk Score

Mass Transit

Yelp


Copyright ©2025 The Real Estate Board of New York, Inc., All rights reserved