1974
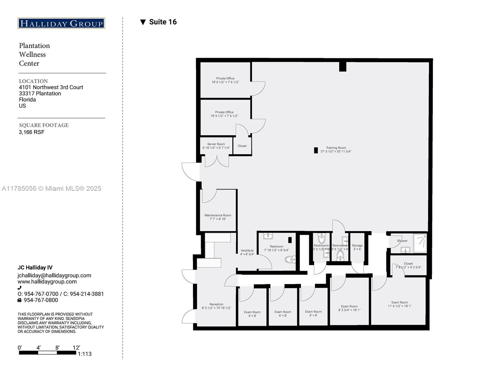
Second generation medical space (formerly a physical therapy office) available near the heart of Plantation. Located right next to the HCA's new emergency center.
Status:
Active
Type:
Commercial Lease
Zoning:
B-HCS
Est. Taxes:
$215,013
Days on Market:
350
Lease Term Type:
36 Months
MLS #:
A11785056
Community Info
School Info
Similar Properties
New or Coming Soon Properties
Listing courtesy of Halliday Grp Rlty Advisors Inc 954-767-0700