Price Reduced 23.33%


Price History

$750,000
3/13/2026

$699,000
4/13/2026

$650,000
5/1/2026

$575,000
5/16/2026


6 Duffys Bridge Road, Katonah, NY, 10536

6 Duffys Bridge Road, Katonah, NY, 10536

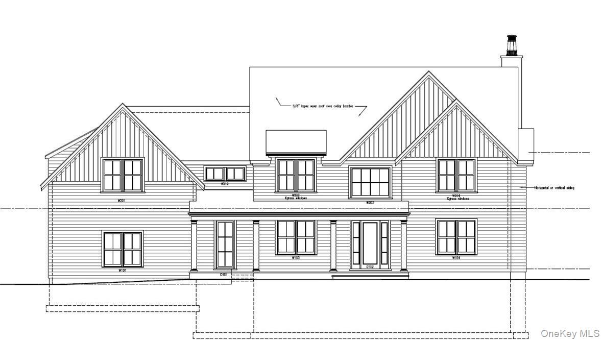
A rare find at a great price. Unique parcel offering amazing privacy on over 9 acres of improved land in desirable Katonah location. Drilled 330' well with 50gpm and septic installed for 4 bedroom home. This wooded hilltop homesite is approved for a single family home by the Town of Lewisboro. Land is cleared, graded and has a Belgian block-lined gravel driveway. Stone retaining walls are installed. Comes with building plans for a beautiful 4-bedroom, 3 1/2 bath, 5300 sq. ft. home designed by renowned local architect Teo Siguenza. Prime Katonah location close to train, highways and the charming hamlet of Katonah with shops, restaurants, town park with pool, school, library and Katonah Museum of Art in the award-winning Katonah-Lewisboro School District. 1 hour to NYC. Bring your builder and imagine the possibilities.


Status:

Active

Type:

Lot / Acreage

Acreage:

9.09

Est. Taxes:

$5,911

Assessment

$18,200

Current Use

Residential, Single Family

Utilities

Trash Collection Private

Lot Description:

Cleared, Hilly, Wooded

Elementary School:

Katonah Elementary School

Middle School:

John Jay Middle School

High School:

John Jay High School

School District:

Katonah-Lewisboro

Days on Market:

64

MLS #:

971463


Community Info

School Info

Walk Score

Mass Transit

Yelp



Listing courtesy of Coldwell Banker Realty 914-232-7000