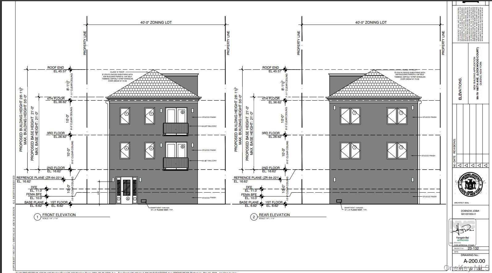
It took me over 18 months to get this Approved. Nice Two Family with both units having two levels, Three Bedrooms and Two Bathrooms in each. Will easily sell for over $1.2 Million. House is one block away from Hamilton Beach Park, effectively a private beach and private park.
THIS IS BEING OFFERED WITH TWO ATTACHED LOTS, BOTH WITH APPROVED PLANS, ONE FOR A SINGLE FAMILY AND THE OTHER FOR AN ADDITIONAL TWO FAMILY HOUSE, CAN BE SOLD SEPARATELY OR ALL TOGETHER
99-79 Lockwood Court, Howard Beach, NY, 11414
The rates and annual percentage rate (APR) displayed are based upon the following assumptions: a 20% down payment (e.g. $20,000 down on a $100,000 purchase price), conforming loan amount, $1,950 in finance charges, 30 days prepaid interest, 1 point, 30 day rate lock. The rates and annual percentage rate (APR) will vary depending upon the actual down payment percentages, points and fees for your transaction. Rates and the margin for adjustable rate mortgages [if applicable] are subject to change without prior notice and may vary with your unique credit history, and terms of your loan. The rates displayed vary by property state, may change or not be available at commitment or closing or may be subject to product restrictions.
The Initial Interest Rate and Initial Principal & Interest Payment are fixed for the first five years (for a 5/6 ARM) or seven years (for a 7/6 ARM) and adjust every six months thereafter for the remainder of the loan term. The Interest Rate and annual percentage rate may increase after consummation. The Index for this product is the SOFR. The margin for this adjustable rate mortgage may vary with your unique credit history, and terms of your loan. Mortgage Rates are subject to change, loan amount and product restrictions and may not be available for your specific transaction at commitment or closing. Rates, and the margin for adjustable -rate mortgages [if applicable], are subject to change without prior notice.
CT Mortgage Lender ML-2630 - MA Mortgage Lender and Mortgage Broker #MC2630 - NH Mortgage Banker #11083-MB - RI Mortgage Lender & Mortgage Broker #20051918LL & #20051919LB - NY Licensed Mortgage Banker - NYS Department of Financial Services LMBC 106535 / B500898 - NJ Residential Mortgage Lender 2630 - FL Mortgage Lender MLD1388 - VT Lender & Mortgage Broker #6952 & #1297MB