12 Studio Arcade, Bronxville, NY, 10708

12 Studio Arcade, Bronxville, NY, 10708

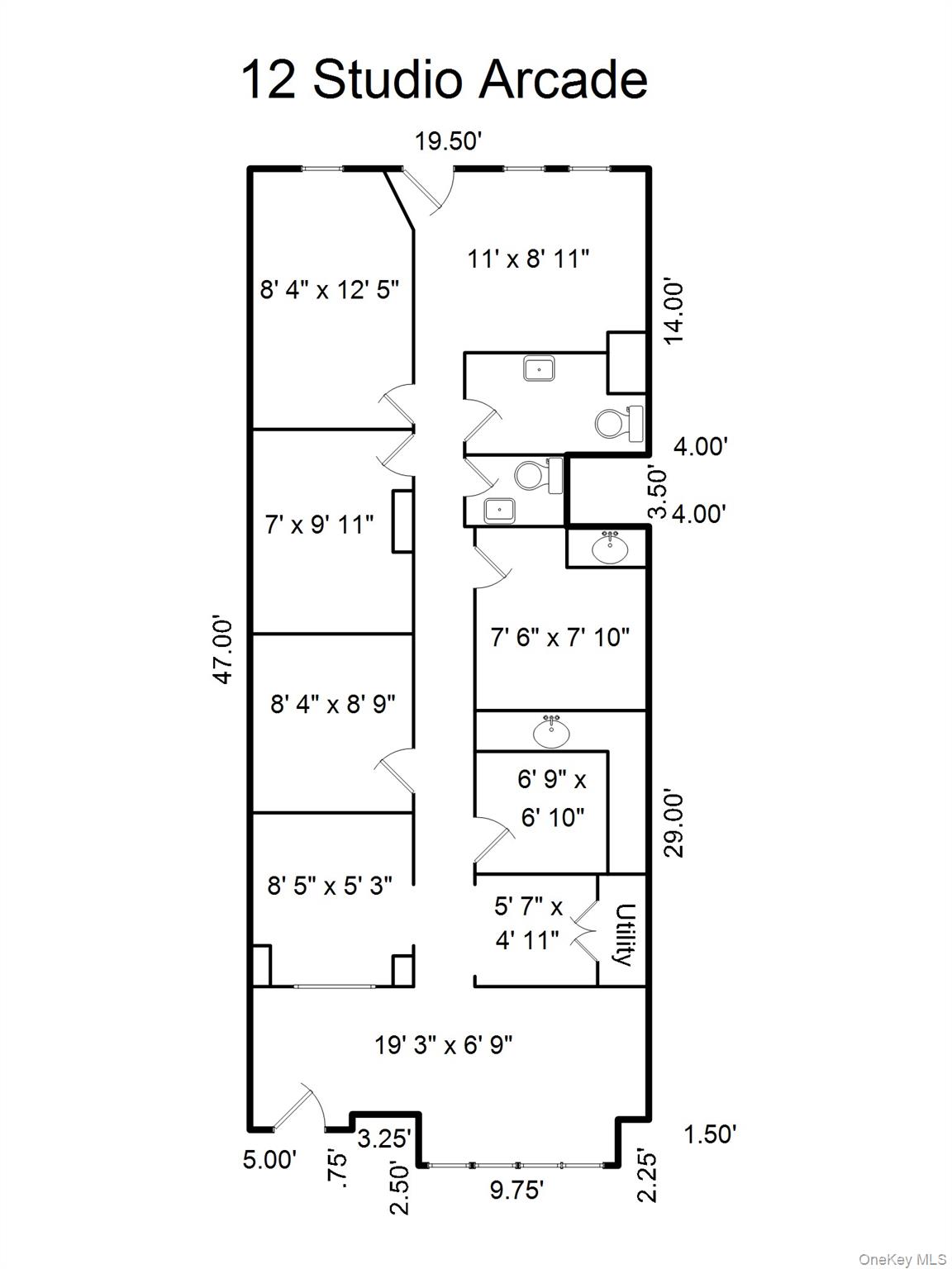
12 Studio Arcade, Bronxville, New York 10708 Offering +/-1,000 SF for office space on North Side of Studio Arcade between West Pondfield and the Metro North Train Tracks, just across from Lawrence Hospital. The present configuration is for a medical office. Space has front and rear entrances. BA Zone, allowable uses are: medical, professional or other business offices. $5,200 per month with 3% increases per year. Increase over base year. To be negotiated. Tenant to pay for all utilities, gas, electric and water. Security deposit two months. Premise comes with 2 unassigned parking spaces in the rear of the building for the tenant. There is ample street parking for patients/customers in front of the building on Studio Arcade itself. This location is very desirable. It is right next to the Bronxville Metro North Train Station on the Southbound side. Lawrence Hospital is directly across the street and has 1,000+ employees and numerous visitors. There is ample street parking in front of the office.


Status:

Active

Type:

Commercial Lease

Heating:

Baseboard

Cooling:

Central Air

Parking:

2-car, Tandem

Construction

Brick, Stucco

Utilities

Cable Available, Electricity Available, Phone Available, Sewer Available, Water Available

Days on Market:

148

Lease Term Type:

Negotiable

MLS #:

904440


Community Info

School Info

Walk Score

Mass Transit

Yelp


Listing courtesy of Houlihan & O'Malley R. E. Serv 914-337-7888